賃貸や不動産はアットホーム-賃貸マンション・賃貸物件・不動産なら アットホーム

千葉県松戸市新松戸2丁目(新松戸駅)の貸店舗:物件詳細

  • 物件詳細
  • 情報の見方
  • 印刷用画面
交通
所在地
駅徒歩 賃料
管理費等
敷金/保証金
礼金
使用部分面積
坪数/坪単価
物件種目
築年月

JR千代田・常磐緩行線/新松戸 新着

千葉県松戸市新松戸2丁目

6分

57.2万円

22,000円

なし / 3ヶ月

なし

250.75m²

75.85坪/0.7542万円

貸店舗・事務所

1992年10月(築33年7ヶ月)

おすすめコメント

駅徒歩6分圏内の好立地・路面店で視認性良好・飲食相談可・エアコン2台以上・物件のお問合わせ・内見は担当営業の宮川までお気軽に:090-5121-0814または東京事務所まで:03-6260-9844

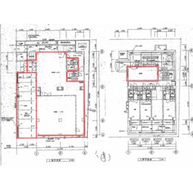
間取図

間取図

<
その他の画像
>
    • お問い合わせ
    交通

    JR千代田・常磐緩行線 新松戸駅 徒歩6分

    その他の交通

    JR武蔵野線 新松戸駅 徒歩6分

    流鉄流山線 幸谷駅 徒歩8分

    所在地 千葉県松戸市新松戸2丁目
    物件種目 貸店舗・事務所
    賃料 57.2万円 管理費等 22,000円
    敷金 / 保証金 なし / 3ヶ月 礼金 なし
    敷引 坪単価 0.7542万円
    保証金償却 解約時1ヶ月 権利金
    造作譲渡 その他一時金
    維持費等 保険等
    使用部分面積 250.75m² 坪数 75.85坪
    築年月 1992年10月(築33年7ヶ月) 階建 / 階 4階建 / 1階~2階部分
    駐車場 有 115,500円/月
    駐車場3台分以上、一部のみ貸出可(貸出なしも可・応相談)、駐車場歌金:2ヶ月
    バイク置き場
    駐輪場 有 1,000円/月 土地面積
    接道状況 用途地域
    間取り 建物構造 RC
    アピールポイント 【JR常磐緩行線「新松戸」駅 徒歩約6分】
    1階と2階一部が使用可能・重飲食可・日当たり良好・動力あり・都市ガス・男女別トイレあり!
    物物件お問い合わせ・内見希望は千葉県西部の1階テナントを専門に取り扱う
    担当営業の宮川の携帯電話までお気軽にお問合せ下さい:090-5121-0814
    (テナント選びは排水・動力・都市計画の用途制限・騒音・異臭等の問題が多くあり難しい所があります。
     テナント営業30年の経験であなたの物件探しをお手伝いします。松戸市在住) 

    東京事務所
    TEL:03-6260-9844 FAX:047-369-7159 
    E-mail:info@meistercorp. tokyo 
    〒101-0024 東京都千代田区神田和泉町1-5-16 ヤマトビル405
    建物名・部屋番号 セントエルモ新松戸 101
    リフォーム履歴
    リノベーション履歴
    特記事項 土曜日利用可、土日・祝日利用可、1フロア1テナント、駐車場3台分以上
    備考
    管理形態/管理員の勤務形態:-/-
    【その他】
    ・賃貸保証:加入要
          日本テナント保証
          初回保証料100%(最低5万円)、更新料10%(最低5千円)、月額660円
    ・保険:加入要
    ・来客者駐車可能台数:7台
    ・鍵交換代:30,000円(税抜)
    ・先払室内清掃:150,000円
    エネルギー消費性能
    断熱性能
    目安光熱費
    バス・トイレ バス・トイレ別、専有部分にトイレあり
    キッチン オープンキッチン
    設備・サービス 空調機あり
    エアコン2台以上、都市ガス、エアコン、暖房、冷房、インターネット対応
    その他
    契約期間 2年 条件等
    引渡可能時期 2026年6月上旬予定 現況 使用中
    更新料 新賃料 1ヶ月 物件番号 6990241814
    情報公開日 2026年4月8日 次回更新予定日 2026年4月22日
    ケータイ用バーコード

    QRコード

    スマートフォンでこの物件を見る
    スマートフォンからもこの物件をご覧になれます。
    ※「-」と表示されている項目については、情報提供会社にご確認ください。

    この物件の周辺情報

    周辺施設 マックスバリュエクスプレス新松戸店
    距離 518m
    周辺施設 リックス松戸二ツ木店
    距離 450m
    周辺施設 マツモトキヨシ新松戸2丁目店
    距離 146m
    周辺施設 医療法人財団明理会新松戸中央総合病院
    距離 785m
    周辺施設 新松戸駅前郵便局
    距離 631m
    周辺施設 みずほ銀行新松戸支店
    距離 399m
    周辺施設 千葉銀行新松戸支店
    距離 585m
    周辺施設 松戸市第二方面本部
    距離 1125m

    クイックお問い合わせ

    ここから簡単にお問い合わせをすることができます。
    (SSLでの暗号化での送信を希望されるお客さまは こちら よりお問い合わせください)

    お問い合わせ内容(必須)
    物件のお問い合わせ理由(必須)
    お名前・ご担当者様名(必須) 姓  名 
    メールアドレス(必須)
    ※携帯電話のメールアドレスをご入力される方はこちらをご確認ください
    電話番号(必須)
    - -
    備考欄 希望条件、物件案内希望日、質問などがございましたらご記入ください。
    お問い合わせを行う前に「個人情報の取り扱いについて」を必ずお読みください。
    「個人情報の取り扱いについて」に同意いただいた場合は「上記にご同意の上 確認画面へ進む」のボタンをクリックしてください。

    個人情報の取り扱いについて

    皆さまが送付された個人情報はアットホーム(株)のサーバを経由し、お問い合わせ先の不動産会社にメールまたはFAXにて転送されるためアットホーム(株)にも保管されます。アットホーム(株)で保管された個人情報の取り扱いについては、【こちら】をご覧ください。
    また、本画面でご記入いただいた個人情報は、お問い合わせ先の不動産会社でも保管します。 お問い合わせ先の不動産会社が保管する個人情報の取り扱いについては、不動産会社に直接お問い合わせください。

    情報提供会社

    情報提供会社

    (株)マイスター・コーポレーション

    千葉県知事免許(1)第18945号

    交通:
    北総線/北国分駅 徒歩15分
    千葉県松戸市二十世紀が丘美野里町25-401 
    TEL:
    047-369-7144
    所属団体:
    (公社)全日本不動産協会会員
    (公社)首都圏不動産公正取引協議会加盟

    取引態様:仲介

    • 会社情報
    • 00273716
    スマートフォンで
    この不動産会社を見る
    QRコード
    • お問い合わせ
    • 提携サイト等より掲載されている物件情報につきましては、不動産会社詳細情報にリンクされていないものがあります。
    • 物件に関するお問合せは、物件詳細ページの「情報提供会社」に表示されている不動産会社へ直接お願いいたします。
    • 間取図は、現況を優先させていただきます。
    • 映像は物件の一部を撮影したものです。物件の契約にあたっての最終判断はご自身の判断に基づいて行ってください。
    • 仲介手数料について仲介手数料

    アットホームは物件情報の適正化に努めております。 内容に誤りがある場合にはこちらへご連絡ください。


    物件画像: