賃貸や不動産はアットホーム-賃貸マンション・賃貸物件・不動産なら アットホーム

大阪府豊中市曽根東町6丁目(曽根駅)の貸店舗:物件詳細

  • 物件詳細
  • 情報の見方
  • 印刷用画面
交通
所在地
駅徒歩 賃料
管理費等
敷金/保証金
礼金
使用部分面積
坪数/坪単価
物件種目
築年月

阪急宝塚線/曽根 新着

大阪府豊中市曽根東町6丁目

7分

44万円

40万円 / なし

88万円

167.00m²

50.51坪/0.871万円

貸店舗・事務所

1986年3月(築40年2ヶ月)

おすすめコメント

曽根駅徒歩8分。中2階あり。建物東側沿いに縦列駐車可。事業用専門にしておりますので、その他ご利用用途等、まずはお気軽にお問合せください。

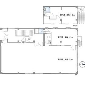
間取図

間取図

外観

外観

その他の画像
  • 室内
  • 周辺環境
  • 周辺環境
    • お問い合わせ
    交通

    阪急宝塚線 曽根駅 徒歩7分

    その他の交通

    阪急宝塚線 服部天神駅 徒歩11分

    阪急宝塚線 岡町駅 徒歩18分

    所在地 大阪府豊中市曽根東町6丁目
    物件種目 貸店舗・事務所
    賃料 44万円 管理費等
    敷金 / 保証金 40万円 / なし 礼金 88万円
    敷引 坪単価 0.871万円
    保証金償却 権利金
    造作譲渡 その他一時金
    維持費等 保険等 要 火災
    使用部分面積 167.00m² 坪数 50.51坪
    築年月 1986年3月(築40年2ヶ月) 階建 / 階 5階建 / 1階
    駐車場 有 無料 バイク置き場
    駐輪場 土地面積
    接道状況 用途地域
    間取り 建物構造 鉄骨造
    建物名・部屋番号 豊中市曽根東町6 事務所・倉庫
    リフォーム履歴
    リノベーション履歴
    特記事項
    備考
    賃貸保証等:加入要(詳細はお問い合わせ下さい。)
    管理形態/管理員の勤務形態:-/-
    契約後1年未満の解約は1ヵ月分の違約金あり
    建物東側沿いに縦列駐車可
    浴室・照明関係・北側シャッターの外側部分の物品置き棚とテントは
    残置物の為性能保証なし。浴室は使用不可。
    鍵交換代金あり
    上階は会計事務所なので騒音がでる業種と飲食関係は不可
    エネルギー消費性能
    断熱性能
    目安光熱費
    バス・トイレ
    キッチン
    設備・サービス
    その他
    契約期間 2年 条件等
    引渡可能時期 相談 現況
    更新料 なし 物件番号 6990235993
    情報公開日 2026年4月7日 次回更新予定日 2026年4月21日
    ケータイ用バーコード

    QRコード

    スマートフォンでこの物件を見る
    スマートフォンからもこの物件をご覧になれます。
    ※「-」と表示されている項目については、情報提供会社にご確認ください。

    この物件の周辺情報

    周辺施設 業務スーパー豊中店
    距離 492m
    周辺施設 コーヨー阪急曽根店
    距離 450m
    周辺施設 ファミリーマート曽根南町店
    距離 537m
    周辺施設 セブンイレブン豊中曽根東町店
    距離 508m
    周辺施設 ミスタードーナツ阪急曽根ショップ
    距離 392m
    周辺施設 ロッテリア阪急曽根駅店
    距離 423m
    周辺施設 豊中服部郵便局
    距離 493m
    周辺施設 大阪信用金庫豊中支店
    距離 426m

    クイックお問い合わせ

    ここから簡単にお問い合わせをすることができます。
    (SSLでの暗号化での送信を希望されるお客さまは こちら よりお問い合わせください)

    お問い合わせ内容(必須)
    物件のお問い合わせ理由(必須)
    お名前・ご担当者様名(必須) 姓  名 
    メールアドレス(必須)
    ※携帯電話のメールアドレスをご入力される方はこちらをご確認ください
    電話番号(必須)
    - -
    備考欄 希望条件、物件案内希望日、質問などがございましたらご記入ください。
    お問い合わせを行う前に「個人情報の取り扱いについて」を必ずお読みください。
    「個人情報の取り扱いについて」に同意いただいた場合は「上記にご同意の上 確認画面へ進む」のボタンをクリックしてください。

    個人情報の取り扱いについて

    皆さまが送付された個人情報はアットホーム(株)のサーバを経由し、お問い合わせ先の不動産会社にメールまたはFAXにて転送されるためアットホーム(株)にも保管されます。アットホーム(株)で保管された個人情報の取り扱いについては、【こちら】をご覧ください。
    また、本画面でご記入いただいた個人情報は、お問い合わせ先の不動産会社でも保管します。 お問い合わせ先の不動産会社が保管する個人情報の取り扱いについては、不動産会社に直接お問い合わせください。

    情報提供会社

    情報提供会社

    店舗事務所工場紹介センター

    国土交通大臣免許(2)第9391号

    交通:
    京阪本線/古川橋駅 徒歩10分
    大阪府門真市深田町1-6-103 
    TEL:
    06-7163-5160
    FAX:
    06-7177-2569
    所属団体:
    (公社)全日本不動産協会会員
    (公社)近畿地区不動産公正取引協議会加盟

    取引態様:仲介

    • 会社情報
    • 50026158
    スマートフォンで
    この不動産会社を見る
    QRコード
    • お問い合わせ
    • 提携サイト等より掲載されている物件情報につきましては、不動産会社詳細情報にリンクされていないものがあります。
    • 物件に関するお問合せは、物件詳細ページの「情報提供会社」に表示されている不動産会社へ直接お願いいたします。
    • 間取図は、現況を優先させていただきます。
    • 映像は物件の一部を撮影したものです。物件の契約にあたっての最終判断はご自身の判断に基づいて行ってください。
    • 仲介手数料について仲介手数料

    アットホームは物件情報の適正化に努めております。 内容に誤りがある場合にはこちらへご連絡ください。


    物件画像: