賃貸や不動産はアットホーム-賃貸マンション・賃貸物件・不動産なら アットホーム

長崎県佐世保市山県町(佐世保駅)の貸店舗:物件詳細

  • 物件詳細
  • 情報の見方
  • 印刷用画面
交通
所在地
駅徒歩 賃料
管理費等
敷金/保証金
礼金
使用部分面積
坪数/坪単価
物件種目
築年月

JR佐世保線/佐世保
[バス利用可] バス 5分 京町 停歩5分 新着

長崎県佐世保市山県町

10分

13.2万円

15,900円

3ヶ月 / なし

なし

33.25m²

10.05坪/1.3124万円

貸店舗

1991年8月(築34年9ヶ月)

おすすめコメント

佐世保市の歓楽街の中心地のひとつ山県町に位置する飲食店ビルです。

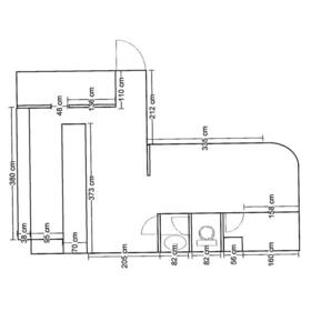
間取図

間取図

<
その他の画像
>
    • お問い合わせ
    交通

    JR佐世保線 佐世保駅 徒歩10分
    [バス利用可] バス 5分 京町 停歩5分

    所在地 長崎県佐世保市山県町
    物件種目 貸店舗
    賃料 13.2万円 管理費等 15,900円
    敷金 / 保証金 3ヶ月 / なし 礼金 なし
    敷引 坪単価 1.3124万円
    保証金償却 権利金
    造作譲渡 その他一時金
    維持費等 町費:500円/月 保険等 要 借家賠付店舗総合保険
    使用部分面積 33.25m² 坪数 10.05坪
    築年月 1991年8月(築34年9ヶ月) 階建 / 階 6階建 / 5階
    駐車場 バイク置き場
    駐輪場 土地面積
    接道状況 南東 公道 ・ 北西 公道 ・ 二方道路 用途地域 商業地域
    間取り ワンルーム 建物構造 RC
    建物名・部屋番号 大川ビル 5F-A
    リフォーム履歴
    リノベーション履歴
    特記事項 土日・祝日利用可、飲食店可
    備考
    賃貸保証等:加入要(ジェイリース賃貸保証 月額総支払額×100% 契約締結時一時払い)
    管理形態/管理員の勤務形態:-/-
    室内設備品・内装造作・配管について、貸主は撤去・修理の責任を負いません。
    エネルギー消費性能
    断熱性能
    目安光熱費
    バス・トイレ トイレ
    キッチン
    設備・サービス 都市ガス、火災警報器(報知機)
    その他 エレベーター
    契約期間 2年 条件等
    引渡可能時期 即時 現況
    仲介手数料 1ヶ月 適格請求書発行
    更新料 なし 物件番号 6990225553
    情報公開日 2026年4月6日 次回更新予定日 2026年4月20日
    ケータイ用バーコード

    QRコード

    スマートフォンでこの物件を見る
    スマートフォンからもこの物件をご覧になれます。
    ※「-」と表示されている項目については、情報提供会社にご確認ください。

    この物件の周辺情報

    周辺施設 島地シティ夜間保育園
    距離 322m
    周辺施設 佐世保塩浜郵便局
    距離 97m
    周辺施設 佐賀銀行佐世保支店
    距離 306m
    周辺施設 十八親和銀行佐世保支店
    距離 361m

    クイックお問い合わせ

    ここから簡単にお問い合わせをすることができます。
    (SSLでの暗号化での送信を希望されるお客さまは こちら よりお問い合わせください)

    お問い合わせ内容(必須)
    物件のお問い合わせ理由(必須)
    お名前・ご担当者様名(必須) 姓  名 
    メールアドレス(必須)
    ※携帯電話のメールアドレスをご入力される方はこちらをご確認ください
    電話番号(必須)
    - -
    備考欄 希望条件、物件案内希望日、質問などがございましたらご記入ください。
    お問い合わせを行う前に「個人情報の取り扱いについて」を必ずお読みください。
    「個人情報の取り扱いについて」に同意いただいた場合は「上記にご同意の上 確認画面へ進む」のボタンをクリックしてください。

    個人情報の取り扱いについて

    皆さまが送付された個人情報はアットホーム(株)のサーバを経由し、お問い合わせ先の不動産会社にメールまたはFAXにて転送されるためアットホーム(株)にも保管されます。アットホーム(株)で保管された個人情報の取り扱いについては、【こちら】をご覧ください。
    また、本画面でご記入いただいた個人情報は、お問い合わせ先の不動産会社でも保管します。 お問い合わせ先の不動産会社が保管する個人情報の取り扱いについては、不動産会社に直接お問い合わせください。

    情報提供会社

    情報提供会社

    (有)佐世保不動産

    長崎県知事免許(5)第3452号

    交通:
    JR佐世保線/佐世保駅 徒歩2分 【バス】2分 戸尾町 停歩1分
    長崎県佐世保市三浦町3-5 
    TEL:
    0956-23-5815
    FAX:
    0956-24-6827
    所属団体:
    (公社)長崎県宅地建物取引業協会会員
    (一社)九州不動産公正取引協議会加盟

    取引態様:仲介

    • 会社情報
    • 80501104
    スマートフォンで
    この不動産会社を見る
    QRコード
    • お問い合わせ
    • 提携サイト等より掲載されている物件情報につきましては、不動産会社詳細情報にリンクされていないものがあります。
    • 物件に関するお問合せは、物件詳細ページの「情報提供会社」に表示されている不動産会社へ直接お願いいたします。
    • 間取図は、現況を優先させていただきます。
    • 映像は物件の一部を撮影したものです。物件の契約にあたっての最終判断はご自身の判断に基づいて行ってください。
    • 仲介手数料について仲介手数料

    アットホームは物件情報の適正化に努めております。 内容に誤りがある場合にはこちらへご連絡ください。


    物件画像: