賃貸や不動産はアットホーム-賃貸マンション・賃貸物件・不動産なら アットホーム

東京都江戸川区平井6丁目(平井駅)の貸店舗:物件詳細

  • 物件詳細
  • 情報の見方
  • 印刷用画面
交通
所在地
駅徒歩 賃料
管理費等
敷金/保証金
礼金
使用部分面積
坪数/坪単価
物件種目
築年月

JR総武線/平井 新着

東京都江戸川区平井6丁目

6分

30.8万円

なし

なし / 6ヶ月

1ヶ月

69.42m²

20.99坪/1.4668万円

貸店舗

1967年11月(築58年6ヶ月)

おすすめコメント

新規開業・追加出店・移転をお考えの方は注目!居抜き物件のため、すぐに営業が可能です。

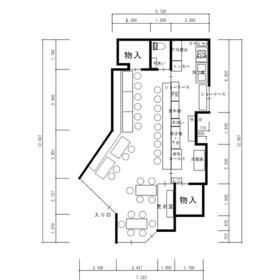
間取図

間取図

<
その他の画像
>
    • お問い合わせ
    交通

    JR総武線 平井駅 徒歩6分

    所在地 東京都江戸川区平井6丁目
    物件種目 貸店舗
    賃料 30.8万円 管理費等 なし
    敷金 / 保証金 なし / 6ヶ月 礼金 1ヶ月
    敷引 坪単価 1.4668万円
    保証金償却 解約時3ヶ月 権利金
    造作譲渡 500万円 その他一時金 なし
    維持費等 保険等 要 2年 20,000円
    使用部分面積 69.42m² 坪数 20.99坪
    築年月 1967年11月(築58年6ヶ月) 階建 / 階 4階建 / 1階
    駐車場 バイク置き場
    駐輪場 土地面積
    接道状況 用途地域
    間取り 建物構造 RC
    アピールポイント カラオケ設備もあります!
    建物名・部屋番号  
    リフォーム履歴
    リノベーション履歴
    特記事項 居抜き、飲食店可
    備考
    賃貸保証等:加入要(初回保証料 賃料等の1ヵ月)
    管理形態/管理員の勤務形態:-/-
    エネルギー消費性能
    断熱性能
    目安光熱費
    バス・トイレ
    キッチン
    設備・サービス 看板取付スペースあり、空調機あり、換気口あり、排煙設備あり、グリストラップあり、排水設備あり
    その他
    契約期間 3年 条件等
    引渡可能時期 即時 現況
    仲介手数料 1ヶ月 適格請求書発行 不可
    更新料 新賃料 1ヶ月 物件番号 6990224386
    情報公開日 2026年4月6日 次回更新予定日 2026年4月20日
    ケータイ用バーコード

    QRコード

    スマートフォンでこの物件を見る
    スマートフォンからもこの物件をご覧になれます。
    ※「-」と表示されている項目については、情報提供会社にご確認ください。

    この物件の周辺情報

    周辺施設 ワイズマート平井店
    距離 270m
    周辺施設 まいばすけっと平井駅南店
    距離 442m
    周辺施設 西友平井店
    距離 443m
    周辺施設 Food warehouseシャポーロコ平井店
    距離 430m
    周辺施設 コモディイイダ平井北口店
    距離 524m

    クイックお問い合わせ

    ここから簡単にお問い合わせをすることができます。
    (SSLでの暗号化での送信を希望されるお客さまは こちら よりお問い合わせください)

    お問い合わせ内容(必須)
    物件のお問い合わせ理由(必須)
    お名前・ご担当者様名(必須) 姓  名 
    メールアドレス(必須)
    ※携帯電話のメールアドレスをご入力される方はこちらをご確認ください
    電話番号(必須)
    - -
    備考欄 希望条件、物件案内希望日、質問などがございましたらご記入ください。
    お問い合わせを行う前に「個人情報の取り扱いについて」を必ずお読みください。
    「個人情報の取り扱いについて」に同意いただいた場合は「上記にご同意の上 確認画面へ進む」のボタンをクリックしてください。

    個人情報の取り扱いについて

    皆さまが送付された個人情報はアットホーム(株)のサーバを経由し、お問い合わせ先の不動産会社にメールまたはFAXにて転送されるためアットホーム(株)にも保管されます。アットホーム(株)で保管された個人情報の取り扱いについては、【こちら】をご覧ください。
    また、本画面でご記入いただいた個人情報は、お問い合わせ先の不動産会社でも保管します。 お問い合わせ先の不動産会社が保管する個人情報の取り扱いについては、不動産会社に直接お問い合わせください。

    情報提供会社

    情報提供会社

    (株)ROOTS 清澄白河店

    東京都知事免許(3)第97304号

    交通:
    東京メトロ半蔵門線/清澄白河駅 徒歩1分
    東京都江東区白河2丁目11-6 プロス白河1F
    TEL:
    03-6458-8466
    FAX:
    03-6458-8499
    所属団体:
    (公社)東京都宅地建物取引業協会会員
    (公社)首都圏不動産公正取引協議会加盟

    取引態様:仲介

    • 会社情報
    • 00267007
    スマートフォンで
    この不動産会社を見る
    QRコード
    • お問い合わせ
    • 提携サイト等より掲載されている物件情報につきましては、不動産会社詳細情報にリンクされていないものがあります。
    • 物件に関するお問合せは、物件詳細ページの「情報提供会社」に表示されている不動産会社へ直接お願いいたします。
    • 間取図は、現況を優先させていただきます。
    • 映像は物件の一部を撮影したものです。物件の契約にあたっての最終判断はご自身の判断に基づいて行ってください。
    • 仲介手数料について仲介手数料

    アットホームは物件情報の適正化に努めております。 内容に誤りがある場合にはこちらへご連絡ください。


    物件画像: