賃貸や不動産はアットホーム-賃貸マンション・賃貸物件・不動産なら アットホーム

神奈川県綾瀬市深谷中6丁目(高座渋谷駅)の貸店舗:物件詳細

  • 物件詳細
  • 情報の見方
  • 印刷用画面
交通
所在地
駅徒歩 賃料
管理費等
敷金/保証金
礼金
使用部分面積
坪数/坪単価
物件種目
築年月

小田急江ノ島線/高座渋谷

神奈川県綾瀬市深谷中6丁目

38分

38.5万円

5ヶ月 / なし

1ヶ月

142.14m²

42.99坪/0.8955万円

住居付き貸店舗(一括)

1971年9月(築54年8ヶ月)

おすすめコメント

ご要望に合わせて、リノベーションを予定しております。現状は古くなってしまっていますが、お客様に合わせてリノベーションできます。賃料も行う工事内容次第で、相談可能です。業種、条件等ご相談ください!

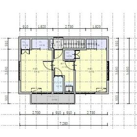
間取図

間取図

1階

間取図

間取図

2階

その他の画像
  • 外観
    • お問い合わせ
    交通

    小田急江ノ島線 高座渋谷駅 徒歩38分

    所在地 神奈川県綾瀬市深谷中6丁目
    物件種目 住居付き貸店舗(一括)
    賃料 38.5万円 管理費等
    敷金 / 保証金 5ヶ月 / なし 礼金 1ヶ月
    敷引 1ヶ月 坪単価 0.8955万円
    保証金償却 権利金
    造作譲渡 その他一時金
    維持費等 保険等
    使用部分面積 142.14m² 坪数 42.99坪
    築年月 1971年9月(築54年8ヶ月) 階建 / 階 2階建
    駐車場 有 無料(空き4台) バイク置き場 有 無料
    駐輪場 有 無料 土地面積
    接道状況 用途地域 1種住居
    間取り 建物構造 木造
    アピールポイント ☆居宅付店舗☆
    入居者様のご要望に合わせて、
    リノベーションを予定しております。
    現状は古くなってしまっていますが、
    お客様に合わせてリノベーションできます。
    賃料も行う工事内容次第で、
    相談可能です。
    業種、条件等ご相談ください!
    建物名・部屋番号  
    リフォーム履歴
    リノベーション履歴
    特記事項 土曜日利用可、土日・祝日利用可、飲食店可、駐車場3台分以上
    備考
    賃貸保証等:加入要(初回保証委託料 賃料総額 100%)
    管理形態/管理員の勤務形態:-/-
    ☆居宅付店舗☆
    入居者様のご要望に合わせて、
    リノベーションを予定しております。
    現状は古くなってしまっていますが、
    お客様に合わせてリノベーションできます。
    賃料も行う工事内容次第で、
    相談可能です。
    業種、条件等ご相談ください!]
    建物①平屋約25坪 建物②2階建約18坪
    エネルギー消費性能
    断熱性能
    目安光熱費
    バス・トイレ バス・トイレ別、シャワー、トイレ
    キッチン オープンキッチン
    設備・サービス
    その他
    契約期間 2年 条件等
    引渡可能時期 相談 現況
    仲介手数料 1.1ヶ月    
    更新料 新賃料 1ヶ月 物件番号 6990172208
    情報公開日 2026年4月3日 次回更新予定日 2026年4月23日
    ケータイ用バーコード

    QRコード

    スマートフォンでこの物件を見る
    スマートフォンからもこの物件をご覧になれます。
    ※「-」と表示されている項目については、情報提供会社にご確認ください。

    クイックお問い合わせ

    ここから簡単にお問い合わせをすることができます。
    (SSLでの暗号化での送信を希望されるお客さまは こちら よりお問い合わせください)

    お問い合わせ内容(必須)
    物件のお問い合わせ理由(必須)
    お名前・ご担当者様名(必須) 姓  名 
    メールアドレス(必須)
    ※携帯電話のメールアドレスをご入力される方はこちらをご確認ください
    電話番号(必須)
    - -
    備考欄 希望条件、物件案内希望日、質問などがございましたらご記入ください。
    お問い合わせを行う前に「個人情報の取り扱いについて」を必ずお読みください。
    「個人情報の取り扱いについて」に同意いただいた場合は「上記にご同意の上 確認画面へ進む」のボタンをクリックしてください。

    個人情報の取り扱いについて

    皆さまが送付された個人情報はアットホーム(株)のサーバを経由し、お問い合わせ先の不動産会社にメールまたはFAXにて転送されるためアットホーム(株)にも保管されます。アットホーム(株)で保管された個人情報の取り扱いについては、【こちら】をご覧ください。
    また、本画面でご記入いただいた個人情報は、お問い合わせ先の不動産会社でも保管します。 お問い合わせ先の不動産会社が保管する個人情報の取り扱いについては、不動産会社に直接お問い合わせください。

    情報提供会社

    情報提供会社

    ファーストリンク(株)

    神奈川県知事免許(2)第29922号

    交通:
    ブルーライン/仲町台駅 徒歩1分
    神奈川県横浜市都筑区仲町台1丁目23-22-201 
    TEL:
    045-511-7197
    FAX:
    045-511-7198
    所属団体:
    (公社)全日本不動産協会会員
    (公財)日本賃貸住宅管理協会会員
    (公社)首都圏不動産公正取引協議会加盟

    取引態様:仲介

    • 会社情報
    • 00263098
    スマートフォンで
    この不動産会社を見る
    QRコード
    • お問い合わせ
    • 提携サイト等より掲載されている物件情報につきましては、不動産会社詳細情報にリンクされていないものがあります。
    • 物件に関するお問合せは、物件詳細ページの「情報提供会社」に表示されている不動産会社へ直接お願いいたします。
    • 間取図は、現況を優先させていただきます。
    • 映像は物件の一部を撮影したものです。物件の契約にあたっての最終判断はご自身の判断に基づいて行ってください。
    • 仲介手数料について仲介手数料

    アットホームは物件情報の適正化に努めております。 内容に誤りがある場合にはこちらへご連絡ください。


    物件画像: