東京メトロ丸ノ内線/赤坂見附
東京都港区赤坂4丁目
3分
148.8608万円
139,557円
10ヶ月 / なし
なし
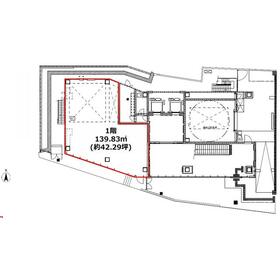
139.83m²
42.29坪/3.5194万円
貸店舗・事務所
2026年1月(築1年未満)
間取図
東京メトロ丸ノ内線 赤坂見附駅 徒歩3分
東京メトロ半蔵門線 永田町駅 徒歩7分
東京メトロ千代田線 赤坂駅 徒歩6分
ここから簡単にお問い合わせをすることができます。(SSLでの暗号化での送信を希望されるお客さまは こちら よりお問い合わせください)
携帯電話のメール受信設定でドメイン指定受信設定をしている方は、 アットホームからのお問い合わせ内容確認メールおよび不動産会社からの返信メールが届かない場合があります。 必ず、下記ドメインからのメールが受信できるように設定の変更をお願いします。
アットホームからのお問い合せ内容確認メール:athome.jp (株)バイオンマネジメント:bion-mg.com
皆さまが送付された個人情報はアットホーム(株)のサーバを経由し、お問い合わせ先の不動産会社にメールまたはFAXにて転送されるためアットホーム(株)にも保管されます。アットホーム(株)で保管された個人情報の取り扱いについては、【こちら】をご覧ください。 また、本画面でご記入いただいた個人情報は、お問い合わせ先の不動産会社でも保管します。 お問い合わせ先の不動産会社が保管する個人情報の取り扱いについては、不動産会社に直接お問い合わせください。
東京都知事免許(3)第92936号
取引態様:仲介
アットホームは物件情報の適正化に努めております。 内容に誤りがある場合にはこちらへご連絡ください。