賃貸や不動産はアットホーム-賃貸マンション・賃貸物件・不動産なら アットホーム

大阪府豊中市北桜塚3丁目(岡町駅)の貸店舗:物件詳細

  • 物件詳細
  • 情報の見方
  • 印刷用画面
交通
所在地
駅徒歩 賃料
管理費等
敷金/保証金
礼金
使用部分面積
坪数/坪単価
物件種目
築年月

阪急宝塚線/岡町

大阪府豊中市北桜塚3丁目

6分

56.43万円

11,000円

1ヶ月 / なし

2ヶ月

188.40m²

56.99坪/0.9902万円

貸店舗・事務所

1990年1月(築36年4ヶ月)

おすすめコメント

約50坪超の広々としたスケルトン空間で、自由なレイアウトが可能。豊中・岡町の2駅利用可でアクセスも良好。業種相談も柔軟に対応でき、理想の店舗・事務所づくりに最適です。

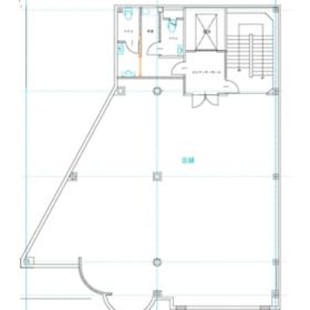
間取図

間取図

外観

外観

その他の画像
  • 外観
  • 周辺環境
  • 周辺環境
  • その他
  • その他
    • お問い合わせ
    交通

    阪急宝塚線 岡町駅 徒歩6分

    その他の交通

    阪急宝塚線 豊中駅 徒歩10分

    阪急宝塚線 曽根駅 徒歩15分

    所在地 大阪府豊中市北桜塚3丁目
    物件種目 貸店舗・事務所
    賃料 56.43万円 管理費等 11,000円
    敷金 / 保証金 1ヶ月 / なし 礼金 2ヶ月
    敷引 坪単価 0.9902万円
    保証金償却 権利金
    造作譲渡 その他一時金
    維持費等 保険等 要 火災
    使用部分面積 188.40m² 坪数 56.99坪
    築年月 1990年1月(築36年4ヶ月) 階建 / 階 地上3階地下1階建 / 2階
    駐車場 有 16,500円/月
    空車状況は随時確認のこと
    バイク置き場
    駐輪場 有 無料 土地面積
    接道状況 用途地域
    間取り 建物構造 鉄骨造
    アピールポイント 約50坪超の広々としたスケルトン空間で、自由なレイアウトが可能。豊中・岡町の2駅利用可でアクセスも良好。業種相談も柔軟に対応でき、理想の店舗・事務所づくりに最適です。
    建物名・部屋番号 センスビルディング北桜塚 2階
    リフォーム履歴
    リノベーション履歴
    特記事項 スケルトン、飲食店不可、1フロア1テナント、角部屋、24時間セキュリティー
    備考
    賃貸保証等:加入要(貸主指定)
    管理形態/管理員の勤務形態:-/-
    電気代;管理会社検針
    袖看板あり

    駐輪場;無料
    専用ごみステーションあり

    短期解約違約金:1年未満→総賃料の2ヶ月分、2年未満→総賃料の1ヶ月分
    エネルギー消費性能
    断熱性能
    目安光熱費
    バス・トイレ トイレ2ヶ所、共用部分に男女別トイレあり
    キッチン
    設備・サービス 看板取付スペースあり
    給湯、都市ガス、エアコン、暖房、冷房、火災警報器(報知機)、インターネット対応
    その他
    契約期間 2年 条件等
    引渡可能時期 相談 現況
    更新料 物件番号 6990136147
    情報公開日 2026年3月31日 次回更新予定日 2026年4月14日
    ケータイ用バーコード

    QRコード

    スマートフォンでこの物件を見る
    スマートフォンからもこの物件をご覧になれます。
    ※「-」と表示されている項目については、情報提供会社にご確認ください。

    この物件の周辺情報

    周辺施設 ソフトバンク豊中中央
    距離 94m
    周辺施設 播州信用金庫豊中支店
    距離 94m
    周辺施設 ファミリーマート豊中中桜塚店
    距離 283m
    周辺施設 大阪厚生信用金庫豊中支店
    距離 125m
    周辺施設 スシロー桜塚店
    距離 246m
    周辺施設 豊中市役所
    距離 254m
    周辺施設 カーブス中桜塚
    距離 275m
    周辺施設 豊中市北消防署
    距離 313m

    クイックお問い合わせ

    ここから簡単にお問い合わせをすることができます。
    (SSLでの暗号化での送信を希望されるお客さまは こちら よりお問い合わせください)

    お問い合わせ内容(必須)
    物件のお問い合わせ理由(必須)
    お名前・ご担当者様名(必須) 姓  名 
    メールアドレス(必須)
    ※携帯電話のメールアドレスをご入力される方はこちらをご確認ください
    電話番号(必須)
    - -
    備考欄 希望条件、物件案内希望日、質問などがございましたらご記入ください。
    お問い合わせを行う前に「個人情報の取り扱いについて」を必ずお読みください。
    「個人情報の取り扱いについて」に同意いただいた場合は「上記にご同意の上 確認画面へ進む」のボタンをクリックしてください。

    個人情報の取り扱いについて

    皆さまが送付された個人情報はアットホーム(株)のサーバを経由し、お問い合わせ先の不動産会社にメールまたはFAXにて転送されるためアットホーム(株)にも保管されます。アットホーム(株)で保管された個人情報の取り扱いについては、【こちら】をご覧ください。
    また、本画面でご記入いただいた個人情報は、お問い合わせ先の不動産会社でも保管します。 お問い合わせ先の不動産会社が保管する個人情報の取り扱いについては、不動産会社に直接お問い合わせください。

    情報提供会社

    情報提供会社

    (株)TFC 大阪営業所

    国土交通大臣免許(1)第10868号

    交通:
    地下鉄御堂筋線/本町駅 徒歩3分
    大阪府大阪市中央区久太郎町2丁目5-31 関電不動産船場ビル12階
    TEL:
    06-4256-1755
    FAX:
    06-4256-0761
    所属団体:
    (一社)大阪府宅地建物取引業協会会員
    (公社)近畿地区不動産公正取引協議会加盟

    取引態様:仲介

    • 会社情報
    • 50110973
    スマートフォンで
    この不動産会社を見る
    QRコード
    • お問い合わせ
    • 提携サイト等より掲載されている物件情報につきましては、不動産会社詳細情報にリンクされていないものがあります。
    • 物件に関するお問合せは、物件詳細ページの「情報提供会社」に表示されている不動産会社へ直接お願いいたします。
    • 間取図は、現況を優先させていただきます。
    • 映像は物件の一部を撮影したものです。物件の契約にあたっての最終判断はご自身の判断に基づいて行ってください。
    • 仲介手数料について仲介手数料

    アットホームは物件情報の適正化に努めております。 内容に誤りがある場合にはこちらへご連絡ください。


    物件画像: