賃貸や不動産はアットホーム-賃貸マンション・賃貸物件・不動産なら アットホーム

京都府京都市中京区西ノ京南聖町(二条駅)の貸店舗:物件詳細

  • 物件詳細
  • 情報の見方
  • 印刷用画面
交通
所在地
駅徒歩 賃料
管理費等
敷金/保証金
礼金
使用部分面積
坪数/坪単価
物件種目
築年月

JR山陰本線/二条

京都府京都市中京区西ノ京南聖町

5分

16.5万円

3ヶ月 / なし

2ヶ月

42.55m²

12.87坪/1.282万円

貸店舗・事務所

1973年8月(築52年9ヶ月)

おすすめコメント

★★内装リノベ工事実施決定★★(2026年6月完成予定)現状スケルトンから生まれ変わります!(同ビル内装施工例の写真掲載中)

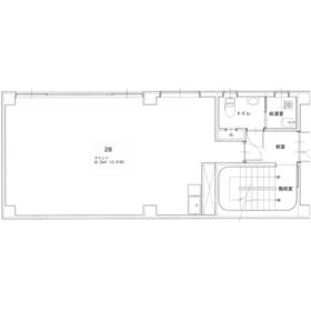
間取図

間取図

外観

外観

<
その他の画像
  • 室内
  • 室内
  • 共有部分
  • 共有部分
  • 設備
  • 共有部分
  • 共有部分
  • 共有部分
  • 外観
  • 外観
  • その他
  • その他
>
    • お問い合わせ
    交通

    JR山陰本線 二条駅 徒歩5分

    その他の交通

    地下鉄東西線 二条駅 徒歩5分

    京福電鉄嵐山本線 四条大宮駅 徒歩10分

    所在地 京都府京都市中京区西ノ京南聖町
    物件種目 貸店舗・事務所
    賃料 16.5万円 管理費等
    敷金 / 保証金 3ヶ月 / なし 礼金 2ヶ月
    敷引 坪単価 1.282万円
    保証金償却 権利金
    造作譲渡 その他一時金
    維持費等 保険等
    使用部分面積 42.55m² 坪数 12.87坪
    築年月 1973年8月(築52年9ヶ月) 階建 / 階 4階建 / 2階
    駐車場 空無
    敷地内は「屋根付き」です。
    バイク置き場
    駐輪場 有 無料 土地面積
    接道状況 用途地域
    間取り 建物構造 RC
    建物名・部屋番号 津田ビル
    リフォーム履歴 ■外装:2024年7月
    外壁
    タイル補修、シール打替
    ■共用部の大規模修繕工事:2024年7月
    階段・廊下(壁塗装、床張替)、照明(LEDライト)、トイレ・手洗い(新設)
    ※実施年月は最も古い履歴を表示
    リノベーション履歴 2026年6月
    壁、床、天井、給排水、照明(LEDライト)、エアコン、流し台、電気温水器
    ※実施年月は最も古い履歴を表示
    特記事項 飲食店不可
    備考
    賃貸保証等:加入要(USENTRUST 初回:賃料等の100% 年間:賃料等の10% 月次手数料:440円(税込))
    管理形態/管理員の勤務形態:-/-
    ●内装リノベ工事実施(壁・床・天井・給排水・照明(LEDライト)・エアコン・流し台・電気温水器 etc..)
    ●改修工事実施済(外壁・共有部)
    ●三条会商店街内
    ●3WAY(JR山陰線・地下鉄東西線・阪急京都線)アクセス可
    エネルギー消費性能
    断熱性能
    目安光熱費
    バス・トイレ 共用部分にトイレあり
    キッチン
    設備・サービス 給湯、エアコン
    その他
    契約期間 2年 条件等
    引渡可能時期 2026年7月上旬予定 現況
    更新料 なし 物件番号 6990103419
    情報公開日 2026年3月28日 次回更新予定日 2026年4月11日
    ケータイ用バーコード

    QRコード

    スマートフォンでこの物件を見る
    スマートフォンからもこの物件をご覧になれます。
    ※「-」と表示されている項目については、情報提供会社にご確認ください。

    この物件の周辺情報

    周辺施設 フレスコ三条店
    距離 120m
    周辺施設 ファミリーマート千本三条店
    距離 95m
    周辺施設 セブンイレブン京都二条駅南店
    距離 105m
    周辺施設 京都西ノ京職司郵便局
    距離 440m
    周辺施設 京都信用金庫朱雀支店
    距離 200m
    周辺施設 京都銀行二条駅前支店
    距離 300m
    周辺施設 京都中央信用金庫三条支店
    距離 290m
    周辺施設 京都市中京区役所
    距離 980m

    クイックお問い合わせ

    ここから簡単にお問い合わせをすることができます。
    (SSLでの暗号化での送信を希望されるお客さまは こちら よりお問い合わせください)

    お問い合わせ内容(必須)
    物件のお問い合わせ理由(必須)
    お名前・ご担当者様名(必須) 姓  名 
    メールアドレス(必須)
    ※携帯電話のメールアドレスをご入力される方はこちらをご確認ください
    電話番号(必須)
    - -
    備考欄 希望条件、物件案内希望日、質問などがございましたらご記入ください。
    お問い合わせを行う前に「個人情報の取り扱いについて」を必ずお読みください。
    「個人情報の取り扱いについて」に同意いただいた場合は「上記にご同意の上 確認画面へ進む」のボタンをクリックしてください。

    個人情報の取り扱いについて

    皆さまが送付された個人情報はアットホーム(株)のサーバを経由し、お問い合わせ先の不動産会社にメールまたはFAXにて転送されるためアットホーム(株)にも保管されます。アットホーム(株)で保管された個人情報の取り扱いについては、【こちら】をご覧ください。
    また、本画面でご記入いただいた個人情報は、お問い合わせ先の不動産会社でも保管します。 お問い合わせ先の不動産会社が保管する個人情報の取り扱いについては、不動産会社に直接お問い合わせください。

    情報提供会社

    情報提供会社

    不動産プロ(株) 本店

    京都府知事免許(2)第14045号

    交通:
    地下鉄烏丸線/四条駅 徒歩4分
    京都府京都市中京区錦小路通室町西入天神山町280 石勘ビル 5F-30号
    TEL:
    075-874-7605
    FAX:
    075-320-5232
    所属団体:
    (公社)京都府宅地建物取引業協会会員
    (公財)日本賃貸住宅管理協会会員
    (公社)近畿地区不動産公正取引協議会加盟

    取引態様:仲介

    • 会社情報
    • 50105349
    スマートフォンで
    この不動産会社を見る
    QRコード
    • お問い合わせ
    • 提携サイト等より掲載されている物件情報につきましては、不動産会社詳細情報にリンクされていないものがあります。
    • 物件に関するお問合せは、物件詳細ページの「情報提供会社」に表示されている不動産会社へ直接お願いいたします。
    • 間取図は、現況を優先させていただきます。
    • 映像は物件の一部を撮影したものです。物件の契約にあたっての最終判断はご自身の判断に基づいて行ってください。
    • 仲介手数料について仲介手数料

    アットホームは物件情報の適正化に努めております。 内容に誤りがある場合にはこちらへご連絡ください。


    物件画像: