賃貸や不動産はアットホーム-賃貸マンション・賃貸物件・不動産なら アットホーム

愛知県名古屋市中区栄4丁目(栄駅)の貸店舗:物件詳細

  • 物件詳細
  • 情報の見方
  • 印刷用画面
交通
所在地
駅徒歩 賃料
管理費等
敷金/保証金
礼金
使用部分面積
坪数/坪単価
物件種目
築年月

名古屋市名城線/

愛知県名古屋市中区栄4丁目

5分

14.091万円

26,400円

なし / 150万円

なし

28.24m²

8.54坪/1.6496万円

貸店舗・事務所

1992年9月(築33年8ヶ月)

おすすめコメント

内装ありますのですぐに始められます。

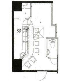
間取図

間取図

室内

室内

その他の画像
  • 室内
  • キッチン
  • 室内
  • トイレ
  • 外観
  • 外観
    • お問い合わせ
    交通

    名古屋市名城線 栄駅 徒歩5分

    その他の交通

    名鉄瀬戸線 栄町駅 徒歩7分

    名古屋市名城線 矢場町駅 徒歩10分

    所在地 愛知県名古屋市中区栄4丁目
    物件種目 貸店舗・事務所
    賃料 14.091万円 管理費等 26,400円
    敷金 / 保証金 なし / 150万円 礼金 なし
    敷引 坪単価 1.6496万円
    保証金償却 解約時55% 権利金
    造作譲渡 その他一時金
    維持費等 保険等
    使用部分面積 28.24m² 坪数 8.54坪
    築年月 1992年9月(築33年8ヶ月) 階建 / 階 8階建 / 8階
    駐車場 バイク置き場
    駐輪場 土地面積
    接道状況 用途地域 商業地域
    間取り 建物構造 RC
    アピールポイント 広小路通りより1本裏道で人気ある通りになります。
    建物名・部屋番号 8D
    リフォーム履歴
    リノベーション履歴
    特記事項 居抜き、土曜日利用可、土日・祝日利用可、飲食店可、角部屋、最上階
    備考
    管理形態/管理員の勤務形態:-/-
    エネルギー消費性能
    断熱性能
    目安光熱費
    バス・トイレ 専有部分にトイレあり
    キッチン
    設備・サービス 看板取付スペースあり、空調機あり、換気口あり
    給湯、都市ガス、エアコン、インターネット対応
    その他 エレベーター
    契約期間 1年 条件等
    引渡可能時期 即時 現況
    更新料 物件番号 6990099118
    情報公開日 2026年3月28日 次回更新予定日 2026年4月11日
    ケータイ用バーコード

    QRコード

    スマートフォンでこの物件を見る
    スマートフォンからもこの物件をご覧になれます。
    ※「-」と表示されている項目については、情報提供会社にご確認ください。

    この物件の周辺情報

    周辺施設 名古屋東急ホテル東急アヴェ
    距離 281m
    周辺施設 ローソン広小路栄四丁目店
    距離 77m
    周辺施設 デイリーヤマザキ名古屋女子大小路店
    距離 134m
    周辺施設 バーガーキング栄広小路店
    距離 143m
    周辺施設 名古屋東新町郵便局
    距離 238m
    周辺施設 東京スター銀行名古屋支店ファイナンシャル・ラウンジ
    距離 361m
    周辺施設 三菱UFJ信託銀行名古屋支店
    距離 355m
    周辺施設 K.Oパーキング
    距離 92m

    クイックお問い合わせ

    ここから簡単にお問い合わせをすることができます。
    (SSLでの暗号化での送信を希望されるお客さまは こちら よりお問い合わせください)

    お問い合わせ内容(必須)
    物件のお問い合わせ理由(必須)
    お名前・ご担当者様名(必須) 姓  名 
    メールアドレス(必須)
    ※携帯電話のメールアドレスをご入力される方はこちらをご確認ください
    電話番号(必須)
    - -
    備考欄 希望条件、物件案内希望日、質問などがございましたらご記入ください。
    お問い合わせを行う前に「個人情報の取り扱いについて」を必ずお読みください。
    「個人情報の取り扱いについて」に同意いただいた場合は「上記にご同意の上 確認画面へ進む」のボタンをクリックしてください。

    個人情報の取り扱いについて

    皆さまが送付された個人情報はアットホーム(株)のサーバを経由し、お問い合わせ先の不動産会社にメールまたはFAXにて転送されるためアットホーム(株)にも保管されます。アットホーム(株)で保管された個人情報の取り扱いについては、【こちら】をご覧ください。
    また、本画面でご記入いただいた個人情報は、お問い合わせ先の不動産会社でも保管します。 お問い合わせ先の不動産会社が保管する個人情報の取り扱いについては、不動産会社に直接お問い合わせください。

    情報提供会社

    情報提供会社

    (株)ハインズ

    愛知県知事免許(1)第25711号

    交通:
    名古屋市東山線/栄駅 徒歩7分
    愛知県名古屋市中区錦3丁目10-14 協和錦ビル4F
    TEL:
    052-957-2151
    FAX:
    052-855-3593
    所属団体:
    (公社)愛知県宅地建物取引業協会会員
    東海不動産公正取引協議会加盟

    取引態様:仲介

    • 会社情報
    • 40411512
    スマートフォンで
    この不動産会社を見る
    QRコード
    • お問い合わせ
    • 提携サイト等より掲載されている物件情報につきましては、不動産会社詳細情報にリンクされていないものがあります。
    • 物件に関するお問合せは、物件詳細ページの「情報提供会社」に表示されている不動産会社へ直接お願いいたします。
    • 間取図は、現況を優先させていただきます。
    • 映像は物件の一部を撮影したものです。物件の契約にあたっての最終判断はご自身の判断に基づいて行ってください。
    • 仲介手数料について仲介手数料

    アットホームは物件情報の適正化に努めております。 内容に誤りがある場合にはこちらへご連絡ください。


    物件画像: