賃貸や不動産はアットホーム-賃貸マンション・賃貸物件・不動産なら アットホーム

熊本県菊池郡菊陽町大字原水(原水駅)の貸店舗:物件詳細

  • 物件詳細
  • 情報の見方
  • 印刷用画面
交通
所在地
駅徒歩 賃料
管理費等
敷金/保証金
礼金
使用部分面積
坪数/坪単価
物件種目
築年月

JR豊肥本線/原水

熊本県菊池郡菊陽町大字原水

17分

55万円

3ヶ月 / なし

なし

334.60m²

101.21坪/0.5434万円

貸店舗・事務所(一括)

2008年1月(築18年4ヶ月)

おすすめコメント

菊陽町でテナントをお探しの方にオススメ☆菊陽中部小、菊陽中から徒歩圏内の学習塾跡です!!

間取図

間取図

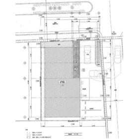
建物の平面図と駐車場配置図

間取図

間取図

1階部分の平面図。事務室に壁はございません。

<
その他の画像
  • 間取図
  • 外観
  • 室内
  • 室内
  • 室内
  • 室内
  • 室内
  • 収納
  • 室内
  • 室内
  • 室内
  • 室内
  • トイレ
  • トイレ
  • 外観
  • コンビニ
  • コンビニ
  • ショッピング施設
  • ショッピング施設
  • 役所
  • 郵便局
  • 中学校
  • 小学校
>
    • お問い合わせ
    交通

    JR豊肥本線 原水駅 徒歩17分

    所在地 熊本県菊池郡菊陽町大字原水
    物件種目 貸店舗・事務所(一括)
    賃料 55万円 管理費等
    敷金 / 保証金 3ヶ月 / なし 礼金 なし
    敷引 坪単価 0.5434万円
    保証金償却 権利金
    造作譲渡 その他一時金 なし
    維持費等 保険等
    使用部分面積 334.60m² 坪数 101.21坪
    築年月 2008年1月(築18年4ヶ月) 階建 / 階 2階建
    駐車場 有 無料(空き2台) バイク置き場
    駐輪場 有 無料 土地面積 329.00m²(公簿)
    接道状況 北 ・ 東 ・ 二方道路 用途地域 2種中高
    間取り 建物構造 鉄骨造
    アピールポイント 学習塾居抜き物件!菊陽中部小校区、菊陽バイパス沿いに位置するテナント!
    窓が多く開放感のある間取りで学習塾はもちろんのこと、事務所や店舗としても利用可能です♪
    お部屋の数は学習室5部屋、事務スペース、応接室、休憩室が各1部屋ございます。
    内装・外装・残置物・清掃についてはお気軽にご相談ください!
    建物名・部屋番号 菊陽原水貸テナント
    リフォーム履歴
    リノベーション履歴
    特記事項 居抜き、24時間利用可、土曜日利用可、土日・祝日利用可、飲食店不可、駐車場2台分、IT重説対応物件、国道沿いに面する
    備考
    賃貸保証等:加入要(月額総計の100%)
    管理形態/管理員の勤務形態:-/-
    IT重説対応物件
    内装・外装・残置物・清掃等については要相談。
    残置物:学習机80セット以上ございます。その他長テーブル、ロッカー、棚、エアコンなどは現地にて要確認。
    ※現況優先となります。
    エネルギー消費性能
    断熱性能
    目安光熱費
    バス・トイレ トイレ2ヶ所、専有部分に男女別トイレあり
    キッチン
    設備・サービス 看板取付スペースあり
    エアコン2台以上、エアコン
    その他
    契約期間 2年 条件等
    引渡可能時期 相談 現況
    仲介手数料 1.1ヶ月    
    更新料 物件番号 6990088666
    情報公開日 2026年3月27日 次回更新予定日 2026年4月17日
    ケータイ用バーコード

    QRコード

    スマートフォンでこの物件を見る
    スマートフォンからもこの物件をご覧になれます。
    ※「-」と表示されている項目については、情報提供会社にご確認ください。

    この物件の周辺情報

    周辺施設 ファミリーマート菊陽バイパス原水店
    距離 183m
    周辺施設 セブンイレブン菊陽町役場前店
    距離 252m
    周辺施設 アヴァンモール菊陽店
    距離 1406m
    周辺施設 菊陽MEGA MALL
    距離 1689m
    周辺施設 菊陽町役場
    距離 662m
    周辺施設 菊陽久保田郵便局
    距離 603m
    周辺施設 菊陽町立菊陽中学校
    距離 542m
    周辺施設 菊陽町立菊陽中部小学校
    距離 566m

    クイックお問い合わせ

    ここから簡単にお問い合わせをすることができます。
    (SSLでの暗号化での送信を希望されるお客さまは こちら よりお問い合わせください)

    お問い合わせ内容(必須)
    物件のお問い合わせ理由(必須)
    お名前・ご担当者様名(必須) 姓  名 
    メールアドレス(必須)
    ※携帯電話のメールアドレスをご入力される方はこちらをご確認ください
    電話番号(必須)
    - -
    備考欄 希望条件、物件案内希望日、質問などがございましたらご記入ください。
    お問い合わせを行う前に「個人情報の取り扱いについて」を必ずお読みください。
    「個人情報の取り扱いについて」に同意いただいた場合は「上記にご同意の上 確認画面へ進む」のボタンをクリックしてください。

    個人情報の取り扱いについて

    皆さまが送付された個人情報はアットホーム(株)のサーバを経由し、お問い合わせ先の不動産会社にメールまたはFAXにて転送されるためアットホーム(株)にも保管されます。アットホーム(株)で保管された個人情報の取り扱いについては、【こちら】をご覧ください。
    また、本画面でご記入いただいた個人情報は、お問い合わせ先の不動産会社でも保管します。 お問い合わせ先の不動産会社が保管する個人情報の取り扱いについては、不動産会社に直接お問い合わせください。

    情報提供会社

    情報提供会社

    (有)菊陽不動産

    熊本県知事免許(7)第3786号

    交通:
    JR豊肥本線/原水駅 徒歩14分
    熊本県菊池郡菊陽町大字原水1157-3 ラ・ブリーズ菊陽101号
    TEL:
    096-232-6018
    FAX:
    096-232-6642
    所属団体:
    (公社)熊本県宅地建物取引業協会会員
    (一社)全国賃貸不動産管理業協会会員
    (一社)九州不動産公正取引協議会加盟

    取引態様:仲介

    • 会社情報
    • 80501012
    スマートフォンで
    この不動産会社を見る
    QRコード
    • お問い合わせ
    • 提携サイト等より掲載されている物件情報につきましては、不動産会社詳細情報にリンクされていないものがあります。
    • 物件に関するお問合せは、物件詳細ページの「情報提供会社」に表示されている不動産会社へ直接お願いいたします。
    • 間取図は、現況を優先させていただきます。
    • 映像は物件の一部を撮影したものです。物件の契約にあたっての最終判断はご自身の判断に基づいて行ってください。
    • 仲介手数料について仲介手数料

    アットホームは物件情報の適正化に努めております。 内容に誤りがある場合にはこちらへご連絡ください。


    物件画像: