賃貸や不動産はアットホーム-賃貸マンション・賃貸物件・不動産なら アットホーム

大阪府大阪市浪速区桜川3丁目(桜川駅)の貸店舗:物件詳細

  • 物件詳細
  • 情報の見方
  • 印刷用画面
交通
所在地
駅徒歩 賃料
管理費等
敷金/保証金
礼金
使用部分面積
坪数/坪単価
物件種目
築年月

地下鉄千日前線/桜川

大阪府大阪市浪速区桜川3丁目

3分

29.623万円

29,590円

なし / 162.91万円

なし

89.04m²

26.93坪/1.0999万円

貸店舗・事務所

2005年2月(築21年3ヶ月)

おすすめコメント

桜川3丁目 美容室兼飲食店居抜き店舗 1階路面角地で視認性良好!

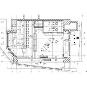
間取図

間取図

<
その他の画像
>
    • お問い合わせ
    交通

    地下鉄千日前線 桜川駅 徒歩3分

    その他の交通

    南海汐見橋線 汐見橋駅 徒歩6分

    南海汐見橋線 芦原町駅 徒歩11分

    所在地 大阪府大阪市浪速区桜川3丁目
    物件種目 貸店舗・事務所
    賃料 29.623万円 管理費等 29,590円
    敷金 / 保証金 なし / 162.91万円 礼金 なし
    敷引 坪単価 1.0999万円
    保証金償却 権利金
    造作譲渡 770万円 その他一時金
    維持費等 保険等
    使用部分面積 89.04m² 坪数 26.93坪
    築年月 2005年2月(築21年3ヶ月) 階建 / 階 9階建 / 1階
    駐車場 バイク置き場
    駐輪場 土地面積
    接道状況 用途地域
    間取り 建物構造 RC
    アピールポイント 「桜川駅」徒歩3分

    あみだ池筋に面する立地

    9階建てマンションの1階店舗区画 約26.93坪

    現況:美容室兼飲食店営業中

    居抜き状態での引き渡しとなります。

    造作譲渡代770万円(税込)

    【美容室】
    セット面×4 シャンプー台×2 エアコン

    【飲食店】
    2口ガスコンロ オーブン 食洗器 冷凍冷蔵庫2ドア
    冷凍庫2ドア 製氷機 グリストラップ エアコン

    引渡時期:要相談

    業種、その他詳細条件等ご相談ください。

    お問い合わせお待ちしております!
    建物名・部屋番号  
    リフォーム履歴
    リノベーション履歴
    特記事項 居抜き、24時間利用可、土曜日利用可、土日・祝日利用可、飲食店可、天井高2.5M以上、IT重説対応物件
    備考
    管理形態/管理員の勤務形態:-/-
    IT重説対応物件
    エネルギー消費性能
    断熱性能
    目安光熱費
    バス・トイレ
    キッチン
    設備・サービス 看板取付スペースあり、シャッター付き
    エアコン2台以上、エアコン、インターネット対応
    その他
    契約期間 2年 条件等
    引渡可能時期 相談 現況 使用中
    更新料 物件番号 6990064069
    情報公開日 2026年3月25日 次回更新予定日 2026年4月22日
    ケータイ用バーコード

    QRコード

    スマートフォンでこの物件を見る
    スマートフォンからもこの物件をご覧になれます。
    ※「-」と表示されている項目については、情報提供会社にご確認ください。

    この物件の周辺情報

    周辺施設 ローソン桜川2丁目店
    距離 50m
    周辺施設 浪速桜川郵便局
    距離 92m
    周辺施設 エネオスDr.Driveセルフ桜川店
    距離 105m
    周辺施設 アポロステーション桜川SS
    距離 122m
    周辺施設 ファミリーマート桜川二丁目店
    距離 164m
    周辺施設 Fレンタカーなんば店
    距離 193m
    周辺施設 ジャパン桜川店
    距離 175m
    周辺施設 食品館アプロ桜川店
    距離 183m

    クイックお問い合わせ

    ここから簡単にお問い合わせをすることができます。
    (SSLでの暗号化での送信を希望されるお客さまは こちら よりお問い合わせください)

    お問い合わせ内容(必須)
    物件のお問い合わせ理由(必須)
    お名前・ご担当者様名(必須) 姓  名 
    メールアドレス(必須)
    ※携帯電話のメールアドレスをご入力される方はこちらをご確認ください
    電話番号(必須)
    - -
    備考欄 希望条件、物件案内希望日、質問などがございましたらご記入ください。
    お問い合わせを行う前に「個人情報の取り扱いについて」を必ずお読みください。
    「個人情報の取り扱いについて」に同意いただいた場合は「上記にご同意の上 確認画面へ進む」のボタンをクリックしてください。

    個人情報の取り扱いについて

    皆さまが送付された個人情報はアットホーム(株)のサーバを経由し、お問い合わせ先の不動産会社にメールまたはFAXにて転送されるためアットホーム(株)にも保管されます。アットホーム(株)で保管された個人情報の取り扱いについては、【こちら】をご覧ください。
    また、本画面でご記入いただいた個人情報は、お問い合わせ先の不動産会社でも保管します。 お問い合わせ先の不動産会社が保管する個人情報の取り扱いについては、不動産会社に直接お問い合わせください。

    情報提供会社

    情報提供会社

    (株)Ride不動産

    大阪府知事免許(1)第62884号

    交通:
    地下鉄御堂筋線/本町駅 徒歩5分
    大阪府大阪市西区南堀江1丁目25-12 RE-015 302号室
    TEL:
    06-6786-8690
    FAX:
    06-6786-8691
    所属団体:
    (公社)全日本不動産協会会員
    (公社)近畿地区不動産公正取引協議会加盟

    取引態様:仲介

    • 会社情報
    • 50106188
    スマートフォンで
    この不動産会社を見る
    QRコード
    • お問い合わせ
    • 提携サイト等より掲載されている物件情報につきましては、不動産会社詳細情報にリンクされていないものがあります。
    • 物件に関するお問合せは、物件詳細ページの「情報提供会社」に表示されている不動産会社へ直接お願いいたします。
    • 間取図は、現況を優先させていただきます。
    • 映像は物件の一部を撮影したものです。物件の契約にあたっての最終判断はご自身の判断に基づいて行ってください。
    • 仲介手数料について仲介手数料

    アットホームは物件情報の適正化に努めております。 内容に誤りがある場合にはこちらへご連絡ください。


    物件画像: