賃貸や不動産はアットホーム-賃貸マンション・賃貸物件・不動産なら アットホーム

千葉県市川市八幡3丁目(本八幡駅)の貸店舗:物件詳細

  • 物件詳細
  • 情報の見方
  • 印刷用画面
交通
所在地
駅徒歩 賃料
管理費等
敷金/保証金
礼金
使用部分面積
坪数/坪単価
物件種目
築年月

JR総武線/本八幡

千葉県市川市八幡3丁目

3分

35.2万円

16,500円

なし / 5ヶ月

1ヶ月

51.51m²

15.58坪/2.2591万円

貸店舗・事務所

2019年9月(築6年8ヶ月)

おすすめコメント

「本八幡駅3分 ワンフロア約15坪、デザイナーズビルの3階店舗」商業地域で商業ビルやタワーマンション近く。◇空室で内見可能です。◇業種ご相談可能です。(重飲食相談可)☆詳細などお問い合わせください。

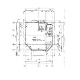
間取図

間取図

その他の画像
    • お問い合わせ
    交通

    JR総武線 本八幡駅 徒歩3分

    その他の交通

    京成本線 京成八幡駅 徒歩2分

    JR総武線 市川駅 徒歩27分

    所在地 千葉県市川市八幡3丁目
    物件種目 貸店舗・事務所
    賃料 35.2万円 管理費等 16,500円
    敷金 / 保証金 なし / 5ヶ月 礼金 1ヶ月
    敷引 坪単価 2.2591万円
    保証金償却 解約時1ヶ月 権利金
    造作譲渡 その他一時金 鍵交換代費用:38,000円、造作譲渡費用:800,000円
    維持費等 保険等
    使用部分面積 51.51m² 坪数 15.58坪
    築年月 2019年9月(築6年8ヶ月) 階建 / 階 6階建 / 3階
    駐車場 バイク置き場
    駐輪場 土地面積
    接道状況 用途地域 商業地域
    間取り 建物構造 RC
    アピールポイント 「本八幡駅3分 ワンフロア約15坪、デザイナーズビルの3階店舗」
    商業地域で商業ビルやタワーマンション近く。

    【概要】
    ◇空室で内見可能です。
    ◇業種ご相談可能です。(重飲食相談可)
    ◇同ビルの同業種はNGとなります。(カフェバー、焼肉店、整体業、不動産業)
    ◇風俗関係はNGです。
    ◇専有面積:51.51㎡(約15.58坪)
    ◇造作譲渡費用:80万円(スケルトンでの引き渡しも相談可)
    ◇鍵交換費用:38,000円
    ◇解約時に保証金の償却1ヶ月あり。

    【設備】
    ◇都市ガス,電気,動力電源,上水道,下水道,エレベータ。

    ☆詳細などお問い合わせください。
    建物名・部屋番号 「本八幡駅3分 ワンフロア約15坪、デザイナーズビルの3階店舗」
    リフォーム履歴
    リノベーション履歴
    特記事項 居抜き、飲食店可、1フロア1テナント
    備考
    管理形態/管理員の勤務形態:-/-
    「本八幡駅3分 ワンフロア約15坪、デザイナーズビルの3階店舗」
    商業地域で商業ビルやタワーマンション近く。

    【概要】
    ◇空室で内見可能です。
    ◇業種ご相談可能です。(重飲食相談可)
    ◇同ビルの同業種はNGとなります。(カフェバー、焼肉店、整体業、不動産業)
    ◇風俗関係はNGです。
    ◇専有面積:51.51㎡(約15.58坪)
    ◇造作譲渡費用:80万円(スケルトンでの引き渡しも相談可)
    ◇鍵交換費用:38,000円
    ◇解約時に保証金の償却1ヶ月あり。

    【設備】
    ◇都市ガス,電気,動力電源,上水道,下水道,エレベータ。

    ☆詳細などお問い合わせください。
    エネルギー消費性能
    断熱性能
    目安光熱費
    バス・トイレ
    キッチン
    設備・サービス
    その他 エレベーター
    契約期間 3年 条件等
    引渡可能時期 相談 現況
    仲介手数料 1ヶ月    
    更新料 新賃料 1.5ヶ月 物件番号 6989968985
    情報公開日 2026年3月18日 次回更新予定日 2026年4月15日
    ケータイ用バーコード

    QRコード

    スマートフォンでこの物件を見る
    スマートフォンからもこの物件をご覧になれます。
    ※「-」と表示されている項目については、情報提供会社にご確認ください。

    この物件の周辺情報

    周辺施設 パティオ本八幡
    距離 225m
    周辺施設 セブンイレブン市川八幡3丁目店
    距離 107m
    周辺施設 ファミリーマート京成八幡駅前店
    距離 107m
    周辺施設 くすりの福太郎八幡駅前店
    距離 107m
    周辺施設 私立昭和学院短期大学
    距離 1467m
    周辺施設 医療法人社団平静会大村病院
    距離 575m
    周辺施設 市川市役所
    距離 367m
    周辺施設 セントラルフィットネスクラブ24本八幡
    距離 234m

    クイックお問い合わせ

    ここから簡単にお問い合わせをすることができます。
    (SSLでの暗号化での送信を希望されるお客さまは こちら よりお問い合わせください)

    お問い合わせ内容(必須)
    物件のお問い合わせ理由(必須)
    お名前・ご担当者様名(必須) 姓  名 
    メールアドレス(必須)
    ※携帯電話のメールアドレスをご入力される方はこちらをご確認ください
    電話番号(必須)
    - -
    備考欄 希望条件、物件案内希望日、質問などがございましたらご記入ください。
    お問い合わせを行う前に「個人情報の取り扱いについて」を必ずお読みください。
    「個人情報の取り扱いについて」に同意いただいた場合は「上記にご同意の上 確認画面へ進む」のボタンをクリックしてください。

    個人情報の取り扱いについて

    皆さまが送付された個人情報はアットホーム(株)のサーバを経由し、お問い合わせ先の不動産会社にメールまたはFAXにて転送されるためアットホーム(株)にも保管されます。アットホーム(株)で保管された個人情報の取り扱いについては、【こちら】をご覧ください。
    また、本画面でご記入いただいた個人情報は、お問い合わせ先の不動産会社でも保管します。 お問い合わせ先の不動産会社が保管する個人情報の取り扱いについては、不動産会社に直接お問い合わせください。

    情報提供会社

    情報提供会社

    リフィックス・コンサルティング(株)

    千葉県知事免許(2)第17753号

    交通:
    JR総武本線/船橋駅 徒歩8分
    千葉県船橋市東船橋7丁目6-4 
    TEL:
    047-707-2875
    FAX:
    047-707-2875
    所属団体:
    (公社)全日本不動産協会会員
    (公社)首都圏不動産公正取引協議会加盟

    取引態様:仲介

    • 会社情報
    • 00269682
    スマートフォンで
    この不動産会社を見る
    QRコード
    • お問い合わせ
    • 提携サイト等より掲載されている物件情報につきましては、不動産会社詳細情報にリンクされていないものがあります。
    • 物件に関するお問合せは、物件詳細ページの「情報提供会社」に表示されている不動産会社へ直接お願いいたします。
    • 間取図は、現況を優先させていただきます。
    • 映像は物件の一部を撮影したものです。物件の契約にあたっての最終判断はご自身の判断に基づいて行ってください。
    • 仲介手数料について仲介手数料

    アットホームは物件情報の適正化に努めております。 内容に誤りがある場合にはこちらへご連絡ください。


    物件画像: