賃貸や不動産はアットホーム-賃貸マンション・賃貸物件・不動産なら アットホーム

福島県福島市栄町(福島駅)の貸店舗:物件詳細

  • 物件詳細
  • 情報の見方
  • 印刷用画面
交通
所在地
駅徒歩 賃料
管理費等
敷金/保証金
礼金
使用部分面積
坪数/坪単価
物件種目
築年月

JR東北本線/福島

福島県福島市栄町

2分

65.6568万円

164,142円

6ヶ月 / なし

1ヶ月

246.66m²

74.61坪/0.88万円

貸店舗・事務所

1971年5月(築55年)

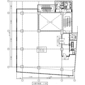
間取図

間取図

外観

外観

その他の画像
  • エントランス
  • トイレ
  • トイレ
  • トイレ
  • 駐車場
    • お問い合わせ
    交通

    JR東北本線 福島駅 徒歩2分

    所在地 福島県福島市栄町
    物件種目 貸店舗・事務所
    賃料 65.6568万円 管理費等 164,142円
    敷金 / 保証金 6ヶ月 / なし 礼金 1ヶ月
    敷引 坪単価 0.88万円
    保証金償却 権利金
    造作譲渡 その他一時金
    維持費等 保険等 要 借家人賠償保険
    使用部分面積 246.66m² 坪数 74.61坪
    築年月 1971年5月(築55年) 階建 / 階 地上9階地下1階建 / 5階
    駐車場 有 19,800円/月(空き8台)
    タワーパーキング(空確認)営業:月~金第1、3土 8:00~20:00 休日:日・祝・第2・4・5土12月30日~1月3日 車体制限:全長:5,050㎜以下全幅:1,850㎜以下全高:1,650㎜以下
    バイク置き場
    駐輪場 土地面積
    接道状況 用途地域 商業地域
    間取り 建物構造 RC
    建物名・部屋番号 福島トヨタビル 5階ワンフロア
    リフォーム履歴
    リノベーション履歴
    特記事項 居抜き、土曜日利用可、土日・祝日利用可、飲食店不可、24時間セキュリティー
    備考
    管理形態/管理員の勤務形態:-/-
    駅前店舗兼事務所 立体駐車有り
    警備有り・耐震診断合格済(H19年3月)
    ※防火管理者の資格取得と消防署への届け出が必要となります。
    ※内覧は8月上旬を予定しています。
    エネルギー消費性能
    断熱性能
    目安光熱費
    バス・トイレ 共用部分に男女別トイレあり
    キッチン
    設備・サービス 都市ガス、火災警報器(報知機)
    その他 エレベーター
    契約期間 2年 条件等
    引渡可能時期 2026年8月上旬予定 現況 使用中
    適格請求書発行
    更新料 なし 物件番号 6989966638
    情報公開日 2026年3月28日 次回更新予定日 2026年4月11日
    ケータイ用バーコード

    QRコード

    スマートフォンでこの物件を見る
    スマートフォンからもこの物件をご覧になれます。
    ※「-」と表示されている項目については、情報提供会社にご確認ください。

    クイックお問い合わせ

    ここから簡単にお問い合わせをすることができます。
    (SSLでの暗号化での送信を希望されるお客さまは こちら よりお問い合わせください)

    お問い合わせ内容(必須)
    物件のお問い合わせ理由(必須)
    お名前・ご担当者様名(必須) 姓  名 
    メールアドレス(必須)
    ※携帯電話のメールアドレスをご入力される方はこちらをご確認ください
    電話番号(必須)
    - -
    備考欄 希望条件、物件案内希望日、質問などがございましたらご記入ください。
    お問い合わせを行う前に「個人情報の取り扱いについて」を必ずお読みください。
    「個人情報の取り扱いについて」に同意いただいた場合は「上記にご同意の上 確認画面へ進む」のボタンをクリックしてください。

    個人情報の取り扱いについて

    皆さまが送付された個人情報はアットホーム(株)のサーバを経由し、お問い合わせ先の不動産会社にメールまたはFAXにて転送されるためアットホーム(株)にも保管されます。アットホーム(株)で保管された個人情報の取り扱いについては、【こちら】をご覧ください。
    また、本画面でご記入いただいた個人情報は、お問い合わせ先の不動産会社でも保管します。 お問い合わせ先の不動産会社が保管する個人情報の取り扱いについては、不動産会社に直接お問い合わせください。

    情報提供会社

    情報提供会社

    (株)マーケッティングセンター

    福島県知事免許(10)第10198号

    交通:
    JR東北本線/福島駅 徒歩5分
    福島県福島市置賜町5-3 
    TEL:
    024-522-0044
    FAX:
    024-524-2006
    所属団体:
    (公社)福島県宅地建物取引業協会会員
    東北地区不動産公正取引協議会加盟

    取引態様:仲介

    • 会社情報
    • 20002031
    スマートフォンで
    この不動産会社を見る
    QRコード
    • お問い合わせ
    • 提携サイト等より掲載されている物件情報につきましては、不動産会社詳細情報にリンクされていないものがあります。
    • 物件に関するお問合せは、物件詳細ページの「情報提供会社」に表示されている不動産会社へ直接お願いいたします。
    • 間取図は、現況を優先させていただきます。
    • 映像は物件の一部を撮影したものです。物件の契約にあたっての最終判断はご自身の判断に基づいて行ってください。
    • 仲介手数料について仲介手数料

    アットホームは物件情報の適正化に努めております。 内容に誤りがある場合にはこちらへご連絡ください。


    物件画像: