賃貸や不動産はアットホーム-賃貸マンション・賃貸物件・不動産なら アットホーム

徳島県徳島市仲之町4丁目(阿波富田駅)の貸店舗:物件詳細

  • 物件詳細
  • 情報の見方
  • 印刷用画面
交通
所在地
駅徒歩 賃料
管理費等
敷金/保証金
礼金
使用部分面積
坪数/坪単価
物件種目
築年月

JR牟岐線/阿波富田
[バス利用可] バス かちどき橋一丁目 停歩3分

徳島県徳島市仲之町4丁目

3分

35.497万円

なし

6ヶ月 / なし

1ヶ月

118.50m²

35.84坪/0.9903万円

貸店舗

1971年10月(築54年7ヶ月)

おすすめコメント

建物は、設計当時の耐震規格の倍以上の鉄筋を使用した鉄筋コンクリート造です。

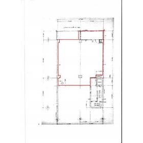
間取図

間取図

<
その他の画像
  • 役所
  • 役所
  • 銀行
  • 銀行
  • レジャー・観光
  • レジャー・観光
  • レジャー・観光
  • レジャー・観光
>
    • お問い合わせ
    交通

    JR牟岐線 阿波富田駅 徒歩3分
    [バス利用可] バス かちどき橋一丁目 停歩3分

    所在地 徳島県徳島市仲之町4丁目
    物件種目 貸店舗
    賃料 35.497万円 管理費等 なし
    敷金 / 保証金 6ヶ月 / なし 礼金 1ヶ月
    敷引 坪単価 0.9903万円
    保証金償却 権利金
    造作譲渡 その他一時金
    維持費等 保険等 要 2年 火災等総合
    使用部分面積 118.50m² 坪数 35.84坪
    築年月 1971年10月(築54年7ヶ月) 階建 / 階 6階建 / 1階
    駐車場 有 無料(空き3台) バイク置き場
    駐輪場 土地面積
    接道状況 北 20.0m 公道 接面11.0m 用途地域 商業地域
    間取り 建物構造 RC
    アピールポイント 徳島県庁・JR阿波富田駅が徒歩5分圏というだけでなく、物件周辺には官公庁、地方銀行の本店、中央市場、ホテル等が集まり、まさしく徳島の中心部と言える立地です。物件内は、業務用空調(エアコン)4台、壁掛タイプのエアコン1台、LED照明、広めのキッチンシンク(流し)、洋式トイレ、洗面台、自動ドアなどの設備が揃っており、事務所なら初期投資抑えめで開業できます。また、前店舗はエステティックサロンですので、店舗にも向いています。
    建物名・部屋番号  
    リフォーム履歴
    リノベーション履歴
    特記事項 土曜日利用可、土日・祝日利用可、飲食店不可、フリーレント、1フロア1テナント、駐車場2台分、駐車場3台分以上、高強度コンクリート、都道府県道沿いに面する
    備考
    管理形態/管理員の勤務形態:-/-
    フリーレント:2ヶ月(開業前の工事期間中に限る)
    坪単価9000円(税別)計算で月額賃料322700円(税別) / 飲食はカフェ程度なら可能(排水設備や排気設備が飲食店向けではないため)。 
    エネルギー消費性能
    断熱性能
    目安光熱費
    バス・トイレ トイレ
    キッチン
    設備・サービス 看板取付スペースあり、空調機あり、換気口あり
    エアコン2台以上、ビルトインエアコン、エアコン、暖房、冷房、インターネット対応
    その他
    契約期間 2年 条件等
    引渡可能時期 相談 現況
    適格請求書発行
    更新料 新賃料 1ヶ月 物件番号 6989947355
    情報公開日 2026年3月18日 次回更新予定日 2026年4月15日
    ケータイ用バーコード

    QRコード

    スマートフォンでこの物件を見る
    スマートフォンからもこの物件をご覧になれます。
    ※「-」と表示されている項目については、情報提供会社にご確認ください。

    この物件の周辺情報

    周辺施設 徳島県庁
    距離 457m
    周辺施設 徳島市役所
    距離 789m
    周辺施設 徳島大正銀行 本店営業部
    距離 617m
    周辺施設 徳島信用金庫本店営業部
    距離 221m
    周辺施設 中洲総合水産市場
    距離 474m
    周辺施設 新町川水際公園
    距離 794m
    周辺施設 ホテルたいよう農園 徳島県庁前
    距離 620m
    周辺施設 徳島グランヴィリオホテル
    距離 647m

    クイックお問い合わせ

    ここから簡単にお問い合わせをすることができます。
    (SSLでの暗号化での送信を希望されるお客さまは こちら よりお問い合わせください)

    お問い合わせ内容(必須)
    物件のお問い合わせ理由(必須)
    お名前・ご担当者様名(必須) 姓  名 
    メールアドレス(必須)
    ※携帯電話のメールアドレスをご入力される方はこちらをご確認ください
    電話番号(必須)
    - -
    備考欄 希望条件、物件案内希望日、質問などがございましたらご記入ください。
    お問い合わせを行う前に「個人情報の取り扱いについて」を必ずお読みください。
    「個人情報の取り扱いについて」に同意いただいた場合は「上記にご同意の上 確認画面へ進む」のボタンをクリックしてください。

    個人情報の取り扱いについて

    皆さまが送付された個人情報はアットホーム(株)のサーバを経由し、お問い合わせ先の不動産会社にメールまたはFAXにて転送されるためアットホーム(株)にも保管されます。アットホーム(株)で保管された個人情報の取り扱いについては、【こちら】をご覧ください。
    また、本画面でご記入いただいた個人情報は、お問い合わせ先の不動産会社でも保管します。 お問い合わせ先の不動産会社が保管する個人情報の取り扱いについては、不動産会社に直接お問い合わせください。

    情報提供会社

    情報提供会社

    えきまえ土地(有)

    徳島県知事免許(13)第654号

    交通:
    JR徳島線/徳島駅 徒歩3分 【バス】 バスターミナル 停歩2分
    徳島県徳島市一番町3丁目28番地 
    TEL:
    088-623-2300
    FAX:
    088-625-0077
    所属団体:
    (公社)徳島県宅地建物取引業協会会員
    四国地区不動産公正取引協議会加盟

    取引態様:仲介

    • 会社情報
    • 50101936
    スマートフォンで
    この不動産会社を見る
    QRコード
    • お問い合わせ
    • 提携サイト等より掲載されている物件情報につきましては、不動産会社詳細情報にリンクされていないものがあります。
    • 物件に関するお問合せは、物件詳細ページの「情報提供会社」に表示されている不動産会社へ直接お願いいたします。
    • 間取図は、現況を優先させていただきます。
    • 映像は物件の一部を撮影したものです。物件の契約にあたっての最終判断はご自身の判断に基づいて行ってください。
    • 仲介手数料について仲介手数料

    アットホームは物件情報の適正化に努めております。 内容に誤りがある場合にはこちらへご連絡ください。


    物件画像: