賃貸や不動産はアットホーム-賃貸マンション・賃貸物件・不動産なら アットホーム

東京都板橋区赤塚2丁目(下赤塚駅)の貸店舗:物件詳細

  • 物件詳細
  • 情報の見方
  • 印刷用画面
交通
所在地
駅徒歩 賃料
管理費等
敷金/保証金
礼金
使用部分面積
坪数/坪単価
物件種目
築年月

東武東上線/下赤塚

東京都板橋区赤塚2丁目

6分

29.7万円

4ヶ月 / なし

1ヶ月

50.95m²

15.41坪/1.9271万円

貸店舗

2007年4月(築19年1ヶ月)

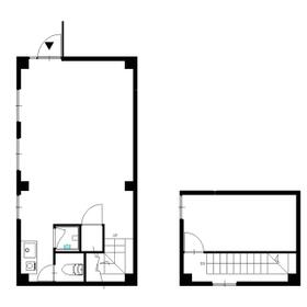
間取図

間取図

その他の画像
    • お問い合わせ
    交通

    東武東上線 下赤塚駅 徒歩6分

    その他の交通

    東京メトロ副都心線 地下鉄赤塚駅 徒歩6分

    東武東上線 成増駅 徒歩21分

    所在地 東京都板橋区赤塚2丁目
    物件種目 貸店舗
    賃料 29.7万円 管理費等
    敷金 / 保証金 4ヶ月 / なし 礼金 1ヶ月
    敷引 1ヶ月 坪単価 1.9271万円
    保証金償却 権利金
    造作譲渡 その他一時金
    維持費等 保険等 要 3年 店舗総合
    使用部分面積 50.95m² 坪数 15.41坪
    築年月 2007年4月(築19年1ヶ月) 階建 / 階 3階建 / 1階
    駐車場 バイク置き場
    駐輪場 土地面積
    接道状況 用途地域
    間取り ワンルーム 建物構造 鉄骨造
    建物名・部屋番号  
    リフォーム履歴
    リノベーション履歴
    特記事項 飲食店不可、角部屋
    備考
    賃貸保証等:加入要(㈱イーレント)
    管理形態/管理員の勤務形態:-/-
    エネルギー消費性能
    断熱性能
    目安光熱費
    バス・トイレ トイレ
    キッチン
    設備・サービス エアコン2台以上、収納スペース
    その他
    契約期間 3年 条件等
    引渡可能時期 即時 現況
    更新料 新賃料 1ヶ月 物件番号 6989901662
    情報公開日 2026年3月28日 次回更新予定日 2026年4月11日
    ケータイ用バーコード

    QRコード

    スマートフォンでこの物件を見る
    スマートフォンからもこの物件をご覧になれます。
    ※「-」と表示されている項目については、情報提供会社にご確認ください。

    この物件の周辺情報

    周辺施設 東武ストア下赤塚店
    距離 77m
    周辺施設 セブンイレブン板橋赤塚一番通り店
    距離 78m
    周辺施設 ドトールコーヒーショップ下赤塚店
    距離 176m
    周辺施設 ウエルシア板橋赤塚店
    距離 222m
    周辺施設 赤塚幼稚園
    距離 170m
    周辺施設 板橋赤塚新町郵便局
    距離 368m
    周辺施設 三菱UFJ銀行下赤塚支店
    距離 373m
    周辺施設 板橋区立赤塚図書館
    距離 935m

    クイックお問い合わせ

    ここから簡単にお問い合わせをすることができます。
    (SSLでの暗号化での送信を希望されるお客さまは こちら よりお問い合わせください)

    お問い合わせ内容(必須)
    物件のお問い合わせ理由(必須)
    お名前・ご担当者様名(必須) 姓  名 
    メールアドレス(必須)
    ※携帯電話のメールアドレスをご入力される方はこちらをご確認ください
    電話番号(必須)
    - -
    備考欄 希望条件、物件案内希望日、質問などがございましたらご記入ください。
    お問い合わせを行う前に「個人情報の取り扱いについて」を必ずお読みください。
    「個人情報の取り扱いについて」に同意いただいた場合は「上記にご同意の上 確認画面へ進む」のボタンをクリックしてください。

    個人情報の取り扱いについて

    皆さまが送付された個人情報はアットホーム(株)のサーバを経由し、お問い合わせ先の不動産会社にメールまたはFAXにて転送されるためアットホーム(株)にも保管されます。アットホーム(株)で保管された個人情報の取り扱いについては、【こちら】をご覧ください。
    また、本画面でご記入いただいた個人情報は、お問い合わせ先の不動産会社でも保管します。 お問い合わせ先の不動産会社が保管する個人情報の取り扱いについては、不動産会社に直接お問い合わせください。

    情報提供会社

    情報提供会社

    (株)クラケン

    東京都知事免許(15)第20412号

    交通:
    東武東上線/下赤塚駅 徒歩3分
    東京都板橋区赤塚1丁目9-11 
    TEL:
    03-3977-0111
    所属団体:
    (公社)東京都宅地建物取引業協会会員
    (公社)首都圏不動産公正取引協議会加盟

    取引態様:仲介

    • 会社情報
    • 00276535
    スマートフォンで
    この不動産会社を見る
    QRコード
    • お問い合わせ
    • 提携サイト等より掲載されている物件情報につきましては、不動産会社詳細情報にリンクされていないものがあります。
    • 物件に関するお問合せは、物件詳細ページの「情報提供会社」に表示されている不動産会社へ直接お願いいたします。
    • 間取図は、現況を優先させていただきます。
    • 映像は物件の一部を撮影したものです。物件の契約にあたっての最終判断はご自身の判断に基づいて行ってください。
    • 仲介手数料について仲介手数料

    アットホームは物件情報の適正化に努めております。 内容に誤りがある場合にはこちらへご連絡ください。


    物件画像: