賃貸や不動産はアットホーム-賃貸マンション・賃貸物件・不動産なら アットホーム

愛知県名古屋市西区名駅2丁目(名古屋駅)の貸店舗:物件詳細

  • 物件詳細
  • 情報の見方
  • 印刷用画面
交通
所在地
駅徒歩 賃料
管理費等
敷金/保証金
礼金
使用部分面積
坪数/坪単価
物件種目
築年月

名古屋市東山線/名古屋 新着

愛知県名古屋市西区名駅2丁目

5分

71.5万円

なし / 5ヶ月

なし

237.26m²

71.77坪/0.9963万円

貸店舗

1986年1月(築40年2ヶ月)

おすすめコメント

「名古屋」駅から徒歩圏内の好立地、重飲食可能な物件です!

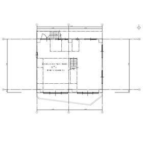
間取図

間取図

2階

その他の画像
  • 間取図
  • 間取図
    • お問い合わせ
    交通

    名古屋市東山線 名古屋駅 徒歩5分

    所在地 愛知県名古屋市西区名駅2丁目
    物件種目 貸店舗
    賃料 71.5万円 管理費等
    敷金 / 保証金 なし / 5ヶ月 礼金 なし
    敷引 坪単価 0.9963万円
    保証金償却 権利金
    造作譲渡 その他一時金
    維持費等 保険等
    使用部分面積 237.26m² 坪数 71.77坪
    築年月 1986年1月(築40年2ヶ月) 階建 / 階 3階建 / 2階~3階部分
    駐車場 バイク置き場
    駐輪場 土地面積
    接道状況 南 6.0m 公道 接面22.9m ・ 東 6.0m 公道 接面9.4m ・ 二方道路 用途地域 商業地域
    間取り 建物構造 RC
    建物名・部屋番号 名駅2丁目店舗ビル 2-3階
    リフォーム履歴
    リノベーション履歴
    特記事項 飲食店可、最上階
    備考
    管理形態/管理員の勤務形態:-/-
    主要採光面:南東向き
    ・償却 スライド償却:5年未満100%、10年未満50%、10年以上30%
    ・保証会社加入、火災保険加入
    ・町内会費別途
    ・構造:高床式2階建
    ・広さ詳細 2階:22.61坪、3階:22.61坪
    ・屋上階あり:26.55坪
    エネルギー消費性能
    断熱性能
    目安光熱費
    バス・トイレ
    キッチン
    設備・サービス
    その他
    契約期間 15年 条件等 定期借家定期借家
    引渡可能時期 相談 現況 使用中
    更新料 物件番号 6989583438
    情報公開日 2026年2月20日 次回更新予定日 2026年3月6日
    ケータイ用バーコード

    QRコード

    スマートフォンでこの物件を見る
    スマートフォンからもこの物件をご覧になれます。
    ※「-」と表示されている項目については、情報提供会社にご確認ください。

    クイックお問い合わせ

    ここから簡単にお問い合わせをすることができます。
    (SSLでの暗号化での送信を希望されるお客さまは こちら よりお問い合わせください)

    お問い合わせ内容(必須)
    物件のお問い合わせ理由(必須)
    お名前・ご担当者様名(必須) 姓  名 
    メールアドレス(必須)
    ※携帯電話のメールアドレスをご入力される方はこちらをご確認ください
    電話番号(必須)
    - -
    備考欄 希望条件、物件案内希望日、質問などがございましたらご記入ください。
    お問い合わせを行う前に「個人情報の取り扱いについて」を必ずお読みください。
    「個人情報の取り扱いについて」に同意いただいた場合は「上記にご同意の上 確認画面へ進む」のボタンをクリックしてください。

    個人情報の取り扱いについて

    皆さまが送付された個人情報はアットホーム(株)のサーバを経由し、お問い合わせ先の不動産会社にメールまたはFAXにて転送されるためアットホーム(株)にも保管されます。アットホーム(株)で保管された個人情報の取り扱いについては、【こちら】をご覧ください。
    また、本画面でご記入いただいた個人情報は、お問い合わせ先の不動産会社でも保管します。 お問い合わせ先の不動産会社が保管する個人情報の取り扱いについては、不動産会社に直接お問い合わせください。

    情報提供会社

    情報提供会社

    (株)日建コーポレーション

    愛知県知事免許(7)第17196号

    交通:
    名古屋市東山線/伏見駅 徒歩8分
    愛知県名古屋市中区栄1丁目17番16号 藤和シティコープ栄1F
    TEL:
    052-228-6770
    FAX:
    052-228-6771
    所属団体:
    (公社)愛知県宅地建物取引業協会会員
    東海不動産公正取引協議会加盟

    取引態様:仲介

    • 会社情報
    • 40004505
    スマートフォンで
    この不動産会社を見る
    QRコード
    • お問い合わせ
    • 提携サイト等より掲載されている物件情報につきましては、不動産会社詳細情報にリンクされていないものがあります。
    • 物件に関するお問合せは、物件詳細ページの「情報提供会社」に表示されている不動産会社へ直接お願いいたします。
    • 間取図は、現況を優先させていただきます。
    • 映像は物件の一部を撮影したものです。物件の契約にあたっての最終判断はご自身の判断に基づいて行ってください。
    • 仲介手数料について仲介手数料

    アットホームは物件情報の適正化に努めております。 内容に誤りがある場合にはこちらへご連絡ください。


    物件画像: