賃貸や不動産はアットホーム-賃貸マンション・賃貸物件・不動産なら アットホーム

東京都渋谷区神南1丁目(渋谷駅)の貸店舗:物件詳細

  • 物件詳細
  • 情報の見方
  • 印刷用画面
交通
所在地
駅徒歩 賃料
管理費等
敷金/保証金
礼金
使用部分面積
坪数/坪単価
物件種目
築年月

東京メトロ半蔵門線/渋谷 新着

東京都渋谷区神南1丁目

10分

76.9万円

104,874円

4ヶ月 / なし

1ヶ月

105.06m²

31.78坪/2.4198万円

貸店舗・事務所

1992年6月(築33年9ヶ月)

おすすめコメント

原状回復工事完了!男女トイレ別で、代々木公園の緑が見えて明るい部屋。オフィス内装も弊社で調整できます

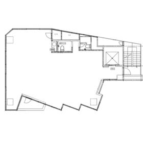
間取図

間取図

その他の画像
    • お問い合わせ
    交通

    東京メトロ半蔵門線 渋谷駅 徒歩10分

    その他の交通

    JR山手線 渋谷駅 徒歩12分

    東京メトロ銀座線 渋谷駅 徒歩11分

    所在地 東京都渋谷区神南1丁目
    物件種目 貸店舗・事務所
    賃料 76.9万円 管理費等 104,874円
    敷金 / 保証金 4ヶ月 / なし 礼金 1ヶ月
    敷引 1ヶ月 坪単価 2.4198万円
    保証金償却 権利金
    造作譲渡 造作譲渡無償 その他一時金
    維持費等 保険等
    使用部分面積 105.06m² 坪数 31.78坪
    築年月 1992年6月(築33年9ヶ月) 階建 / 階 地上7階地下1階建 / 4階
    駐車場 バイク置き場
    駐輪場 土地面積
    接道状況 用途地域
    間取り 建物構造 SRC
    アピールポイント 代々木公園を眺める出世ビル
    建物名・部屋番号 ルート神南 4
    リフォーム履歴
    リノベーション履歴
    特記事項 居抜き、24時間利用可、土曜日利用可、土日・祝日利用可、飲食店不可、1フロア1テナント、角部屋、バリアフリー
    備考
    賃貸保証等:加入要(保証会社利用 月額賃料の100%)
    管理形態/管理員の勤務形態:-/-
    男女トイレ別改修工事済み
    エネルギー消費性能
    断熱性能
    目安光熱費
    バス・トイレ バス・トイレ別、トイレ2ヶ所、専有部分に男女別トイレあり
    キッチン
    設備・サービス 個別空調、エアコン2台以上、ビルトインエアコン、暖房、冷房、インターネット対応、光ファイバー
    その他 人荷用エレベーター、エレベーター
    契約期間 2年 条件等
    引渡可能時期 即時 現況
    仲介手数料 1ヶ月    
    更新料 新賃料 1ヶ月 物件番号 6989548772
    情報公開日 2026年2月18日 次回更新予定日 2026年3月4日
    ケータイ用バーコード

    QRコード

    スマートフォンでこの物件を見る
    スマートフォンからもこの物件をご覧になれます。
    ※「-」と表示されている項目については、情報提供会社にご確認ください。

    クイックお問い合わせ

    ここから簡単にお問い合わせをすることができます。
    (SSLでの暗号化での送信を希望されるお客さまは こちら よりお問い合わせください)

    お問い合わせ内容(必須)
    物件のお問い合わせ理由(必須)
    お名前・ご担当者様名(必須) 姓  名 
    メールアドレス(必須)
    ※携帯電話のメールアドレスをご入力される方はこちらをご確認ください
    電話番号(必須)
    - -
    備考欄 希望条件、物件案内希望日、質問などがございましたらご記入ください。
    お問い合わせを行う前に「個人情報の取り扱いについて」を必ずお読みください。
    「個人情報の取り扱いについて」に同意いただいた場合は「上記にご同意の上 確認画面へ進む」のボタンをクリックしてください。

    個人情報の取り扱いについて

    皆さまが送付された個人情報はアットホーム(株)のサーバを経由し、お問い合わせ先の不動産会社にメールまたはFAXにて転送されるためアットホーム(株)にも保管されます。アットホーム(株)で保管された個人情報の取り扱いについては、【こちら】をご覧ください。
    また、本画面でご記入いただいた個人情報は、お問い合わせ先の不動産会社でも保管します。 お問い合わせ先の不動産会社が保管する個人情報の取り扱いについては、不動産会社に直接お問い合わせください。

    情報提供会社

    情報提供会社

    (株)しんか

    東京都知事免許(2)第99771号

    交通:
    JR山手線/渋谷駅 徒歩5分
    東京都渋谷区神宮前6丁目19-15 高野第1ビル5F
    TEL:
    03-4510-6460
    FAX:
    03-4510-6461
    所属団体:
    (公社)全日本不動産協会会員
    (公社)首都圏不動産公正取引協議会加盟

    取引態様:仲介

    • 会社情報
    • 00261585
    スマートフォンで
    この不動産会社を見る
    QRコード
    • お問い合わせ
    • 提携サイト等より掲載されている物件情報につきましては、不動産会社詳細情報にリンクされていないものがあります。
    • 物件に関するお問合せは、物件詳細ページの「情報提供会社」に表示されている不動産会社へ直接お願いいたします。
    • 間取図は、現況を優先させていただきます。
    • 映像は物件の一部を撮影したものです。物件の契約にあたっての最終判断はご自身の判断に基づいて行ってください。
    • 仲介手数料について仲介手数料

    アットホームは物件情報の適正化に努めております。 内容に誤りがある場合にはこちらへご連絡ください。


    物件画像: