賃貸や不動産はアットホーム-賃貸マンション・賃貸物件・不動産なら アットホーム

東京都文京区本駒込4丁目(本駒込駅)の貸店舗:物件詳細

  • 物件詳細
  • 情報の見方
  • 印刷用画面
交通
所在地
駅徒歩 賃料
管理費等
敷金/保証金
礼金
使用部分面積
坪数/坪単価
物件種目
築年月

東京メトロ南北線/本駒込 新着

東京都文京区本駒込4丁目

11分

44万円

6ヶ月 / なし

2.2ヶ月

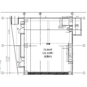
73.84m²

22.33坪/1.9699万円

貸店舗・事務所

1976年5月(築49年10ヶ月)

おすすめコメント

本駒込駅、田端駅と2路線2駅利用可能で各方面へアクセス良好な路面店舗!軽飲食も相談可能です。前面ガラス張りで、看板スペース有。ぜひ一度ご覧ください!お気軽に担当までお問い合わせください。

間取図

間取図

2024年3月 リファイニング工事完了済

  • お問い合わせ
交通

東京メトロ南北線 本駒込駅 徒歩11分

その他の交通

JR山手線 田端駅 徒歩11分

東京メトロ千代田線 千駄木駅 徒歩13分

所在地 東京都文京区本駒込4丁目
物件種目 貸店舗・事務所
賃料 44万円 管理費等
敷金 / 保証金 6ヶ月 / なし 礼金 2.2ヶ月
敷引 22% 坪単価 1.9699万円
保証金償却 権利金
造作譲渡 その他一時金
維持費等 保険等 要 火災
使用部分面積 73.84m² 坪数 22.33坪
築年月 1976年5月(築49年10ヶ月) 階建 / 階 地上7階地下1階建 / 1階
駐車場 バイク置き場
駐輪場 土地面積
接道状況 用途地域 商業地域
間取り 建物構造 RC
建物名・部屋番号 インスタイルレジデンス本駒込 1階
リフォーム履歴
リノベーション履歴
特記事項 スケルトン、土日・祝日利用可、飲食店可、1フロア1テナント、耐震構造(新耐震基準)、天井高2.5M以上、耐震基準適合証明書あり、都道府県道沿いに面する
備考
賃貸保証等:加入要(詳細は担当までお問い合わせください)
管理形態/管理員の勤務形態:-/-
*2024年3月利府亜イニング工事完了済
*保証会社要加入
*火災保険要加入
*軽飲食相談可 (重飲食不可)
*電気(電灯・動力有り)
*給排水、ガス有り
*看板設置スペース有り
*前面ガラス張り
*天井高3300mm(最大箇所)※除梁下
◆ご内覧は事前予約調整後にお願い致します。

物件の詳細は、担当までお問い合わせください。
岩原(070-6989-4129)
稲垣(090-7812-9952)
エネルギー消費性能
断熱性能
目安光熱費
バス・トイレ
キッチン
設備・サービス 看板取付スペースあり、天井高3.3m
都市ガス、動力あり
その他
契約期間 3年 条件等
引渡可能時期 2026年5月中旬予定 現況 居住中
更新料 新賃料 1.1ヶ月 物件番号 6989534824
情報公開日 2026年2月17日 次回更新予定日 2026年3月3日
ケータイ用バーコード

QRコード

スマートフォンでこの物件を見る
スマートフォンからもこの物件をご覧になれます。
※「-」と表示されている項目については、情報提供会社にご確認ください。

クイックお問い合わせ

ここから簡単にお問い合わせをすることができます。
(SSLでの暗号化での送信を希望されるお客さまは こちら よりお問い合わせください)

お問い合わせ内容(必須)
物件のお問い合わせ理由(必須)
お名前・ご担当者様名(必須) 姓  名 
メールアドレス(必須)
※携帯電話のメールアドレスをご入力される方はこちらをご確認ください
電話番号(必須)
- -
備考欄 希望条件、物件案内希望日、質問などがございましたらご記入ください。
お問い合わせを行う前に「個人情報の取り扱いについて」を必ずお読みください。
「個人情報の取り扱いについて」に同意いただいた場合は「上記にご同意の上 確認画面へ進む」のボタンをクリックしてください。

個人情報の取り扱いについて

皆さまが送付された個人情報はアットホーム(株)のサーバを経由し、お問い合わせ先の不動産会社にメールまたはFAXにて転送されるためアットホーム(株)にも保管されます。アットホーム(株)で保管された個人情報の取り扱いについては、【こちら】をご覧ください。
また、本画面でご記入いただいた個人情報は、お問い合わせ先の不動産会社でも保管します。 お問い合わせ先の不動産会社が保管する個人情報の取り扱いについては、不動産会社に直接お問い合わせください。

情報提供会社

情報提供会社

ACRE(株) 首都圏中央グループ

国土交通大臣免許(3)第8239号

交通:
東京メトロ千代田線/大手町駅 徒歩1分
東京都千代田区丸の内1丁目8番1号 丸の内トラストタワーN館 19階
TEL:
03-5860-3660
FAX:
03-5860-3661
所属団体:
(公社)東京都宅地建物取引業協会会員
(公社)首都圏不動産公正取引協議会加盟

取引態様:仲介

  • 会社情報
  • 00162272
スマートフォンで
この不動産会社を見る
QRコード
  • お問い合わせ
  • 提携サイト等より掲載されている物件情報につきましては、不動産会社詳細情報にリンクされていないものがあります。
  • 物件に関するお問合せは、物件詳細ページの「情報提供会社」に表示されている不動産会社へ直接お願いいたします。
  • 間取図は、現況を優先させていただきます。
  • 映像は物件の一部を撮影したものです。物件の契約にあたっての最終判断はご自身の判断に基づいて行ってください。
  • 仲介手数料について仲介手数料

アットホームは物件情報の適正化に努めております。 内容に誤りがある場合にはこちらへご連絡ください。


物件画像: