賃貸や不動産はアットホーム-賃貸マンション・賃貸物件・不動産なら アットホーム

兵庫県神戸市東灘区田中町2丁目(摂津本山駅)の貸店舗:物件詳細

  • 物件詳細
  • 情報の見方
  • 印刷用画面
交通
所在地
駅徒歩 賃料
管理費等
敷金/保証金
礼金
使用部分面積
坪数/坪単価
物件種目
築年月

JR東海道本線/摂津本山

兵庫県神戸市東灘区田中町2丁目

10分

12.234万円

9,658円

72万円 / なし

なし

59.94m²

18.13坪/0.6748万円

貸店舗

1988年5月(築38年)

おすすめコメント  スタッフ: 樽谷徹

摂津本山駅や岡本駅から徒歩で行けるビルの4階、事務所・SOHO・ネイル・おうちエステ・小規模サロンなどにも可。リフォーム済で美麗です!

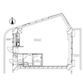
間取図

間取図

外観

外観

その他の画像
  • 案内図
    • お問い合わせ
    交通

    JR東海道本線 摂津本山駅 徒歩10分

    その他の交通

    阪急神戸線 岡本駅 徒歩15分

    阪神本線 青木駅 徒歩16分

    所在地 兵庫県神戸市東灘区田中町2丁目
    物件種目 貸店舗
    賃料 12.234万円 管理費等 9,658円
    敷金 / 保証金 72万円 / なし 礼金 なし
    敷引 23.76万円 坪単価 0.6748万円
    保証金償却 権利金
    造作譲渡 その他一時金
    維持費等 保険等 要 火災
    使用部分面積 59.94m² 坪数 18.13坪
    築年月 1988年5月(築38年) 階建 / 階 10階建 / 4階
    駐車場 空無 バイク置き場
    駐輪場 土地面積
    接道状況 用途地域
    間取り 建物構造 SRC
    アピールポイント 東灘区で事務所やテナントをお探しの方ご連絡お待ちしております!
    テナント専門の担当者がご案内いたします。
    テナントホーム担当:タルタニ
    TEL:078-335-7835
    建物名・部屋番号  
    リフォーム履歴
    リノベーション履歴
    特記事項 24時間利用可
    備考
    賃貸保証等:加入要(保証会社契約要)
    管理形態/管理員の勤務形態:-/-
    エネルギー消費性能
    断熱性能
    目安光熱費
    バス・トイレ シャワー、トイレ
    キッチン
    設備・サービス 収納スペース、給湯、都市ガス、エアコン、暖房、冷房
    その他 エレベーター
    契約期間 5年 条件等
    引渡可能時期 即時 現況
    更新料 物件番号 6989528307
    情報公開日 2026年2月16日 次回更新予定日 2026年4月20日
    ケータイ用バーコード

    QRコード

    スマートフォンでこの物件を見る
    スマートフォンからもこの物件をご覧になれます。
    ※「-」と表示されている項目については、情報提供会社にご確認ください。

    クイックお問い合わせ

    ここから簡単にお問い合わせをすることができます。
    (SSLでの暗号化での送信を希望されるお客さまは こちら よりお問い合わせください)

    お問い合わせ内容(必須)
    物件のお問い合わせ理由(必須)
    お名前・ご担当者様名(必須) 姓  名 
    メールアドレス(必須)
    ※携帯電話のメールアドレスをご入力される方はこちらをご確認ください
    電話番号(必須)
    - -
    備考欄 希望条件、物件案内希望日、質問などがございましたらご記入ください。
    お問い合わせを行う前に「個人情報の取り扱いについて」を必ずお読みください。
    「個人情報の取り扱いについて」に同意いただいた場合は「上記にご同意の上 確認画面へ進む」のボタンをクリックしてください。

    個人情報の取り扱いについて

    皆さまが送付された個人情報はアットホーム(株)のサーバを経由し、お問い合わせ先の不動産会社にメールまたはFAXにて転送されるためアットホーム(株)にも保管されます。アットホーム(株)で保管された個人情報の取り扱いについては、【こちら】をご覧ください。
    また、本画面でご記入いただいた個人情報は、お問い合わせ先の不動産会社でも保管します。 お問い合わせ先の不動産会社が保管する個人情報の取り扱いについては、不動産会社に直接お問い合わせください。

    情報提供会社

    情報提供会社

    (株)テナントホーム

    兵庫県知事免許(2)第12034号

    交通:
    JR東海道本線/三ノ宮駅 徒歩3分
    兵庫県神戸市中央区北長狭通1丁目3-11 ノアールビル1F
    TEL:
    078-335-7835
    FAX:
    078-335-7834
    所属団体:
    (一社)兵庫県宅地建物取引業協会会員
    (公社)近畿地区不動産公正取引協議会加盟

    取引態様:仲介

    • 会社情報
    • 50103077
    スマートフォンで
    この不動産会社を見る
    QRコード
    • お問い合わせ
    • 提携サイト等より掲載されている物件情報につきましては、不動産会社詳細情報にリンクされていないものがあります。
    • 物件に関するお問合せは、物件詳細ページの「情報提供会社」に表示されている不動産会社へ直接お願いいたします。
    • 間取図は、現況を優先させていただきます。
    • 映像は物件の一部を撮影したものです。物件の契約にあたっての最終判断はご自身の判断に基づいて行ってください。
    • 仲介手数料について仲介手数料

    アットホームは物件情報の適正化に努めております。 内容に誤りがある場合にはこちらへご連絡ください。


    物件画像: