賃貸や不動産はアットホーム-賃貸マンション・賃貸物件・不動産なら アットホーム

愛知県名古屋市名東区明が丘(藤が丘駅)の貸店舗:物件詳細

  • 物件詳細
  • 情報の見方
  • 印刷用画面
交通
所在地
駅徒歩 賃料
管理費等
敷金/保証金
礼金
使用部分面積
坪数/坪単価
物件種目
築年月

名古屋市東山線/藤が丘 新着

愛知県名古屋市名東区明が丘

2分

22.4796万円

6ヶ月 / なし

なし

51.99m²

15.72坪/1.4294万円

貸店舗・事務所

1986年10月(築39年5ヶ月)

おすすめコメント  スタッフ: テナント専門不動産業者

◇店舗・事務所利用に◇藤が丘駅徒歩2分◇

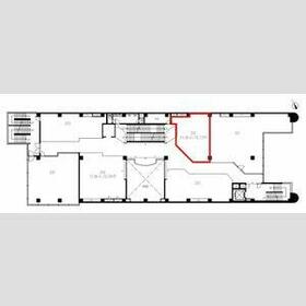
間取図

間取図

その他の画像
    • お問い合わせ
    交通

    名古屋市東山線 藤が丘駅 徒歩2分

    所在地 愛知県名古屋市名東区明が丘
    物件種目 貸店舗・事務所
    賃料 22.4796万円 管理費等
    敷金 / 保証金 6ヶ月 / なし 礼金 なし
    敷引 坪単価 1.4294万円
    保証金償却 権利金
    造作譲渡 その他一時金
    維持費等 保険等 要 2年 借家人賠償責任付火災保険
    使用部分面積 51.99m² 坪数 15.72坪
    築年月 1986年10月(築39年5ヶ月) 階建 / 階 地上6階地下1階建 / 2階
    駐車場 有 16,500円/月
    敷地内駐車場/16,500円(税込)機械式駐車場<駐車場サイズ>全長 5050mm 全幅 1850mm ドアミラー幅 1950mm 全高 1550mm 重量 1600kg
    バイク置き場
    駐輪場 土地面積
    接道状況 用途地域 商業地域
    間取り 建物構造 SRC
    アピールポイント 【融資・物件・準備までワンストップ対応!】
    新規出店や移転をご検討の方へ!
     
    当社は、事務所・飲食店・美容室・物販店・福祉施設はもちろん、倉庫や工場など、幅広い事業用不動産の仲介実績があります。
     
    また、金融機関出身のファイナンシャルプランナー(FP)が複数名在籍し、金融機関時代は事業性融資をメインに担当。
    資金計画や融資のご相談、金融機関との対応もすべてお任せください!
     
    物件探しだけでなく、BGM・インターネット・電気・ガスなどのライフライン手配、店舗に強いリフォーム業者のご紹介など、出店や事業開始に必要な準備をワンストップでサポートします。
     
    「何から始めればいいかわからない」そんな方も安心してお気軽にご相談ください。
    建物名・部屋番号 ami ami 202号室
    リフォーム履歴
    リノベーション履歴
    特記事項 居抜き、土曜日利用可、土日・祝日利用可、IT重説対応物件
    備考
    賃貸保証等:加入要(保証会社利用必須 USEN TRUST初回契約時:70%、更新時:10%、月額:0、過去1年間の賃料滞納回数が1回以下なら年間保証委託料(10%)が無料)
    管理形態/管理員の勤務形態:-/-
    IT重説対応物件
    敷地内駐車場/16,500円(税込)
    機械式駐車場<駐車場サイズ>全長 5050mm 全幅 1850mm ドアミラー幅 1950mm 全高 1550mm 重量 1600kg


    ○契約期間:2年間

    エネルギー消費性能
    断熱性能
    目安光熱費
    バス・トイレ トイレ
    キッチン
    設備・サービス
    その他 エレベーター
    契約期間 2年 条件等
    引渡可能時期 2026年4月上旬予定 現況
    仲介手数料 1ヶ月    
    更新料 物件番号 6989502688
    情報公開日 2026年2月14日 次回更新予定日 2026年3月4日
    ケータイ用バーコード

    QRコード

    スマートフォンでこの物件を見る
    スマートフォンからもこの物件をご覧になれます。
    ※「-」と表示されている項目については、情報提供会社にご確認ください。

    クイックお問い合わせ

    ここから簡単にお問い合わせをすることができます。
    (SSLでの暗号化での送信を希望されるお客さまは こちら よりお問い合わせください)

    お問い合わせ内容(必須)
    物件のお問い合わせ理由(必須)
    お名前・ご担当者様名(必須) 姓  名 
    メールアドレス(必須)
    ※携帯電話のメールアドレスをご入力される方はこちらをご確認ください
    電話番号(必須)
    - -
    備考欄 希望条件、物件案内希望日、質問などがございましたらご記入ください。
    お問い合わせを行う前に「個人情報の取り扱いについて」を必ずお読みください。
    「個人情報の取り扱いについて」に同意いただいた場合は「上記にご同意の上 確認画面へ進む」のボタンをクリックしてください。

    個人情報の取り扱いについて

    皆さまが送付された個人情報はアットホーム(株)のサーバを経由し、お問い合わせ先の不動産会社にメールまたはFAXにて転送されるためアットホーム(株)にも保管されます。アットホーム(株)で保管された個人情報の取り扱いについては、【こちら】をご覧ください。
    また、本画面でご記入いただいた個人情報は、お問い合わせ先の不動産会社でも保管します。 お問い合わせ先の不動産会社が保管する個人情報の取り扱いについては、不動産会社に直接お問い合わせください。

    情報提供会社

    情報提供会社

    (株)センスコンサルタント

    愛知県知事免許(1)第26022号

    交通:
    名古屋市東山線/栄駅 徒歩8分
    愛知県名古屋市中区栄3丁目12-3 
    TEL:
    052-253-9888
    FAX:
    052-253-9878
    所属団体:
    (公社)愛知県宅地建物取引業協会会員
    東海不動産公正取引協議会加盟

    取引態様:仲介

    • 会社情報
    • 40412155
    スマートフォンで
    この不動産会社を見る
    QRコード
    • お問い合わせ
    • 提携サイト等より掲載されている物件情報につきましては、不動産会社詳細情報にリンクされていないものがあります。
    • 物件に関するお問合せは、物件詳細ページの「情報提供会社」に表示されている不動産会社へ直接お願いいたします。
    • 間取図は、現況を優先させていただきます。
    • 映像は物件の一部を撮影したものです。物件の契約にあたっての最終判断はご自身の判断に基づいて行ってください。
    • 仲介手数料について仲介手数料

    アットホームは物件情報の適正化に努めております。 内容に誤りがある場合にはこちらへご連絡ください。


    物件画像: