賃貸や不動産はアットホーム-賃貸マンション・賃貸物件・不動産なら アットホーム

大阪府大阪市北区中津1丁目(中津駅)の貸店舗:物件詳細

  • 物件詳細
  • 情報の見方
  • 印刷用画面
交通
所在地
駅徒歩 賃料
管理費等
敷金/保証金
礼金
使用部分面積
坪数/坪単価
物件種目
築年月

地下鉄御堂筋線/中津

大阪府大阪市北区中津1丁目

2分

31.46万円

なし

12ヶ月 / なし

なし

47.27m²

14.29坪/2.2002万円

貸店舗

1973年1月(築53年4ヶ月)

おすすめコメント

飲食相談可 重飲食不可 共同トイレあり

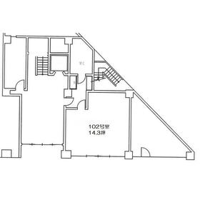
間取図

間取図

外観

外観

その他の画像
  • 外観
  • 室内
  • 室内
  • 室内
  • 室内
  • その他
  • 共有部分
    • お問い合わせ
    交通

    地下鉄御堂筋線 中津駅 徒歩2分

    その他の交通

    阪急宝塚線 大阪梅田駅 徒歩11分

    阪急宝塚線 中津駅 徒歩7分

    所在地 大阪府大阪市北区中津1丁目
    物件種目 貸店舗
    賃料 31.46万円 管理費等 なし
    敷金 / 保証金 12ヶ月 / なし 礼金 なし
    敷引 坪単価 2.2002万円
    保証金償却 権利金
    造作譲渡 その他一時金 なし
    維持費等 保険等
    使用部分面積 47.27m² 坪数 14.29坪
    築年月 1973年1月(築53年4ヶ月) 階建 / 階 10階建 / 1階
    駐車場 バイク置き場
    駐輪場 土地面積
    接道状況 南東 公道 用途地域
    間取り 建物構造 SRC
    アピールポイント 飲食相談可 重飲食不可 共同トイレあり
    建物名・部屋番号  
    リフォーム履歴
    リノベーション履歴
    特記事項 スケルトン、土日・祝日利用可、飲食店可
    備考
    賃貸保証等:加入要(貸主指定保証会社 初回100%)
    管理形態/管理員の勤務形態:-/-
    館銘板作成費用実費 電気代メーター検針 短期解約違約あり 全館禁煙 飲食相談可 重飲食不可
    エネルギー消費性能
    断熱性能
    目安光熱費
    バス・トイレ
    キッチン
    設備・サービス シャッター付き、天井高2,700m
    その他
    契約期間 3年 条件等 定期借家定期借家
    引渡可能時期 相談 現況
    仲介手数料 1ヶ月    
    更新料 物件番号 6989386765
    情報公開日 2026年2月6日 次回更新予定日 2026年4月23日
    ケータイ用バーコード

    QRコード

    スマートフォンでこの物件を見る
    スマートフォンからもこの物件をご覧になれます。
    ※「-」と表示されている項目については、情報提供会社にご確認ください。

    クイックお問い合わせ

    ここから簡単にお問い合わせをすることができます。
    (SSLでの暗号化での送信を希望されるお客さまは こちら よりお問い合わせください)

    お問い合わせ内容(必須)
    物件のお問い合わせ理由(必須)
    お名前・ご担当者様名(必須) 姓  名 
    メールアドレス(必須)
    ※携帯電話のメールアドレスをご入力される方はこちらをご確認ください
    電話番号(必須)
    - -
    備考欄 希望条件、物件案内希望日、質問などがございましたらご記入ください。
    お問い合わせを行う前に「個人情報の取り扱いについて」を必ずお読みください。
    「個人情報の取り扱いについて」に同意いただいた場合は「上記にご同意の上 確認画面へ進む」のボタンをクリックしてください。

    個人情報の取り扱いについて

    皆さまが送付された個人情報はアットホーム(株)のサーバを経由し、お問い合わせ先の不動産会社にメールまたはFAXにて転送されるためアットホーム(株)にも保管されます。アットホーム(株)で保管された個人情報の取り扱いについては、【こちら】をご覧ください。
    また、本画面でご記入いただいた個人情報は、お問い合わせ先の不動産会社でも保管します。 お問い合わせ先の不動産会社が保管する個人情報の取り扱いについては、不動産会社に直接お問い合わせください。

    情報提供会社

    情報提供会社

    (有)フラーリシュハウス

    大阪府知事免許(5)第51567号

    交通:
    地下鉄堺筋線/扇町駅 徒歩2分
    大阪府大阪市北区天神橋3丁目8-19 
    TEL:
    06-6357-9881
    FAX:
    06-6357-6036
    所属団体:
    (一社)大阪府宅地建物取引業協会会員
    (公社)近畿地区不動産公正取引協議会加盟

    取引態様:仲介

    • 会社情報
    • 50017299
    スマートフォンで
    この不動産会社を見る
    QRコード
    • お問い合わせ
    • 提携サイト等より掲載されている物件情報につきましては、不動産会社詳細情報にリンクされていないものがあります。
    • 物件に関するお問合せは、物件詳細ページの「情報提供会社」に表示されている不動産会社へ直接お願いいたします。
    • 間取図は、現況を優先させていただきます。
    • 映像は物件の一部を撮影したものです。物件の契約にあたっての最終判断はご自身の判断に基づいて行ってください。
    • 仲介手数料について仲介手数料

    アットホームは物件情報の適正化に努めております。 内容に誤りがある場合にはこちらへご連絡ください。


    物件画像: