賃貸や不動産はアットホーム-賃貸マンション・賃貸物件・不動産なら アットホーム

大阪府大阪市北区池田町(天満駅)の貸店舗:物件詳細

  • 物件詳細
  • 情報の見方
  • 印刷用画面
交通
所在地
駅徒歩 賃料
管理費等
敷金/保証金
礼金
使用部分面積
坪数/坪単価
物件種目
築年月

JR大阪環状線/天満

大阪府大阪市北区池田町

5分

30.8万円

22,000円

なし / なし

なし

42.12m²

12.74坪/2.4174万円

貸店舗

1988年11月(築37年4ヶ月)

おすすめコメント

【天満エリア】天満駅徒歩5分!人気エリアの重飲食可能物件!リフォーム予定で綺麗な内装になります!

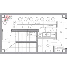
間取図

間取図

その他の画像
    • お問い合わせ
    交通

    JR大阪環状線 天満駅 徒歩5分

    その他の交通

    阪急千里線 天神橋筋六丁目駅 徒歩5分

    地下鉄堺筋線 天神橋筋六丁目駅 徒歩5分

    所在地 大阪府大阪市北区池田町
    物件種目 貸店舗
    賃料 30.8万円 管理費等 22,000円
    敷金 / 保証金 なし / なし 礼金 なし
    敷引 坪単価 2.4174万円
    保証金償却 権利金
    造作譲渡 その他一時金
    維持費等 保険等 要 火災
    クレジットカード決済 初期費用可
    使用部分面積 42.12m² 坪数 12.74坪
    築年月 1988年11月(築37年4ヶ月) 階建 / 階 3階建 / 2階~3階部分
    駐車場 バイク置き場
    駐輪場 土地面積
    接道状況 用途地域
    間取り 建物構造 鉄骨造
    アピールポイント 大阪のテナントは、RiseEstateにお任せください。
    店舗(飲食・美容)、事務所、小売店全てご紹介可能です。
    TEL 06-6585-0001
     お気軽にお問い合わせ下さい。

    ■弊社の得意分野の一つとして「店舗売却」が御座います。

    閉店や移転を考えているお客様にとって、有益な情報のご提供や弊社から最善の売却方法をご提案出来ます!!

    今手元にお持ちの物件を貸したいけど相場が分からないお客様、入居付けに自信が無く空室を抱えてる方等、幅広くご対応が可能です。

    テナント賃貸は是非「RiseEstate」にお任せください!!

    お客様がご希望される条件に添える物件を最速で探して参ります。

    お気軽にお問い合わせください。
    建物名・部屋番号  
    リフォーム履歴
    リノベーション履歴
    特記事項 24時間利用可、土曜日利用可、土日・祝日利用可、飲食店可、1フロア1テナント、角部屋、最上階、IT重説対応物件
    備考
    賃貸保証等:加入要(賃貸保証加入必須、総賃料の100%)
    管理形態/管理員の勤務形態:-/-
    IT重説対応物件
    エネルギー消費性能
    断熱性能
    目安光熱費
    バス・トイレ トイレ
    キッチン オープンキッチン
    設備・サービス 空調機あり、換気口あり
    収納スペース、給湯、動力あり、エアコン、暖房、冷房、三層複層ガラス
    その他
    契約期間 10年 条件等 定期借家定期借家
    引渡可能時期 即時 現況
    更新料 物件番号 6989378196
    情報公開日 2026年2月5日 次回更新予定日 2026年2月28日
    ケータイ用バーコード

    QRコード

    スマートフォンでこの物件を見る
    スマートフォンからもこの物件をご覧になれます。
    ※「-」と表示されている項目については、情報提供会社にご確認ください。

    この物件の周辺情報

    周辺施設 業務スーパー天満店
    距離 75m
    周辺施設 ぷららてんま
    距離 54m
    周辺施設 スーパー玉出天神橋店
    距離 444m
    周辺施設 セブンイレブン大阪池田町店
    距離 42m
    周辺施設 デイリーヤマザキ天神橋4丁目店
    距離 270m
    周辺施設 私立関西大学梅田キャンパス
    距離 1225m
    周辺施設 大阪天神橋六郵便局
    距離 392m
    周辺施設 三菱UFJ銀行都島支店
    距離 448m

    クイックお問い合わせ

    ここから簡単にお問い合わせをすることができます。
    (SSLでの暗号化での送信を希望されるお客さまは こちら よりお問い合わせください)

    お問い合わせ内容(必須)
    物件のお問い合わせ理由(必須)
    お名前・ご担当者様名(必須) 姓  名 
    メールアドレス(必須)
    ※携帯電話のメールアドレスをご入力される方はこちらをご確認ください
    電話番号(必須)
    - -
    備考欄 希望条件、物件案内希望日、質問などがございましたらご記入ください。
    お問い合わせを行う前に「個人情報の取り扱いについて」を必ずお読みください。
    「個人情報の取り扱いについて」に同意いただいた場合は「上記にご同意の上 確認画面へ進む」のボタンをクリックしてください。

    個人情報の取り扱いについて

    皆さまが送付された個人情報はアットホーム(株)のサーバを経由し、お問い合わせ先の不動産会社にメールまたはFAXにて転送されるためアットホーム(株)にも保管されます。アットホーム(株)で保管された個人情報の取り扱いについては、【こちら】をご覧ください。
    また、本画面でご記入いただいた個人情報は、お問い合わせ先の不動産会社でも保管します。 お問い合わせ先の不動産会社が保管する個人情報の取り扱いについては、不動産会社に直接お問い合わせください。

    情報提供会社

    情報提供会社

    (株)Rise Estate

    大阪府知事免許(1)第65088号

    交通:
    地下鉄谷町線/東梅田駅 徒歩6分
    大阪府大阪市北区兎我野町5-9 梅田UKビル8階
    TEL:
    06-6585-0001
    FAX:
    06-7730-9753
    所属団体:
    (一社)大阪府宅地建物取引業協会会員
    (公社)近畿地区不動産公正取引協議会加盟

    取引態様:仲介

    • 会社情報
    • 50109846
    スマートフォンで
    この不動産会社を見る
    QRコード
    • お問い合わせ
    • 提携サイト等より掲載されている物件情報につきましては、不動産会社詳細情報にリンクされていないものがあります。
    • 物件に関するお問合せは、物件詳細ページの「情報提供会社」に表示されている不動産会社へ直接お願いいたします。
    • 間取図は、現況を優先させていただきます。
    • 映像は物件の一部を撮影したものです。物件の契約にあたっての最終判断はご自身の判断に基づいて行ってください。
    • 仲介手数料について仲介手数料

    アットホームは物件情報の適正化に努めております。 内容に誤りがある場合にはこちらへご連絡ください。


    物件画像: