賃貸や不動産はアットホーム-賃貸マンション・賃貸物件・不動産なら アットホーム

岡山県倉敷市福田町古新田(弥生駅)の貸店舗:物件詳細

  • 物件詳細
  • 情報の見方
  • 印刷用画面
交通
所在地
駅徒歩 賃料
管理費等
敷金/保証金
礼金
使用部分面積
坪数/坪単価
物件種目
築年月

水島臨海鉄道/弥生

岡山県倉敷市福田町古新田

10分

22万円

3ヶ月 / なし

1ヶ月

50.63m²

15.31坪/1.4365万円

貸店舗・事務所

2026年3月(新築)

おすすめコメント  スタッフ: 川上

■新築■福田町古新田1階おしゃれな貸店舗事務所募集開始■交通量も多く視認性良し◎事前予約で室内見学可■駐車場3台付無料追加駐車場有料1台5500円台数応相談■業種はご相談下さい※軽飲食のみ相談可塾不可

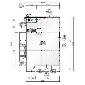
間取図

間取図

外観

外観

<
その他の画像
  • 外観
  • 室内
  • 室内
  • 室内
  • 室内
  • 室内
  • 外観
  • 外観
  • 室内
  • 室内
  • 室内
  • 室内
  • 室内
  • 販売店
  • ショッピング施設
  • 郵便局
>
    • お問い合わせ
    交通

    水島臨海鉄道 弥生駅 徒歩10分

    その他の交通

    水島臨海鉄道 栄駅 徒歩19分

    水島臨海鉄道 浦田駅 徒歩21分

    所在地 岡山県倉敷市福田町古新田
    物件種目 貸店舗・事務所
    賃料 22万円 管理費等
    敷金 / 保証金 3ヶ月 / なし 礼金 1ヶ月
    敷引 坪単価 1.4365万円
    保証金償却 権利金
    造作譲渡 その他一時金
    維持費等 保険等
    使用部分面積 50.63m² 坪数 15.31坪
    築年月 2026年3月(新築) 階建 / 階 2階建 / 1階
    駐車場 有 無料(空き3台)
    3台付無料→追加駐車場近隣有料1台につき5500円台数応相談
    バイク置き場
    駐輪場 土地面積
    接道状況 用途地域 2種住居
    間取り 建物構造 木造
    アピールポイント ■新築■福田町古新田1階おしゃれな貸店舗事務所募集開始■■交通量も多く視認性良し■事前予約で室内見学可■駐車場3台付無料追加駐車場有料1台5500円台数応相談■業種はご相談ください(軽飲食のみ相談可塾不可)■ビルトインエアコン、トイレ、ミニキッチン付きその他内装(床、壁、天井、照明)は入居者様で内装施工ください※スケルトン渡しです■
    建物名・部屋番号  
    リフォーム履歴
    リノベーション履歴
    特記事項 24時間利用可、土曜日利用可、土日・祝日利用可、飲食店可、1フロア1テナント、駐車場3台分以上
    備考
    賃貸保証等:加入要(個人契約必須→日本セーフティ初回賃料100%用)
    管理形態/管理員の勤務形態:-/-
    主要採光面:北向き
    エネルギー消費性能
    断熱性能
    目安光熱費
    バス・トイレ 専有部分にトイレあり
    キッチン
    設備・サービス 看板取付スペースあり
    給湯、ビルトインエアコン
    その他
    契約期間 2年 条件等
    引渡可能時期 指定有り2026年3月15日 現況 未完成
    適格請求書発行
    更新料 物件番号 6989362448
    情報公開日 2026年2月4日 次回更新予定日 2026年3月2日
    ケータイ用バーコード

    QRコード

    スマートフォンでこの物件を見る
    スマートフォンからもこの物件をご覧になれます。
    ※「-」と表示されている項目については、情報提供会社にご確認ください。

    この物件の周辺情報

    周辺施設 ディスカウントドラッグコスモス北畝店
    距離 288m
    周辺施設 ニシナフードバスケット水島北店
    距離 318m
    周辺施設 ワッツウィズ水島北ニシナ店
    距離 318m
    周辺施設 ガスト倉敷水島北店(から好し取扱店)
    距離 287m
    周辺施設 ディオマート北畝店
    距離 302m
    周辺施設 倉敷北畝郵便局
    距離 482m
    周辺施設 セブンイレブン倉敷水島相生町店
    距離 761m
    周辺施設 岡山県立倉敷古城池高校
    距離 852m

    クイックお問い合わせ

    ここから簡単にお問い合わせをすることができます。
    (SSLでの暗号化での送信を希望されるお客さまは こちら よりお問い合わせください)

    お問い合わせ内容(必須)
    物件のお問い合わせ理由(必須)
    お名前・ご担当者様名(必須) 姓  名 
    メールアドレス(必須)
    ※携帯電話のメールアドレスをご入力される方はこちらをご確認ください
    電話番号(必須)
    - -
    備考欄 希望条件、物件案内希望日、質問などがございましたらご記入ください。
    お問い合わせを行う前に「個人情報の取り扱いについて」を必ずお読みください。
    「個人情報の取り扱いについて」に同意いただいた場合は「上記にご同意の上 確認画面へ進む」のボタンをクリックしてください。

    個人情報の取り扱いについて

    皆さまが送付された個人情報はアットホーム(株)のサーバを経由し、お問い合わせ先の不動産会社にメールまたはFAXにて転送されるためアットホーム(株)にも保管されます。アットホーム(株)で保管された個人情報の取り扱いについては、【こちら】をご覧ください。
    また、本画面でご記入いただいた個人情報は、お問い合わせ先の不動産会社でも保管します。 お問い合わせ先の不動産会社が保管する個人情報の取り扱いについては、不動産会社に直接お問い合わせください。

    情報提供会社

    情報提供会社

    ピタットハウス新倉敷店 ワールドクィーン(株)

    岡山県知事免許(6)第4348号

    交通:
    JR山陽本線/新倉敷駅 徒歩4分
    岡山県倉敷市新倉敷駅前4丁目52-1 
    TEL:
    086-436-8111
    FAX:
    086-436-8100
    所属団体:
    (公社)全日本不動産協会会員
    中国地区不動産公正取引協議会加盟

    取引態様:仲介

    • 会社情報
    • 50026508
    スマートフォンで
    この不動産会社を見る
    QRコード
    • お問い合わせ
    • 提携サイト等より掲載されている物件情報につきましては、不動産会社詳細情報にリンクされていないものがあります。
    • 物件に関するお問合せは、物件詳細ページの「情報提供会社」に表示されている不動産会社へ直接お願いいたします。
    • 間取図は、現況を優先させていただきます。
    • 映像は物件の一部を撮影したものです。物件の契約にあたっての最終判断はご自身の判断に基づいて行ってください。
    • 仲介手数料について仲介手数料

    アットホームは物件情報の適正化に努めております。 内容に誤りがある場合にはこちらへご連絡ください。


    物件画像: