東京メトロ日比谷線/六本木
東京都港区六本木7丁目
1分
232.848万円
-
なし / 10ヶ月
1ヶ月
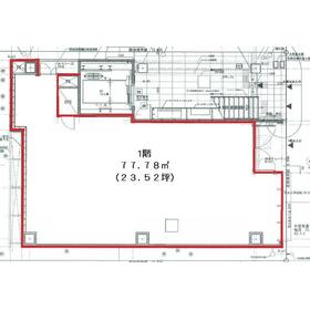
77.78m²
23.52坪/9.8965万円
貸店舗・事務所
2017年2月(築9年1ヶ月)
飲食店舗:業態相談保険会社加入必須、再契約料:賃料の1ヵ月分ゴミ処理料:実費別途負担看板掲載料(1階案内板・袖看板):20,000円(税別)/月額※※風俗営業、ガールズバー、ラウンジ不可
間取図
東京メトロ日比谷線 六本木駅 徒歩1分
都営大江戸線 六本木駅 徒歩1分
ここから簡単にお問い合わせをすることができます。(SSLでの暗号化での送信を希望されるお客さまは こちら よりお問い合わせください)
携帯電話のメール受信設定でドメイン指定受信設定をしている方は、 アットホームからのお問い合わせ内容確認メールおよび不動産会社からの返信メールが届かない場合があります。 必ず、下記ドメインからのメールが受信できるように設定の変更をお願いします。
アットホームからのお問い合せ内容確認メール:athome.jp (株)スペーストラスト 赤坂支店六本木営業課:spacetrust.co.jp
皆さまが送付された個人情報はアットホーム(株)のサーバを経由し、お問い合わせ先の不動産会社にメールまたはFAXにて転送されるためアットホーム(株)にも保管されます。アットホーム(株)で保管された個人情報の取り扱いについては、【こちら】をご覧ください。 また、本画面でご記入いただいた個人情報は、お問い合わせ先の不動産会社でも保管します。 お問い合わせ先の不動産会社が保管する個人情報の取り扱いについては、不動産会社に直接お問い合わせください。
東京都知事免許(12)第36339号
取引態様:仲介
アットホームは物件情報の適正化に努めております。 内容に誤りがある場合にはこちらへご連絡ください。