賃貸や不動産はアットホーム-賃貸マンション・賃貸物件・不動産なら アットホーム

大阪府池田市鉢塚3丁目(石橋阪大前駅)の貸店舗:物件詳細

  • 物件詳細
  • 情報の見方
  • 印刷用画面
交通
所在地
駅徒歩 賃料
管理費等
敷金/保証金
礼金
使用部分面積
坪数/坪単価
物件種目
築年月

阪急宝塚線/石橋阪大前

大阪府池田市鉢塚3丁目

12分

50.6万円

22,000円

2ヶ月 / なし

2ヶ月

143.00m²

43.25坪/1.1698万円

貸店舗・事務所

2005年11月(築20年6ヶ月)

おすすめコメント

国道176号線沿いの1階テナント!クリニック跡になります。一部造作残置予定

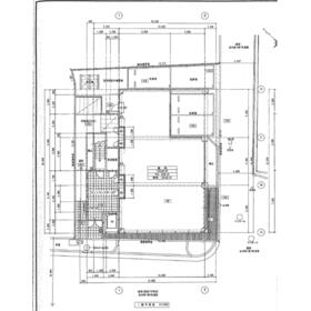
間取図

間取図

その他の画像
    • お問い合わせ
    交通

    阪急宝塚線 石橋阪大前駅 徒歩12分

    その他の交通

    阪急宝塚線 池田駅 徒歩18分

    阪急箕面線 桜井駅 徒歩27分

    所在地 大阪府池田市鉢塚3丁目
    物件種目 貸店舗・事務所
    賃料 50.6万円 管理費等 22,000円
    敷金 / 保証金 2ヶ月 / なし 礼金 2ヶ月
    敷引 坪単価 1.1698万円
    保証金償却 権利金
    造作譲渡 その他一時金
    維持費等 保険等
    使用部分面積 143.00m² 坪数 43.25坪
    築年月 2005年11月(築20年6ヶ月) 階建 / 階 4階建 / 1階
    駐車場 有 12,500円/月(空き4台)
    1台/12500円 合計50000円・4台セット契約
    バイク置き場
    駐輪場 土地面積
    接道状況 用途地域
    間取り 建物構造 RC
    アピールポイント 国道176号線沿いの1階テナント!クリニック跡になります。一部造作残置予定
    建物名・部屋番号 La Forest Hachizuka
    リフォーム履歴
    リノベーション履歴
    特記事項 スケルトン、土曜日利用可、土日・祝日利用可、国道沿いに面する
    備考
    賃貸保証等:加入要(加入要 プラン例:初回保証委託料月額総賃料100%、年間更新料月額総賃料の10%(最低保証料20,000円))
    管理形態/管理員の勤務形態:-/-
    クリニック限定募集
    エネルギー消費性能
    断熱性能
    目安光熱費
    バス・トイレ
    キッチン
    設備・サービス
    その他
    契約期間 2年 条件等
    引渡可能時期 2026年6月中旬予定 現況 居住中
    仲介手数料 1ヶ月    
    更新料 なし 物件番号 6989231316
    情報公開日 2026年2月19日 次回更新予定日 2026年4月23日
    ケータイ用バーコード

    QRコード

    スマートフォンでこの物件を見る
    スマートフォンからもこの物件をご覧になれます。
    ※「-」と表示されている項目については、情報提供会社にご確認ください。

    この物件の周辺情報

    周辺施設 業務スーパー鉢塚店
    距離 629m
    周辺施設 ローソン池田鉢塚二丁目店
    距離 156m
    周辺施設 ファミリーマート池田荘園東店
    距離 309m
    周辺施設 国立大阪大学豊中キャンパス
    距離 2002m
    周辺施設 私立宣真高校
    距離 464m
    周辺施設 荘園保育所
    距離 437m
    周辺施設 医療法人マックシール巽病院
    距離 817m
    周辺施設 市立池田病院
    距離 1165m

    クイックお問い合わせ

    ここから簡単にお問い合わせをすることができます。
    (SSLでの暗号化での送信を希望されるお客さまは こちら よりお問い合わせください)

    お問い合わせ内容(必須)
    物件のお問い合わせ理由(必須)
    お名前・ご担当者様名(必須) 姓  名 
    メールアドレス(必須)
    ※携帯電話のメールアドレスをご入力される方はこちらをご確認ください
    電話番号(必須)
    - -
    備考欄 希望条件、物件案内希望日、質問などがございましたらご記入ください。
    お問い合わせを行う前に「個人情報の取り扱いについて」を必ずお読みください。
    「個人情報の取り扱いについて」に同意いただいた場合は「上記にご同意の上 確認画面へ進む」のボタンをクリックしてください。

    個人情報の取り扱いについて

    皆さまが送付された個人情報はアットホーム(株)のサーバを経由し、お問い合わせ先の不動産会社にメールまたはFAXにて転送されるためアットホーム(株)にも保管されます。アットホーム(株)で保管された個人情報の取り扱いについては、【こちら】をご覧ください。
    また、本画面でご記入いただいた個人情報は、お問い合わせ先の不動産会社でも保管します。 お問い合わせ先の不動産会社が保管する個人情報の取り扱いについては、不動産会社に直接お問い合わせください。

    情報提供会社

    情報提供会社

    (株)エイブル 西日本テナント営業部

    国土交通大臣免許(7)第5338号

    交通:
    地下鉄御堂筋線/淀屋橋駅 徒歩1分
    大阪府大阪市北区堂島1丁目2-6 シーサXⅡ4F
    TEL:
    06-6361-8211
    FAX:
    06-6361-8127

    取引態様:仲介

    • 会社情報
    • 50025958
    スマートフォンで
    この不動産会社を見る
    QRコード
    • お問い合わせ
    • 提携サイト等より掲載されている物件情報につきましては、不動産会社詳細情報にリンクされていないものがあります。
    • 物件に関するお問合せは、物件詳細ページの「情報提供会社」に表示されている不動産会社へ直接お願いいたします。
    • 間取図は、現況を優先させていただきます。
    • 映像は物件の一部を撮影したものです。物件の契約にあたっての最終判断はご自身の判断に基づいて行ってください。
    • 仲介手数料について仲介手数料

    アットホームは物件情報の適正化に努めております。 内容に誤りがある場合にはこちらへご連絡ください。


    物件画像: