賃貸や不動産はアットホーム-賃貸マンション・賃貸物件・不動産なら アットホーム

徳島県徳島市北矢三町3丁目(蔵本駅)の貸店舗:物件詳細

  • 物件詳細
  • 情報の見方
  • 印刷用画面
交通
所在地
駅徒歩 賃料
管理費等
敷金/保証金
礼金
使用部分面積
坪数/坪単価
物件種目
築年月

JR徳島線/蔵本

徳島県徳島市北矢三町3丁目

14分

16万円

3ヶ月 / なし

1ヶ月

50.54m²

15.28坪/1.0466万円

貸店舗・事務所(一括)

2026年6月(新築)

おすすめコメント

北矢三町3丁目の新築貸店舗・事務所です(令和8年6月に建物完成予定)。コンビニ、飲食店などが並ぶロードサイド沿いの好立地!令和8年2月までは外観等の変更もご相談可能です。

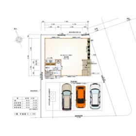
間取図

間取図

<
その他の画像
  • コンビニ
  • コンビニ
  • 飲食店
  • 販売店
>
    • お問い合わせ
    交通

    JR徳島線 蔵本駅 徒歩14分

    所在地 徳島県徳島市北矢三町3丁目
    物件種目 貸店舗・事務所(一括)
    賃料 16万円 管理費等
    敷金 / 保証金 3ヶ月 / なし 礼金 1ヶ月
    敷引 坪単価 1.0466万円
    保証金償却 権利金
    造作譲渡 その他一時金
    維持費等 保険等
    使用部分面積 50.54m² 坪数 15.28坪
    築年月 2026年6月(新築) 階建 / 階 1階建 / 1階
    駐車場 有 無料(空き4台) バイク置き場
    駐輪場 土地面積 158.85m²(公簿)
    接道状況 東 16.0m 公道 接面15.0m ・ 南 4.0m 公道 接面13.0m ・ 二方道路 用途地域 1種住居
    間取り 建物構造 木造
    建物名・部屋番号  
    リフォーム履歴
    リノベーション履歴
    特記事項 飲食店不可、駐車場3台分以上、天井高2.5M以上
    備考
    賃貸保証等:加入要(興和アシスト 初回保証料:月額賃料の50%~ 年間保証委託料(1年毎)10,000円)
    管理形態/管理員の勤務形態:-/-
    ・敷地内駐車場4台(無料)
    ・外観変更、屋外広告スペースご相談可能
    エネルギー消費性能
    断熱性能
    目安光熱費
    バス・トイレ 専有部分にトイレあり
    キッチン
    設備・サービス 水道メーター口径20mm
    その他
    契約期間 2年 条件等
    引渡可能時期 2026年6月上旬予定 現況 未完成
    仲介手数料 1ヶ月    
    更新料 なし 物件番号 6988973436
    情報公開日 2026年1月6日 次回更新予定日 2026年2月19日
    ケータイ用バーコード

    QRコード

    スマートフォンでこの物件を見る
    スマートフォンからもこの物件をご覧になれます。
    ※「-」と表示されている項目については、情報提供会社にご確認ください。

    この物件の周辺情報

    周辺施設 ファミリーマート徳島北矢三町店
    距離 161m
    周辺施設 セブンイレブン徳島北島田町店
    距離 423m
    周辺施設 マクドナルド矢三店
    距離 385m
    周辺施設 中華そばやまきょう
    距離 478m
    周辺施設 ゲオ徳島矢三店
    距離 417m

    クイックお問い合わせ

    ここから簡単にお問い合わせをすることができます。
    (SSLでの暗号化での送信を希望されるお客さまは こちら よりお問い合わせください)

    お問い合わせ内容(必須)
    物件のお問い合わせ理由(必須)
    お名前・ご担当者様名(必須) 姓  名 
    メールアドレス(必須)
    ※携帯電話のメールアドレスをご入力される方はこちらをご確認ください
    電話番号(必須)
    - -
    備考欄 希望条件、物件案内希望日、質問などがございましたらご記入ください。
    お問い合わせを行う前に「個人情報の取り扱いについて」を必ずお読みください。
    「個人情報の取り扱いについて」に同意いただいた場合は「上記にご同意の上 確認画面へ進む」のボタンをクリックしてください。

    個人情報の取り扱いについて

    皆さまが送付された個人情報はアットホーム(株)のサーバを経由し、お問い合わせ先の不動産会社にメールまたはFAXにて転送されるためアットホーム(株)にも保管されます。アットホーム(株)で保管された個人情報の取り扱いについては、【こちら】をご覧ください。
    また、本画面でご記入いただいた個人情報は、お問い合わせ先の不動産会社でも保管します。 お問い合わせ先の不動産会社が保管する個人情報の取り扱いについては、不動産会社に直接お問い合わせください。

    情報提供会社

    情報提供会社

    (株)薬師神不動産

    徳島県知事免許(2)第3095号

    交通:
    JR徳島線/徳島駅 徒歩25分 【バス】10分 福島1丁目バス停 停歩6分
    徳島県徳島市新南福島1丁目6-20 
    TEL:
    088-624-8865
    FAX:
    088-624-8867
    所属団体:
    (公社)全日本不動産協会会員
    四国地区不動産公正取引協議会加盟

    取引態様:仲介

    • 会社情報
    • 50105182
    スマートフォンで
    この不動産会社を見る
    QRコード
    • お問い合わせ
    • 提携サイト等より掲載されている物件情報につきましては、不動産会社詳細情報にリンクされていないものがあります。
    • 物件に関するお問合せは、物件詳細ページの「情報提供会社」に表示されている不動産会社へ直接お願いいたします。
    • 間取図は、現況を優先させていただきます。
    • 映像は物件の一部を撮影したものです。物件の契約にあたっての最終判断はご自身の判断に基づいて行ってください。
    • 仲介手数料について仲介手数料

    アットホームは物件情報の適正化に努めております。 内容に誤りがある場合にはこちらへご連絡ください。


    物件画像: