賃貸や不動産はアットホーム-賃貸マンション・賃貸物件・不動産なら アットホーム

京都府京都市西京区川島松園町(桂駅)の貸店舗:物件詳細

  • 物件詳細
  • 情報の見方
  • 印刷用画面
交通
所在地
駅徒歩 賃料
管理費等
敷金/保証金
礼金
使用部分面積
坪数/坪単価
物件種目
築年月

阪急京都線/ 新着

京都府京都市西京区川島松園町

10分

26万円

10,000円

81万円 / なし

なし

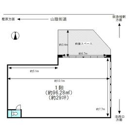
96.28m²

29.12坪/0.8928万円

貸店舗・事務所

1989年3月(築36年10ヶ月)

おすすめコメント

【桂エリアの1階約29坪・前面スペースに駐車可能】北・東面がガラス張りで室内明るく開放的です。阪急「桂駅」と「洛西口駅」の間あたりになります。

間取図

間取図

外観

外観

  • お問い合わせ
交通

阪急京都線 桂駅 徒歩10分

その他の交通

阪急京都線 洛西口駅 徒歩14分

JR東海道本線 桂川駅 徒歩22分

所在地 京都府京都市西京区川島松園町
物件種目 貸店舗・事務所
賃料 26万円 管理費等 10,000円
敷金 / 保証金 81万円 / なし 礼金 なし
敷引 坪単価 0.8928万円
保証金償却 権利金
造作譲渡 その他一時金
維持費等 月次保証料:2,700円/月 保険等
使用部分面積 96.28m² 坪数 29.12坪
築年月 1989年3月(築36年10ヶ月) 階建 / 階 4階建 / 1階
駐車場 有 無料(空き1台)
前面スペース
バイク置き場
駐輪場 土地面積
接道状況 北 公道 ・ 東 公道 ・ 二方道路 用途地域
間取り 建物構造 RC
建物名・部屋番号  
リフォーム履歴
リノベーション履歴
特記事項
備考
賃貸保証等:加入要(家賃保証会社に加入要(初回と月次に保証料が必要))
管理形態/管理員の勤務形態:-/-
エネルギー消費性能
断熱性能
目安光熱費
バス・トイレ 専有部分にトイレあり
キッチン
設備・サービス シャッター付き
都市ガス
その他
契約期間 3年 条件等
引渡可能時期 即時 現況
更新料 なし 物件番号 6988847846
情報公開日 2025年12月20日 次回更新予定日 2026年1月3日
ケータイ用バーコード

QRコード

スマートフォンでこの物件を見る
スマートフォンからもこの物件をご覧になれます。
※「-」と表示されている項目については、情報提供会社にご確認ください。

この物件の周辺情報

周辺施設 スーパーマツモト桂東店
距離 574m
周辺施設 イオンモール桂川
距離 2100m
周辺施設 セブンイレブン京都川島店
距離 119m
周辺施設 キリン堂京都川島店
距離 177m
周辺施設 エネオス桂駅前SS
距離 187m
周辺施設 京都川島郵便局
距離 12m
周辺施設 京都信用金庫東桂支店
距離 633m
周辺施設 イオンシネマ京都桂川
距離 2176m

クイックお問い合わせ

ここから簡単にお問い合わせをすることができます。
(SSLでの暗号化での送信を希望されるお客さまは こちら よりお問い合わせください)

お問い合わせ内容(必須)
物件のお問い合わせ理由(必須)
お名前・ご担当者様名(必須) 姓  名 
メールアドレス(必須)
※携帯電話のメールアドレスをご入力される方はこちらをご確認ください
電話番号(必須)
- -
備考欄 希望条件、物件案内希望日、質問などがございましたらご記入ください。
お問い合わせを行う前に「個人情報の取り扱いについて」を必ずお読みください。
「個人情報の取り扱いについて」に同意いただいた場合は「上記にご同意の上 確認画面へ進む」のボタンをクリックしてください。

個人情報の取り扱いについて

皆さまが送付された個人情報はアットホーム(株)のサーバを経由し、お問い合わせ先の不動産会社にメールまたはFAXにて転送されるためアットホーム(株)にも保管されます。アットホーム(株)で保管された個人情報の取り扱いについては、【こちら】をご覧ください。
また、本画面でご記入いただいた個人情報は、お問い合わせ先の不動産会社でも保管します。 お問い合わせ先の不動産会社が保管する個人情報の取り扱いについては、不動産会社に直接お問い合わせください。

情報提供会社

情報提供会社

辻不動産(株)

京都府知事免許(2)第14299号

交通:
地下鉄烏丸線/五条駅 徒歩6分
京都府京都市下京区万寿寺通御幸町西入堅田町578-1 
TEL:
075-585-2540
FAX:
075-585-2540
所属団体:
(公社)全日本不動産協会会員
(公社)近畿地区不動産公正取引協議会加盟

取引態様:仲介

  • 会社情報
  • 50105366
スマートフォンで
この不動産会社を見る
QRコード
  • お問い合わせ
  • 提携サイト等より掲載されている物件情報につきましては、不動産会社詳細情報にリンクされていないものがあります。
  • 物件に関するお問合せは、物件詳細ページの「情報提供会社」に表示されている不動産会社へ直接お願いいたします。
  • 間取図は、現況を優先させていただきます。
  • 映像は物件の一部を撮影したものです。物件の契約にあたっての最終判断はご自身の判断に基づいて行ってください。
  • 仲介手数料について仲介手数料

アットホームは物件情報の適正化に努めております。 内容に誤りがある場合にはこちらへご連絡ください。


物件画像: