賃貸や不動産はアットホーム-賃貸マンション・賃貸物件・不動産なら アットホーム

東京都杉並区上荻1丁目(荻窪駅)の貸店舗:物件詳細

  • 物件詳細
  • 情報の見方
  • 印刷用画面
交通
所在地
駅徒歩 賃料
管理費等
敷金/保証金
礼金
使用部分面積
坪数/坪単価
物件種目
築年月

JR中央線/荻窪

東京都杉並区上荻1丁目

6分

15.4万円

3ヶ月 / なし

1ヶ月

31.90m²

9.64坪/1.596万円

貸店舗・事務所

1991年5月(築34年10ヶ月)

おすすめコメント

【荻窪駅北口徒歩6分】3階・31.9㎡の店舗事務所!室内は事務所仕様になっております!内見可能♪お気軽にお問い合わせください!

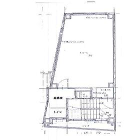
間取図

間取図

<
その他の画像
>
    • お問い合わせ
    交通

    JR中央線 荻窪駅 徒歩6分

    所在地 東京都杉並区上荻1丁目
    物件種目 貸店舗・事務所
    賃料 15.4万円 管理費等
    敷金 / 保証金 3ヶ月 / なし 礼金 1ヶ月
    敷引 坪単価 1.596万円
    保証金償却 権利金
    造作譲渡 その他一時金
    維持費等 保険等 要 借家人賠償
    使用部分面積 31.90m² 坪数 9.64坪
    築年月 1991年5月(築34年10ヶ月) 階建 / 階 5階建 / 3階
    駐車場 バイク置き場
    駐輪場 土地面積
    接道状況 用途地域
    間取り 建物構造 鉄骨造
    アピールポイント 【 事務所・店舗専門の不動産屋さん 】

    三鷹駅より徒歩数分の利便性を生かし、事務所や店舗を多く取り扱っております!
    物件仲介に長年携わり、多くの方々から信頼を得たベテランスタッフが、女性ならではの細やかさで対応致します☆
    事務所開業・移転または事業の新規開業・拡大の方を応援いたします!
    掲載中の物件以外も多数ご紹介できますので、お気軽にご相談下さい♪
    建物名・部屋番号  
    リフォーム履歴
    リノベーション履歴
    特記事項 土曜日利用可、土日・祝日利用可、飲食店不可、1フロア1テナント
    備考
    賃貸保証等:加入要(初回保証料:賃料の1ヶ月分・継続保証料あり)
    管理形態/管理員の勤務形態:-/-
    エネルギー消費性能
    断熱性能
    目安光熱費
    バス・トイレ 専有部分にトイレあり
    キッチン
    設備・サービス 給湯、エアコン、FF暖房、インターネット対応
    その他
    契約期間 2年 条件等
    引渡可能時期 即時 現況
    仲介手数料 1ヶ月    
    更新料 新賃料 1ヶ月 物件番号 6988819284
    情報公開日 2025年12月18日 次回更新予定日 2026年3月5日
    ケータイ用バーコード

    QRコード

    スマートフォンでこの物件を見る
    スマートフォンからもこの物件をご覧になれます。
    ※「-」と表示されている項目については、情報提供会社にご確認ください。

    クイックお問い合わせ

    ここから簡単にお問い合わせをすることができます。
    (SSLでの暗号化での送信を希望されるお客さまは こちら よりお問い合わせください)

    お問い合わせ内容(必須)
    物件のお問い合わせ理由(必須)
    お名前・ご担当者様名(必須) 姓  名 
    メールアドレス(必須)
    ※携帯電話のメールアドレスをご入力される方はこちらをご確認ください
    電話番号(必須)
    - -
    備考欄 希望条件、物件案内希望日、質問などがございましたらご記入ください。
    お問い合わせを行う前に「個人情報の取り扱いについて」を必ずお読みください。
    「個人情報の取り扱いについて」に同意いただいた場合は「上記にご同意の上 確認画面へ進む」のボタンをクリックしてください。

    個人情報の取り扱いについて

    皆さまが送付された個人情報はアットホーム(株)のサーバを経由し、お問い合わせ先の不動産会社にメールまたはFAXにて転送されるためアットホーム(株)にも保管されます。アットホーム(株)で保管された個人情報の取り扱いについては、【こちら】をご覧ください。
    また、本画面でご記入いただいた個人情報は、お問い合わせ先の不動産会社でも保管します。 お問い合わせ先の不動産会社が保管する個人情報の取り扱いについては、不動産会社に直接お問い合わせください。

    情報提供会社

    情報提供会社

    (有)オーエムコーポレーション

    東京都知事免許(4)第87158号

    交通:
    JR中央線/三鷹駅 徒歩3分
    東京都三鷹市下連雀3丁目34-2 エミネンスイン三鷹404
    TEL:
    0422-40-2808
    FAX:
    0422-40-2805
    所属団体:
    (公社)全日本不動産協会会員
    (公社)首都圏不動産公正取引協議会加盟

    取引態様:仲介

    • 会社情報
    • 00988571
    スマートフォンで
    この不動産会社を見る
    QRコード
    • お問い合わせ
    • 提携サイト等より掲載されている物件情報につきましては、不動産会社詳細情報にリンクされていないものがあります。
    • 物件に関するお問合せは、物件詳細ページの「情報提供会社」に表示されている不動産会社へ直接お願いいたします。
    • 間取図は、現況を優先させていただきます。
    • 映像は物件の一部を撮影したものです。物件の契約にあたっての最終判断はご自身の判断に基づいて行ってください。
    • 仲介手数料について仲介手数料

    アットホームは物件情報の適正化に努めております。 内容に誤りがある場合にはこちらへご連絡ください。


    物件画像: