賃貸や不動産はアットホーム-賃貸マンション・賃貸物件・不動産なら アットホーム

奈良県橿原市南八木町1丁目(八木西口駅)の貸店舗:物件詳細

  • 物件詳細
  • 情報の見方
  • 印刷用画面
交通
所在地
駅徒歩 賃料
管理費等
敷金/保証金
礼金
使用部分面積
坪数/坪単価
物件種目
築年月

近鉄橿原線/八木西口 新着

奈良県橿原市南八木町1丁目

5分

40万円

なし / なし

なし

224.42m²

67.88坪/0.5893万円

貸店舗・事務所

1992年8月(築33年5ヶ月)

おすすめコメント

大和八木駅近く、エレベーターあり!用土地域:商業地域使用用途や業種はご相談ください!※男女トイレ別、空調は埋め込み型/※管理組合あり(全部委託、株式会社東急コミュニティー、管理人巡回)

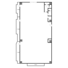
間取図

間取図

<
その他の画像
>
    • お問い合わせ
    交通

    近鉄橿原線 八木西口駅 徒歩5分

    その他の交通

    JR桜井線 畝傍駅 徒歩5分

    近鉄橿原線 大和八木駅 徒歩9分

    所在地 奈良県橿原市南八木町1丁目
    物件種目 貸店舗・事務所
    賃料 40万円 管理費等
    敷金 / 保証金 なし / なし 礼金 なし
    敷引 坪単価 0.5893万円
    保証金償却 権利金
    造作譲渡 その他一時金
    維持費等 保険等
    使用部分面積 224.42m² 坪数 67.88坪
    築年月 1992年8月(築33年5ヶ月) 階建 / 階 9階建 / 2階
    駐車場 空無 バイク置き場
    駐輪場 土地面積
    接道状況 用途地域 商業地域
    間取り 建物構造 SRC
    アピールポイント 大和八木駅近く、エレベーターあり!用土地域:商業地域使用用途や業種はご相談ください!※男女トイレ別、空調は埋め込み型/※管理組合あり(全部委託、株式会社東急コミュニティー、管理人巡回)7LDK八木店は、カフェのような店内でお部屋探しをお手伝いします。敷地内には、自動車10台駐車スペースがございます。ぜひ、お部屋探しのコンシェルジュ7LDKへお任せください。
    建物名・部屋番号  
    リフォーム履歴
    リノベーション履歴
    特記事項 24時間利用可、土曜日利用可、土日・祝日利用可、飲食店不可、国道沿いに面する
    備考
    賃貸保証等:加入要(要確認)
    管理形態/管理員の勤務形態:-/-
    大和八木駅近く、エレベーターあり!用土地域:商業地域使用用途や業種はご相談ください!※男女トイレ別、空調は埋め込み型/※管理組合あり(全部委託、株式会社東急コミュニティー、管理人巡回7LDK八木店は、カフェのような店内でお部屋探しをお手伝いします。敷地内には、自動車10台駐車スペースがございます。ぜひ、お部屋探しのコンシェルジュ7LDKへお任せください。)
    エネルギー消費性能
    断熱性能
    目安光熱費
    バス・トイレ トイレ
    キッチン
    設備・サービス
    その他
    契約期間 2年 条件等
    引渡可能時期 相談 現況
    更新料 物件番号 6988798141
    情報公開日 2025年12月19日 次回更新予定日 2026年1月2日
    ケータイ用バーコード

    QRコード

    スマートフォンでこの物件を見る
    スマートフォンからもこの物件をご覧になれます。
    ※「-」と表示されている項目については、情報提供会社にご確認ください。

    この物件の周辺情報

    周辺施設 松源橿原八木店
    距離 501m
    周辺施設 セブンイレブン橿原南八木町1丁目店
    距離 115m
    周辺施設 ローソン奈良医大病院店
    距離 393m
    周辺施設 ファミリーマート奈良県立医大前店
    距離 523m
    周辺施設 ドトールコーヒーショップ奈良県立医科大学附属病院店
    距離 340m
    周辺施設 ミスタードーナツ八木駅前ショップ
    距離 791m
    周辺施設 森川モーターサイクル
    距離 476m
    周辺施設 医療法人桂会平尾病院
    距離 216m

    クイックお問い合わせ

    ここから簡単にお問い合わせをすることができます。
    (SSLでの暗号化での送信を希望されるお客さまは こちら よりお問い合わせください)

    お問い合わせ内容(必須)
    物件のお問い合わせ理由(必須)
    お名前・ご担当者様名(必須) 姓  名 
    メールアドレス(必須)
    ※携帯電話のメールアドレスをご入力される方はこちらをご確認ください
    電話番号(必須)
    - -
    備考欄 希望条件、物件案内希望日、質問などがございましたらご記入ください。
    お問い合わせを行う前に「個人情報の取り扱いについて」を必ずお読みください。
    「個人情報の取り扱いについて」に同意いただいた場合は「上記にご同意の上 確認画面へ進む」のボタンをクリックしてください。

    個人情報の取り扱いについて

    皆さまが送付された個人情報はアットホーム(株)のサーバを経由し、お問い合わせ先の不動産会社にメールまたはFAXにて転送されるためアットホーム(株)にも保管されます。アットホーム(株)で保管された個人情報の取り扱いについては、【こちら】をご覧ください。
    また、本画面でご記入いただいた個人情報は、お問い合わせ先の不動産会社でも保管します。 お問い合わせ先の不動産会社が保管する個人情報の取り扱いについては、不動産会社に直接お問い合わせください。

    情報提供会社

    情報提供会社

    お部屋探しのコンシェルジュ (株)7LDK

    奈良県知事免許(3)第4121号

    交通:
    近鉄橿原線/大和八木駅 徒歩15分
    奈良県橿原市葛本町705-2 
    TEL:
    0744-29-7001
    FAX:
    0744-29-7002
    所属団体:
    (公社)奈良県宅地建物取引業協会会員
    (公社)近畿地区不動産公正取引協議会加盟

    取引態様:仲介

    • 会社情報
    • 50025849
    スマートフォンで
    この不動産会社を見る
    QRコード
    • お問い合わせ
    • 提携サイト等より掲載されている物件情報につきましては、不動産会社詳細情報にリンクされていないものがあります。
    • 物件に関するお問合せは、物件詳細ページの「情報提供会社」に表示されている不動産会社へ直接お願いいたします。
    • 間取図は、現況を優先させていただきます。
    • 映像は物件の一部を撮影したものです。物件の契約にあたっての最終判断はご自身の判断に基づいて行ってください。
    • 仲介手数料について仲介手数料

    アットホームは物件情報の適正化に努めております。 内容に誤りがある場合にはこちらへご連絡ください。


    物件画像: