賃貸や不動産はアットホーム-賃貸マンション・賃貸物件・不動産なら アットホーム

東京都新宿区新宿3丁目(新宿駅)の貸店舗:物件詳細

  • 物件詳細
  • 情報の見方
  • 印刷用画面
交通
所在地
駅徒歩 賃料
管理費等
敷金/保証金
礼金
使用部分面積
坪数/坪単価
物件種目
築年月

JR山手線/新宿 新着

東京都新宿区新宿3丁目

3分

42.88万円

58,687円

なし / 12ヶ月

1.1ヶ月

33.95m²

10.26坪/4.1754万円

貸店舗・事務所

2025年6月(新築)

おすすめコメント  スタッフ: 阿部 晋平

◆貸主と直接交渉!(物元)【重飲食・物販・サロン等相談】■入口3箇所有■新築■ワンフロア・ワンテナント●お隣はドン・キホーテ営業中、常に人通りの多い立地で集客が見込めます●スケルトンでの引き渡しです

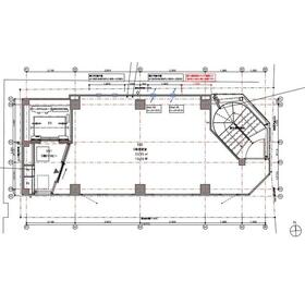
間取図

間取図

<
その他の画像
>
    • お問い合わせ
    交通

    JR山手線 新宿駅 徒歩3分

    その他の交通

    東京メトロ副都心線 新宿三丁目駅 徒歩1分

    東京メトロ丸ノ内線 新宿三丁目駅 徒歩1分

    所在地 東京都新宿区新宿3丁目
    物件種目 貸店舗・事務所
    賃料 42.88万円 管理費等 58,687円
    敷金 / 保証金 なし / 12ヶ月 礼金 1.1ヶ月
    敷引 坪単価 4.1754万円
    保証金償却 解約時20% 権利金
    造作譲渡 その他一時金
    維持費等 保険等
    使用部分面積 33.95m² 坪数 10.26坪
    築年月 2025年6月(新築) 階建 / 階 地上9階地下1階建 / 5階
    駐車場 バイク置き場
    駐輪場 土地面積
    接道状況 用途地域
    間取り 建物構造 RC
    アピールポイント ■物件名:F.U.Assets(エフ.ユー.アセッツ)
    ■住所:新宿区新宿3丁目35-17

    【重飲食・物販・サロン等相談】
    ■入口3箇所有
    ■新築
    ■ワンフロア・ワンテナント
    ●お隣はドン・キホーテ営業中、常に人通りの多い立地で集客が見込めます
    ●スケルトンでの引き渡しです

    F.U.Assets(エフ.ユー.アセッツ)のお問い合わせは、
    事業用不動産専門の株式会社エンジンテラスまで!
    ※お問い合わせの際は業種をご入力いただくとスムーズにご案内できます!
    ※現況と図面がに相違がある場合現況優先
    建物名・部屋番号 F.U.Assets(エフ.ユー.アセッツ) 5F
    リフォーム履歴
    リノベーション履歴
    特記事項 スケルトン、24時間利用可、飲食店可、1フロア1テナント、24時間セキュリティー
    備考
    賃貸保証等:加入要(フォーシーズ)
    管理形態/管理員の勤務形態:-/-
    ・スケルトン渡し
    ・エレベーター(2Fから)
    ・重飲食相談(ダクト設置可)
    ・1F案内板、袖看板は共益費に含む※作成費用は借主負担)
    ・ガス使用可能
    ・再契約手数料:新賃料1.5ヶ月
    ・テナント構成:B1募集中、1F焼肉、2F募集中、3F焼肉、4Fシンガポール料理、5F募集中、6Fネイル、7F8F美容室、9F事務所
    エネルギー消費性能
    断熱性能
    目安光熱費
    バス・トイレ
    キッチン
    設備・サービス 防犯カメラ
    その他 エレベーター
    契約期間 5年 条件等 定期借家定期借家
    引渡可能時期 即時 現況
    仲介手数料 1ヶ月    
    更新料 物件番号 6988787492
    情報公開日 2025年12月16日 次回更新予定日 2025年12月30日
    ケータイ用バーコード

    QRコード

    スマートフォンでこの物件を見る
    スマートフォンからもこの物件をご覧になれます。
    ※「-」と表示されている項目については、情報提供会社にご確認ください。

    この物件の周辺情報

    周辺施設 ムラサキスポーツ新宿南口店
    距離 14m
    周辺施設 セブンイレブン新宿3丁目店
    距離 16m
    周辺施設 K’s cinema
    距離 77m
    周辺施設 中華食堂日高屋新宿中央店
    距離 64m
    周辺施設 ドコモショップ新宿南口店
    距離 100m
    周辺施設 すき家新宿南店
    距離 87m
    周辺施設 ファミリーマート新宿三丁目中央通り店
    距離 77m
    周辺施設 BEAMS F新宿
    距離 143m

    クイックお問い合わせ

    ここから簡単にお問い合わせをすることができます。
    (SSLでの暗号化での送信を希望されるお客さまは こちら よりお問い合わせください)

    お問い合わせ内容(必須)
    物件のお問い合わせ理由(必須)
    お名前・ご担当者様名(必須) 姓  名 
    メールアドレス(必須)
    ※携帯電話のメールアドレスをご入力される方はこちらをご確認ください
    電話番号(必須)
    - -
    備考欄 希望条件、物件案内希望日、質問などがございましたらご記入ください。
    お問い合わせを行う前に「個人情報の取り扱いについて」を必ずお読みください。
    「個人情報の取り扱いについて」に同意いただいた場合は「上記にご同意の上 確認画面へ進む」のボタンをクリックしてください。

    個人情報の取り扱いについて

    皆さまが送付された個人情報はアットホーム(株)のサーバを経由し、お問い合わせ先の不動産会社にメールまたはFAXにて転送されるためアットホーム(株)にも保管されます。アットホーム(株)で保管された個人情報の取り扱いについては、【こちら】をご覧ください。
    また、本画面でご記入いただいた個人情報は、お問い合わせ先の不動産会社でも保管します。 お問い合わせ先の不動産会社が保管する個人情報の取り扱いについては、不動産会社に直接お問い合わせください。

    情報提供会社

    情報提供会社

    (株)エンジンテラス 新宿店

    東京都知事免許(3)第94555号

    交通:
    JR山手線/新宿駅 徒歩4分
    東京都渋谷区代々木2丁目15-12 クランツ南新宿203
    TEL:
    03-5302-1885
    FAX:
    03-5302-1886
    所属団体:
    (公社)全日本不動産協会会員
    (公社)首都圏不動産公正取引協議会加盟

    取引態様:仲介

    • 会社情報
    • 00107309
    スマートフォンで
    この不動産会社を見る
    QRコード
    • お問い合わせ
    • 提携サイト等より掲載されている物件情報につきましては、不動産会社詳細情報にリンクされていないものがあります。
    • 物件に関するお問合せは、物件詳細ページの「情報提供会社」に表示されている不動産会社へ直接お願いいたします。
    • 間取図は、現況を優先させていただきます。
    • 映像は物件の一部を撮影したものです。物件の契約にあたっての最終判断はご自身の判断に基づいて行ってください。
    • 仲介手数料について仲介手数料

    アットホームは物件情報の適正化に努めております。 内容に誤りがある場合にはこちらへご連絡ください。


    物件画像: