賃貸や不動産はアットホーム-賃貸マンション・賃貸物件・不動産なら アットホーム

愛知県長久手市喜婦嶽(杁ヶ池公園駅)の貸店舗:物件詳細

  • 物件詳細
  • 情報の見方
  • 印刷用画面
交通
所在地
駅徒歩 賃料
管理費等
敷金/保証金
礼金
使用部分面積
坪数/坪単価
物件種目
築年月

東部丘陵線/リニモ/杁ヶ池公園

愛知県長久手市喜婦嶽

6分

27.5万円

なし / 5ヶ月

1ヶ月

144.00m²

43.55坪/0.6314万円

貸店舗・事務所

1991年3月(築34年10ヶ月)

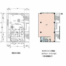
間取図

間取図

その他の画像
    • お問い合わせ
    交通

    東部丘陵線/リニモ 杁ヶ池公園駅 徒歩6分

    その他の交通

    東部丘陵線/リニモ 長久手古戦場駅 徒歩8分

    所在地 愛知県長久手市喜婦嶽
    物件種目 貸店舗・事務所
    賃料 27.5万円 管理費等
    敷金 / 保証金 なし / 5ヶ月 礼金 1ヶ月
    敷引 坪単価 0.6314万円
    保証金償却 解約時50% 権利金
    造作譲渡 その他一時金
    維持費等 保険等
    使用部分面積 144.00m² 坪数 43.55坪
    築年月 1991年3月(築34年10ヶ月) 階建 / 階 4階建 / 2階
    駐車場 有 9,900円/月(空き1台)
    その他、徒歩2分の駐車場(8,800円)数台契約可能。
    バイク置き場
    駐輪場 土地面積
    接道状況 用途地域
    間取り 建物構造 RC
    アピールポイント ☆内装工事もご相談ください☆
    弊社は内装工事・設計も請け負っておりますので、不動産取得から内装工事まで一貫してご対応できます。
    もちろん、不動産取得のみでもご対応可能です!
    内装・設計のご相談もお受けしながらご案内できますので、初めての出店等でもご安心してお任せください。
    ご希望の条件をお教えいただければ、インターネット非公開物件も含めてご提案します。まずはご気軽にお問合せください。
    建物名・部屋番号  
    リフォーム履歴
    リノベーション履歴
    特記事項 飲食店不可
    備考
    管理形態/管理員の勤務形態:-/-
    ◇保険要加入
    ◇保証会社利用必須
    ◇水道料金:5,500円(税込/月額)
    エネルギー消費性能
    断熱性能
    目安光熱費
    バス・トイレ トイレ
    キッチン
    設備・サービス
    その他
    契約期間 2年 条件等
    引渡可能時期 相談 現況 使用中
    更新料 物件番号 6988736817
    情報公開日 2025年12月12日 次回更新予定日 2025年12月26日
    ケータイ用バーコード

    QRコード

    スマートフォンでこの物件を見る
    スマートフォンからもこの物件をご覧になれます。
    ※「-」と表示されている項目については、情報提供会社にご確認ください。

    クイックお問い合わせ

    ここから簡単にお問い合わせをすることができます。
    (SSLでの暗号化での送信を希望されるお客さまは こちら よりお問い合わせください)

    お問い合わせ内容(必須)
    物件のお問い合わせ理由(必須)
    お名前・ご担当者様名(必須) 姓  名 
    メールアドレス(必須)
    ※携帯電話のメールアドレスをご入力される方はこちらをご確認ください
    電話番号(必須)
    - -
    備考欄 希望条件、物件案内希望日、質問などがございましたらご記入ください。
    お問い合わせを行う前に「個人情報の取り扱いについて」を必ずお読みください。
    「個人情報の取り扱いについて」に同意いただいた場合は「上記にご同意の上 確認画面へ進む」のボタンをクリックしてください。

    個人情報の取り扱いについて

    皆さまが送付された個人情報はアットホーム(株)のサーバを経由し、お問い合わせ先の不動産会社にメールまたはFAXにて転送されるためアットホーム(株)にも保管されます。アットホーム(株)で保管された個人情報の取り扱いについては、【こちら】をご覧ください。
    また、本画面でご記入いただいた個人情報は、お問い合わせ先の不動産会社でも保管します。 お問い合わせ先の不動産会社が保管する個人情報の取り扱いについては、不動産会社に直接お問い合わせください。

    情報提供会社

    情報提供会社

    (株)VELETA

    愛知県知事免許(3)第23005号

    交通:
    名古屋市東山線/栄駅 徒歩5分
    愛知県名古屋市東区東桜1丁目9-29 オアシス栄ビル4F
    TEL:
    052-950-3075
    FAX:
    052-950-3137
    所属団体:
    (公社)愛知県宅地建物取引業協会会員
    東海不動産公正取引協議会加盟

    取引態様:仲介

    • 会社情報
    • 40405185
    スマートフォンで
    この不動産会社を見る
    QRコード
    • お問い合わせ
    • 提携サイト等より掲載されている物件情報につきましては、不動産会社詳細情報にリンクされていないものがあります。
    • 物件に関するお問合せは、物件詳細ページの「情報提供会社」に表示されている不動産会社へ直接お願いいたします。
    • 間取図は、現況を優先させていただきます。
    • 映像は物件の一部を撮影したものです。物件の契約にあたっての最終判断はご自身の判断に基づいて行ってください。
    • 仲介手数料について仲介手数料

    アットホームは物件情報の適正化に努めております。 内容に誤りがある場合にはこちらへご連絡ください。


    物件画像: