賃貸や不動産はアットホーム-賃貸マンション・賃貸物件・不動産なら アットホーム

大阪府泉南郡岬町淡輪(淡輪駅)の貸店舗:物件詳細

  • 物件詳細
  • 情報の見方
  • 印刷用画面
交通
所在地
駅徒歩 賃料
管理費等
敷金/保証金
礼金
使用部分面積
坪数/坪単価
物件種目
築年月

南海本線/淡輪

大阪府泉南郡岬町淡輪

12分

8.36万円

4,400円

なし / なし

17.6万円

23.00m²

6.95坪/1.2016万円

貸店舗(建物一括)

1940年1月(築86年)

おすすめコメント

「海辺の隠れ家カフェ。漁港の潮風を感じる蔵リノベ空間」

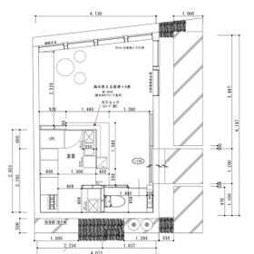
間取図

間取図

その他の画像
    • お問い合わせ
    交通

    南海本線 淡輪駅 徒歩12分

    その他の交通

    南海本線 みさき公園駅 徒歩21分

    所在地 大阪府泉南郡岬町淡輪
    物件種目 貸店舗(建物一括)
    賃料 8.36万円 管理費等 4,400円
    敷金 / 保証金 なし / なし 礼金 17.6万円
    敷引 坪単価 1.2016万円
    保証金償却 権利金
    造作譲渡 その他一時金
    維持費等 保険等 要 5年
    使用部分面積 23.00m² 坪数 6.95坪
    築年月 1940年1月(築86年) 階建 / 階 1階建
    駐車場 バイク置き場
    駐輪場 土地面積 247.94m²(実測)
    接道状況 西 3.2m 公道 接面11.0m ・ 北 2.4m 公道 接面21.0m ・ 二方道路 用途地域 1種住居
    間取り 建物構造 木造
    アピールポイント 港を望む静かなリノベ蔵カフェ。淡輪駅徒歩9分、75坪の土地と23㎡の建物で釣り人やドライブ客の休憩に最適!潮風を感じながらゆったり過ごせる非日常空間。
    建物名・部屋番号  
    リフォーム履歴 ■水回り:2023年12月
    キッチン、トイレ、給排水管、給湯器
    ■内装:2023年12月
    壁・天井(クロス・塗装等)
    蔵をCafeにリフォーム
    ※実施年月は最も古い履歴を表示
    リノベーション履歴
    特記事項 居抜き、飲食店可、駐車場3台分以上、天井高2.5M以上、IT重説対応物件
    備考
    管理形態/管理員の勤務形態:-/-
    IT重説対応物件
    エネルギー消費性能
    断熱性能
    目安光熱費
    バス・トイレ
    キッチン
    設備・サービス
    その他
    契約期間 2030年12月31日まで 条件等 定期借家定期借家
    引渡可能時期 即時 現況
    仲介手数料 1ヶ月    
    更新料 物件番号 6988731016
    情報公開日 2025年12月12日 次回更新予定日 2025年12月26日
    ケータイ用バーコード

    QRコード

    スマートフォンでこの物件を見る
    スマートフォンからもこの物件をご覧になれます。
    ※「-」と表示されている項目については、情報提供会社にご確認ください。

    この物件の周辺情報

    周辺施設 ウエルシア岬淡輪店
    距離 1251m
    周辺施設 コスモ石油セルフステーションミサキパーク
    距離 1274m
    周辺施設 岬町立淡輪小学校
    距離 877m
    周辺施設 船守神社
    距離 550m
    周辺施設 淡輪ヨットハーバー
    距離 739m
    周辺施設 大阪府立青少年海洋センター総合ホール
    距離 1190m
    周辺施設 せんなん里海公園第一駐車場
    距離 2453m
    周辺施設 大阪ゴルフクラブ駐車場1
    距離 2312m

    クイックお問い合わせ

    ここから簡単にお問い合わせをすることができます。
    (SSLでの暗号化での送信を希望されるお客さまは こちら よりお問い合わせください)

    お問い合わせ内容(必須)
    物件のお問い合わせ理由(必須)
    お名前・ご担当者様名(必須) 姓  名 
    メールアドレス(必須)
    ※携帯電話のメールアドレスをご入力される方はこちらをご確認ください
    電話番号(必須)
    - -
    備考欄 希望条件、物件案内希望日、質問などがございましたらご記入ください。
    お問い合わせを行う前に「個人情報の取り扱いについて」を必ずお読みください。
    「個人情報の取り扱いについて」に同意いただいた場合は「上記にご同意の上 確認画面へ進む」のボタンをクリックしてください。

    個人情報の取り扱いについて

    皆さまが送付された個人情報はアットホーム(株)のサーバを経由し、お問い合わせ先の不動産会社にメールまたはFAXにて転送されるためアットホーム(株)にも保管されます。アットホーム(株)で保管された個人情報の取り扱いについては、【こちら】をご覧ください。
    また、本画面でご記入いただいた個人情報は、お問い合わせ先の不動産会社でも保管します。 お問い合わせ先の不動産会社が保管する個人情報の取り扱いについては、不動産会社に直接お問い合わせください。

    情報提供会社

    情報提供会社

    (株)長谷川

    大阪府知事免許(4)第53131号

    交通:
    南海本線/泉佐野駅 徒歩10分
    大阪府泉佐野市市場東2丁目13-33 
    TEL:
    072-462-3345
    FAX:
    072-462-3308
    所属団体:
    (一社)大阪府宅地建物取引業協会会員
    (公社)近畿地区不動産公正取引協議会加盟

    取引態様:仲介

    • 会社情報
    • 50022195
    スマートフォンで
    この不動産会社を見る
    QRコード
    • お問い合わせ
    • 提携サイト等より掲載されている物件情報につきましては、不動産会社詳細情報にリンクされていないものがあります。
    • 物件に関するお問合せは、物件詳細ページの「情報提供会社」に表示されている不動産会社へ直接お願いいたします。
    • 間取図は、現況を優先させていただきます。
    • 映像は物件の一部を撮影したものです。物件の契約にあたっての最終判断はご自身の判断に基づいて行ってください。
    • 仲介手数料について仲介手数料

    アットホームは物件情報の適正化に努めております。 内容に誤りがある場合にはこちらへご連絡ください。


    物件画像: