賃貸や不動産はアットホーム-賃貸マンション・賃貸物件・不動産なら アットホーム

神奈川県横浜市港南区港南台3丁目(港南台駅)の貸店舗:物件詳細

  • 物件詳細
  • 情報の見方
  • 印刷用画面
交通
所在地
駅徒歩 賃料
管理費等
敷金/保証金
礼金
使用部分面積
坪数/坪単価
物件種目
築年月

JR根岸線/港南台

神奈川県横浜市港南区港南台3丁目

10分

25.3万円

なし / 4ヶ月

1ヶ月

181.00m²

54.75坪/0.4621万円

貸店舗

1981年4月(築44年9ヶ月)

おすすめコメント

JR根岸線「港南台」から徒歩10分!スケルトンの物件になります。飲食店もご相談可能です♪バイク置き場・駐輪場あります♪181㎡と広々としたテナントとなっております♪お問い合わせお待ちしております!

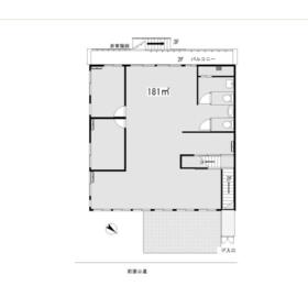
間取図

間取図

181㎡(54.75坪)スケルトン

こちらの2階部分になります。

その他の画像
    • お問い合わせ
    交通

    JR根岸線 港南台駅 徒歩10分

    その他の交通

    JR京浜東北線 港南台駅 徒歩10分

    JR根岸線 洋光台駅 徒歩27分

    所在地 神奈川県横浜市港南区港南台3丁目
    物件種目 貸店舗
    賃料 25.3万円 管理費等
    敷金 / 保証金 なし / 4ヶ月 礼金 1ヶ月
    敷引 坪単価 0.4621万円
    保証金償却 解約時2ヶ月 権利金
    造作譲渡 その他一時金
    維持費等 保険等
    使用部分面積 181.00m² 坪数 54.75坪
    築年月 1981年4月(築44年9ヶ月) 階建 / 階 3階建 / 2階
    駐車場 有 18,700円/月 バイク置き場
    駐輪場 土地面積
    接道状況 東 9.0m 公道 用途地域 2種中高
    間取り ワンルーム 建物構造 鉄骨造
    アピールポイント JR根岸線「港南台」から徒歩10分!スケルトンの物件になります。飲食店もご相談可能です♪バイク置き場・駐輪場あります♪181㎡と広々としたテナントとなっております♪お問い合わせお待ちしております!
    建物名・部屋番号  
    リフォーム履歴
    リノベーション履歴
    特記事項 スケルトン、土曜日利用可、土日・祝日利用可、飲食店可、1フロア1テナント、IT重説対応物件、保証人不要
    備考
    管理形態/管理員の勤務形態:-/-
    主要採光面:東向き
    IT重説対応物件
    エレベーター無し
    保証会社加入要 駆けつけ365加入要 火災保険加入要
    更新時事務手数料30.000+税
    賃貸保証:加入要1ヶ月他相談可能
    駐輪場,バイク置き場,飲食店可
    エネルギー消費性能
    断熱性能
    目安光熱費
    バス・トイレ トイレ2ヶ所
    キッチン
    設備・サービス 給湯
    その他
    契約期間 2年 条件等
    引渡可能時期 即時 現況
    更新料 新賃料 1ヶ月 物件番号 6988726554
    情報公開日 2025年12月11日 次回更新予定日 2025年12月25日
    ケータイ用バーコード

    QRコード

    スマートフォンでこの物件を見る
    スマートフォンからもこの物件をご覧になれます。
    ※「-」と表示されている項目については、情報提供会社にご確認ください。

    クイックお問い合わせ

    ここから簡単にお問い合わせをすることができます。
    (SSLでの暗号化での送信を希望されるお客さまは こちら よりお問い合わせください)

    お問い合わせ内容(必須)
    物件のお問い合わせ理由(必須)
    お名前・ご担当者様名(必須) 姓  名 
    メールアドレス(必須)
    ※携帯電話のメールアドレスをご入力される方はこちらをご確認ください
    電話番号(必須)
    - -
    備考欄 希望条件、物件案内希望日、質問などがございましたらご記入ください。
    お問い合わせを行う前に「個人情報の取り扱いについて」を必ずお読みください。
    「個人情報の取り扱いについて」に同意いただいた場合は「上記にご同意の上 確認画面へ進む」のボタンをクリックしてください。

    個人情報の取り扱いについて

    皆さまが送付された個人情報はアットホーム(株)のサーバを経由し、お問い合わせ先の不動産会社にメールまたはFAXにて転送されるためアットホーム(株)にも保管されます。アットホーム(株)で保管された個人情報の取り扱いについては、【こちら】をご覧ください。
    また、本画面でご記入いただいた個人情報は、お問い合わせ先の不動産会社でも保管します。 お問い合わせ先の不動産会社が保管する個人情報の取り扱いについては、不動産会社に直接お問い合わせください。

    情報提供会社

    情報提供会社

    (株)HYプランニング

    神奈川県知事免許(1)第32524号

    交通:
    JR根岸線/石川町駅 徒歩8分 【バス】2分 横浜スタジアム前 停歩7分
    神奈川県横浜市中区山下町200-12 永光ビル1階
    TEL:
    045-211-4072
    所属団体:
    (公社)神奈川県宅地建物取引業協会会員
    (公社)首都圏不動産公正取引協議会加盟

    取引態様:仲介

    • 会社情報
    • 00278662
    スマートフォンで
    この不動産会社を見る
    QRコード
    • お問い合わせ
    • 提携サイト等より掲載されている物件情報につきましては、不動産会社詳細情報にリンクされていないものがあります。
    • 物件に関するお問合せは、物件詳細ページの「情報提供会社」に表示されている不動産会社へ直接お願いいたします。
    • 間取図は、現況を優先させていただきます。
    • 映像は物件の一部を撮影したものです。物件の契約にあたっての最終判断はご自身の判断に基づいて行ってください。
    • 仲介手数料について仲介手数料

    アットホームは物件情報の適正化に努めております。 内容に誤りがある場合にはこちらへご連絡ください。


    物件画像: