賃貸や不動産はアットホーム-賃貸マンション・賃貸物件・不動産なら アットホーム

神奈川県相模原市南区松が枝町(小田急相模原駅)の貸店舗:物件詳細

  • 物件詳細
  • 情報の見方
  • 印刷用画面
交通
所在地
駅徒歩 賃料
管理費等
敷金/保証金
礼金
使用部分面積
坪数/坪単価
物件種目
築年月

小田急小田原線/小田急相模原 新着

神奈川県相模原市南区松が枝町

3分

49.5万円

なし / 10ヶ月

1ヶ月

78.67m²

23.79坪/2.0801万円

貸店舗

1983年12月(築42年1ヶ月)

おすすめコメント

■■オススメポイント!■■①飲食店可能(重飲食も可) ②小田急相模原、商店街に面する角ビル ③1F路面店 ④物件の奥にイトーヨーカドーあり集客力が期待できます。

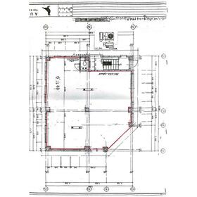
間取図

間取図

その他の画像
    • お問い合わせ
    交通

    小田急小田原線 小田急相模原駅 徒歩3分

    その他の交通

    小田急江ノ島線 東林間駅 徒歩20分

    所在地 神奈川県相模原市南区松が枝町
    物件種目 貸店舗
    賃料 49.5万円 管理費等
    敷金 / 保証金 なし / 10ヶ月 礼金 1ヶ月
    敷引 坪単価 2.0801万円
    保証金償却 解約時2ヶ月 権利金
    造作譲渡 その他一時金
    維持費等 保険等
    使用部分面積 78.67m² 坪数 23.79坪
    築年月 1983年12月(築42年1ヶ月) 階建 / 階 4階建 / 1階
    駐車場 バイク置き場
    駐輪場 土地面積
    接道状況 用途地域
    間取り 建物構造 RC
    アピールポイント 飲食店の居抜き相談可能です!
    建物名・部屋番号  
    リフォーム履歴
    リノベーション履歴
    特記事項 飲食店可
    備考
    管理形態/管理員の勤務形態:-/-
    ※賃料保証会社加入必要
    ※図面と相違ある場合は現状を優先
    ※飲食店の場合は消臭対策必要
    エネルギー消費性能
    断熱性能
    目安光熱費
    バス・トイレ
    キッチン
    設備・サービス 看板取付スペースあり
    その他
    契約期間 3年 条件等
    引渡可能時期 相談 現況 居住中
    仲介手数料 1ヶ月 適格請求書発行 不可
    更新料 新賃料 1ヶ月 物件番号 6988707586
    情報公開日 2025年12月18日 次回更新予定日 2026年1月1日
    ケータイ用バーコード

    QRコード

    スマートフォンでこの物件を見る
    スマートフォンからもこの物件をご覧になれます。
    ※「-」と表示されている項目については、情報提供会社にご確認ください。

    この物件の周辺情報

    周辺施設 イトーヨーカドー相模原店
    距離 124m
    周辺施設 ローソンストア100小田急相模原店
    距離 229m
    周辺施設 松屋小田急相模原店
    距離 34m
    周辺施設 キッチンオリジン小田急相模原店
    距離 34m
    周辺施設 天丼てんや小田急相模原店
    距離 30m
    周辺施設 スギ薬局小田急相模原店
    距離 14m
    周辺施設 私立東海大学付属相模高校
    距離 632m
    周辺施設 FASTGYM24小田急相模原店
    距離 473m

    クイックお問い合わせ

    ここから簡単にお問い合わせをすることができます。
    (SSLでの暗号化での送信を希望されるお客さまは こちら よりお問い合わせください)

    お問い合わせ内容(必須)
    物件のお問い合わせ理由(必須)
    お名前・ご担当者様名(必須) 姓  名 
    メールアドレス(必須)
    ※携帯電話のメールアドレスをご入力される方はこちらをご確認ください
    電話番号(必須)
    - -
    備考欄 希望条件、物件案内希望日、質問などがございましたらご記入ください。
    お問い合わせを行う前に「個人情報の取り扱いについて」を必ずお読みください。
    「個人情報の取り扱いについて」に同意いただいた場合は「上記にご同意の上 確認画面へ進む」のボタンをクリックしてください。

    個人情報の取り扱いについて

    皆さまが送付された個人情報はアットホーム(株)のサーバを経由し、お問い合わせ先の不動産会社にメールまたはFAXにて転送されるためアットホーム(株)にも保管されます。アットホーム(株)で保管された個人情報の取り扱いについては、【こちら】をご覧ください。
    また、本画面でご記入いただいた個人情報は、お問い合わせ先の不動産会社でも保管します。 お問い合わせ先の不動産会社が保管する個人情報の取り扱いについては、不動産会社に直接お問い合わせください。

    情報提供会社

    情報提供会社

    (株)ファインド

    東京都知事免許(1)第108880号

    交通:
    JR山手線/新宿駅 徒歩8分
    東京都渋谷区代々木2丁目23-1 ニューステイトメナー823
    TEL:
    03-6276-0531
    FAX:
    03-6276-0532
    所属団体:
    (公社)全日本不動産協会会員
    (公社)首都圏不動産公正取引協議会加盟

    取引態様:仲介

    • 会社情報
    • 00276805
    スマートフォンで
    この不動産会社を見る
    QRコード
    • お問い合わせ
    • 提携サイト等より掲載されている物件情報につきましては、不動産会社詳細情報にリンクされていないものがあります。
    • 物件に関するお問合せは、物件詳細ページの「情報提供会社」に表示されている不動産会社へ直接お願いいたします。
    • 間取図は、現況を優先させていただきます。
    • 映像は物件の一部を撮影したものです。物件の契約にあたっての最終判断はご自身の判断に基づいて行ってください。
    • 仲介手数料について仲介手数料

    アットホームは物件情報の適正化に努めております。 内容に誤りがある場合にはこちらへご連絡ください。


    物件画像: