賃貸や不動産はアットホーム-賃貸マンション・賃貸物件・不動産なら アットホーム

宮崎県宮崎市江平東1丁目(宮崎駅)の貸店舗:物件詳細

  • 物件詳細
  • 情報の見方
  • 印刷用画面
交通
所在地
駅徒歩 賃料
管理費等
敷金/保証金
礼金
使用部分面積
坪数/坪単価
物件種目
築年月

JR日豊本線/宮崎
[バス利用可] バス 西権現 停歩1分

宮崎県宮崎市江平東1丁目

21分

22万円

1ヶ月 / なし

なし

194.22m²

58.75坪/0.3745万円

貸店舗・事務所(一括)

1989年11月(築36年6ヶ月)

おすすめコメント

近隣商業エリアの人口密集地に立地しています。集客効果が期待できます!

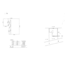
間取図

間取図

外観

外観

<
その他の画像
  • 外観
  • 外観
  • 室内
  • 室内
  • 室内
  • 室内
  • 室内
  • 室内
  • キッチン
  • トイレ
  • 洗面
>
    • お問い合わせ
    交通

    JR日豊本線 宮崎駅 徒歩21分
    [バス利用可] バス 西権現 停歩1分

    所在地 宮崎県宮崎市江平東1丁目
    物件種目 貸店舗・事務所(一括)
    賃料 22万円 管理費等
    敷金 / 保証金 1ヶ月 / なし 礼金 なし
    敷引 坪単価 0.3745万円
    保証金償却 権利金
    造作譲渡 その他一時金
    維持費等 保険等
    使用部分面積 194.22m² 坪数 58.75坪
    築年月 1989年11月(築36年6ヶ月) 階建 / 階 2階建 / 1階
    駐車場 バイク置き場
    駐輪場 土地面積 430.77m²(公簿)
    接道状況 南 7.4m 公道 用途地域 近隣商業
    間取り 建物構造 鉄骨造
    アピールポイント 約60坪の店舗・事務所です。近隣商業地域ですので用途制限は比較的緩いです。駐車場も店舗前と横へゆったり駐車できます。前面道路は約7.1m、交通量も多いので看板効果はあります。この広さと駐車場の台数の店舗・事務所はなかなか出ないです。お早めにご検討ください。飲食もご相談ください。
    建物名・部屋番号 江平東1丁目
    リフォーム履歴
    リノベーション履歴
    特記事項 駐車場3台分以上
    備考
    賃貸保証等:加入要(賃料100%)
    管理形態/管理員の勤務形態:-/-
    エネルギー消費性能
    断熱性能
    目安光熱費
    バス・トイレ トイレ
    キッチン
    設備・サービス 看板取付スペースあり、シャッター付き
    その他
    契約期間 2年 条件等
    引渡可能時期 相談 現況 居住中
    更新料 なし 物件番号 6988705458
    情報公開日 2025年12月9日 次回更新予定日 2026年4月16日
    ケータイ用バーコード

    QRコード

    スマートフォンでこの物件を見る
    スマートフォンからもこの物件をご覧になれます。
    ※「-」と表示されている項目については、情報提供会社にご確認ください。

    クイックお問い合わせ

    ここから簡単にお問い合わせをすることができます。
    (SSLでの暗号化での送信を希望されるお客さまは こちら よりお問い合わせください)

    お問い合わせ内容(必須)
    物件のお問い合わせ理由(必須)
    お名前・ご担当者様名(必須) 姓  名 
    メールアドレス(必須)
    ※携帯電話のメールアドレスをご入力される方はこちらをご確認ください
    電話番号(必須)
    - -
    備考欄 希望条件、物件案内希望日、質問などがございましたらご記入ください。
    お問い合わせを行う前に「個人情報の取り扱いについて」を必ずお読みください。
    「個人情報の取り扱いについて」に同意いただいた場合は「上記にご同意の上 確認画面へ進む」のボタンをクリックしてください。

    個人情報の取り扱いについて

    皆さまが送付された個人情報はアットホーム(株)のサーバを経由し、お問い合わせ先の不動産会社にメールまたはFAXにて転送されるためアットホーム(株)にも保管されます。アットホーム(株)で保管された個人情報の取り扱いについては、【こちら】をご覧ください。
    また、本画面でご記入いただいた個人情報は、お問い合わせ先の不動産会社でも保管します。 お問い合わせ先の不動産会社が保管する個人情報の取り扱いについては、不動産会社に直接お問い合わせください。

    情報提供会社

    情報提供会社

    常盤住宅サービス(株)

    宮崎県知事免許(12)第2755号

    交通:
    JR日豊本線/宮崎神宮駅
    宮崎県宮崎市南花ケ島町336-1 第7常盤ビル1F西
    TEL:
    0985-29-7777
    FAX:
    0985-22-0702
    所属団体:
    (公社)全日本不動産協会会員
    (一社)九州不動産公正取引協議会加盟

    取引態様:仲介

    • 会社情報
    • 80507025
    スマートフォンで
    この不動産会社を見る
    QRコード
    • お問い合わせ
    • 提携サイト等より掲載されている物件情報につきましては、不動産会社詳細情報にリンクされていないものがあります。
    • 物件に関するお問合せは、物件詳細ページの「情報提供会社」に表示されている不動産会社へ直接お願いいたします。
    • 間取図は、現況を優先させていただきます。
    • 映像は物件の一部を撮影したものです。物件の契約にあたっての最終判断はご自身の判断に基づいて行ってください。
    • 仲介手数料について仲介手数料

    アットホームは物件情報の適正化に努めております。 内容に誤りがある場合にはこちらへご連絡ください。


    物件画像: