賃貸や不動産はアットホーム-賃貸マンション・賃貸物件・不動産なら アットホーム

富山県富山市開(東新庄駅)の貸店舗:物件詳細

  • 物件詳細
  • 情報の見方
  • 印刷用画面
交通
所在地
駅徒歩 賃料
管理費等
敷金/保証金
礼金
使用部分面積
坪数/坪単価
物件種目
築年月

富山地鉄本線/東新庄 新着

富山県富山市開

29分

30万円

1ヶ月 / なし

なし

113.75m²

34.40坪/0.8719万円

貸店舗(建物一括)

2010年8月(築15年5ヶ月)

おすすめコメント

視認性がよく立地的にも良い!前店舗は飲食店ですが業種は問いません。詳細は相談に応じます!

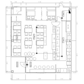
間取図

間取図

外観

外観

視認性のよい立地

その他の画像
  • 室内
  • 室内
  • 室内
  • 室内
  • キッチン
  • キッチン
  • トイレ
  • 収納
    • お問い合わせ
    交通

    富山地鉄本線 東新庄駅 徒歩29分

    所在地 富山県富山市開
    物件種目 貸店舗(建物一括)
    賃料 30万円 管理費等
    敷金 / 保証金 1ヶ月 / なし 礼金 なし
    敷引 坪単価 0.8719万円
    保証金償却 権利金
    造作譲渡 その他一時金
    維持費等 保険等 要 2年 火災
    使用部分面積 113.75m² 坪数 34.40坪
    築年月 2010年8月(築15年5ヶ月) 階建 / 階 1階建
    駐車場 バイク置き場
    駐輪場 土地面積
    接道状況 南 25.0m 公道 接面17.5m ・ 北東 6.4m 公道 接面24.1m 用途地域
    間取り 建物構造 鉄骨造
    アピールポイント 視認性がよい!
    飲食店ならすぐに営業可!
    業種にこだわらず相談に応じます。
    建物名・部屋番号 開町貸店舗
    リフォーム履歴
    リノベーション履歴
    特記事項 飲食店可、駐車場3台分以上
    備考
    管理形態/管理員の勤務形態:-/-
    エネルギー消費性能
    断熱性能
    目安光熱費
    バス・トイレ 多機能トイレ
    キッチン
    設備・サービス 収納スペース、冷蔵庫、給湯、都市ガス、プロパンガス、ビルトインエアコン
    その他
    契約期間 2年 条件等
    引渡可能時期 相談 現況
    仲介手数料 1ヶ月    
    更新料 物件番号 6988702165
    情報公開日 2025年12月20日 次回更新予定日 2026年1月3日
    ケータイ用バーコード

    QRコード

    スマートフォンでこの物件を見る
    スマートフォンからもこの物件をご覧になれます。
    ※「-」と表示されている項目については、情報提供会社にご確認ください。

    クイックお問い合わせ

    ここから簡単にお問い合わせをすることができます。
    (SSLでの暗号化での送信を希望されるお客さまは こちら よりお問い合わせください)

    お問い合わせ内容(必須)
    物件のお問い合わせ理由(必須)
    お名前・ご担当者様名(必須) 姓  名 
    メールアドレス(必須)
    ※携帯電話のメールアドレスをご入力される方はこちらをご確認ください
    電話番号(必須)
    - -
    備考欄 希望条件、物件案内希望日、質問などがございましたらご記入ください。
    お問い合わせを行う前に「個人情報の取り扱いについて」を必ずお読みください。
    「個人情報の取り扱いについて」に同意いただいた場合は「上記にご同意の上 確認画面へ進む」のボタンをクリックしてください。

    個人情報の取り扱いについて

    皆さまが送付された個人情報はアットホーム(株)のサーバを経由し、お問い合わせ先の不動産会社にメールまたはFAXにて転送されるためアットホーム(株)にも保管されます。アットホーム(株)で保管された個人情報の取り扱いについては、【こちら】をご覧ください。
    また、本画面でご記入いただいた個人情報は、お問い合わせ先の不動産会社でも保管します。 お問い合わせ先の不動産会社が保管する個人情報の取り扱いについては、不動産会社に直接お問い合わせください。

    情報提供会社

    情報提供会社

    アイ・ハウス(株)

    富山県知事免許(4)第2867号

    交通:
    【バス】 西中野口 停歩1分
    富山県富山市西中野町1丁目8番1 
    TEL:
    0120-183-189
    FAX:
    076-464-3171
    所属団体:
    (公社)全日本不動産協会会員
    北陸不動産公正取引協議会加盟

    取引態様:仲介

    • 会社情報
    • 40402354
    スマートフォンで
    この不動産会社を見る
    QRコード
    • お問い合わせ
    • 提携サイト等より掲載されている物件情報につきましては、不動産会社詳細情報にリンクされていないものがあります。
    • 物件に関するお問合せは、物件詳細ページの「情報提供会社」に表示されている不動産会社へ直接お願いいたします。
    • 間取図は、現況を優先させていただきます。
    • 映像は物件の一部を撮影したものです。物件の契約にあたっての最終判断はご自身の判断に基づいて行ってください。
    • 仲介手数料について仲介手数料

    アットホームは物件情報の適正化に努めております。 内容に誤りがある場合にはこちらへご連絡ください。


    物件画像: