賃貸や不動産はアットホーム-賃貸マンション・賃貸物件・不動産なら アットホーム

岡山県岡山市北区問屋町(北長瀬駅)の貸店舗:物件詳細

  • 物件詳細
  • 情報の見方
  • 印刷用画面
交通
所在地
駅徒歩 賃料
管理費等
敷金/保証金
礼金
使用部分面積
坪数/坪単価
物件種目
築年月

JR山陽本線/北長瀬

岡山県岡山市北区問屋町

20分

22万円

なし

4ヶ月 / なし

1ヶ月

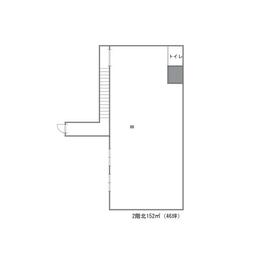
152.00m²

45.97坪/0.4785万円

貸店舗

1963年7月(築62年6ヶ月)

おすすめコメント

問屋町内にある事務所物件♪2Fですが1Fに入口があります。北側エントランスについては貸主にてシャッターから扉へ変更します。

その他の画像
    • お問い合わせ
    交通

    JR山陽本線 北長瀬駅 徒歩20分

    所在地 岡山県岡山市北区問屋町
    物件種目 貸店舗
    賃料 22万円 管理費等 なし
    敷金 / 保証金 4ヶ月 / なし 礼金 1ヶ月
    敷引 坪単価 0.4785万円
    保証金償却 権利金
    造作譲渡 その他一時金
    維持費等 保険等
    使用部分面積 152.00m² 坪数 45.97坪
    築年月 1963年7月(築62年6ヶ月) 階建 / 階 2階建 / 2階
    駐車場 有 7,150円/月(空き1台)
    2台まで確保可能。
    バイク置き場
    駐輪場 土地面積
    接道状況 用途地域 商業地域
    間取り 建物構造 RC
    建物名・部屋番号 大武商事ビル2階北
    リフォーム履歴
    リノベーション履歴
    特記事項 飲食店不可、最上階
    備考
    管理形態/管理員の勤務形態:-/-
    照明器具、トイレ
    ※現状渡し(業種により消防の規制がかかる可能性あります。)
    駐車場2台まで可能
    エネルギー消費性能
    断熱性能
    目安光熱費
    バス・トイレ トイレ
    キッチン
    設備・サービス
    その他
    契約期間 2年 条件等
    引渡可能時期 2026年2月上旬予定 現況 居住中
    更新料 物件番号 6988695476
    情報公開日 2025年12月9日 次回更新予定日 2025年12月23日
    ケータイ用バーコード

    QRコード

    スマートフォンでこの物件を見る
    スマートフォンからもこの物件をご覧になれます。
    ※「-」と表示されている項目については、情報提供会社にご確認ください。

    この物件の周辺情報

    周辺施設 セブンイレブン
    距離 230m
    周辺施設 ハピーズ
    距離 450m
    周辺施設 中国銀行
    距離 300m
    周辺施設 スターバックス
    距離 400m

    クイックお問い合わせ

    ここから簡単にお問い合わせをすることができます。
    (SSLでの暗号化での送信を希望されるお客さまは こちら よりお問い合わせください)

    お問い合わせ内容(必須)
    物件のお問い合わせ理由(必須)
    お名前・ご担当者様名(必須) 姓  名 
    メールアドレス(必須)
    ※携帯電話のメールアドレスをご入力される方はこちらをご確認ください
    電話番号(必須)
    - -
    備考欄 希望条件、物件案内希望日、質問などがございましたらご記入ください。
    お問い合わせを行う前に「個人情報の取り扱いについて」を必ずお読みください。
    「個人情報の取り扱いについて」に同意いただいた場合は「上記にご同意の上 確認画面へ進む」のボタンをクリックしてください。

    個人情報の取り扱いについて

    皆さまが送付された個人情報はアットホーム(株)のサーバを経由し、お問い合わせ先の不動産会社にメールまたはFAXにて転送されるためアットホーム(株)にも保管されます。アットホーム(株)で保管された個人情報の取り扱いについては、【こちら】をご覧ください。
    また、本画面でご記入いただいた個人情報は、お問い合わせ先の不動産会社でも保管します。 お問い合わせ先の不動産会社が保管する個人情報の取り扱いについては、不動産会社に直接お問い合わせください。

    情報提供会社

    情報提供会社

    テナントストア おうち家マネージメント(株)

    岡山県知事免許(3)第5547号

    交通:
    JR山陽本線/北長瀬駅 徒歩15分
    岡山県岡山市北区中仙道55-125-2F 
    TEL:
    086-246-2049
    FAX:
    086-239-3313
    所属団体:
    (公社)岡山県宅地建物取引業協会会員
    中国地区不動産公正取引協議会加盟

    取引態様:仲介

    • 会社情報
    • 50026792
    スマートフォンで
    この不動産会社を見る
    QRコード
    • お問い合わせ
    • 提携サイト等より掲載されている物件情報につきましては、不動産会社詳細情報にリンクされていないものがあります。
    • 物件に関するお問合せは、物件詳細ページの「情報提供会社」に表示されている不動産会社へ直接お願いいたします。
    • 間取図は、現況を優先させていただきます。
    • 映像は物件の一部を撮影したものです。物件の契約にあたっての最終判断はご自身の判断に基づいて行ってください。
    • 仲介手数料について仲介手数料

    アットホームは物件情報の適正化に努めております。 内容に誤りがある場合にはこちらへご連絡ください。


    物件画像: