賃貸や不動産はアットホーム-賃貸マンション・賃貸物件・不動産なら アットホーム

愛媛県松山市清水町1丁目(清水町駅)の貸店舗:物件詳細

  • 物件詳細
  • 情報の見方
  • 印刷用画面
交通
所在地
駅徒歩 賃料
管理費等
敷金/保証金
礼金
使用部分面積
坪数/坪単価
物件種目
築年月

伊予鉄道環状線/清水町

愛媛県松山市清水町1丁目

3分

6.05万円

なし

2ヶ月 / なし

2ヶ月

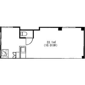
33.10m²

10.01坪/0.6043万円

貸店舗・事務所

1994年7月(築31年10ヶ月)

おすすめコメント  スタッフ: 尾上

1階お手頃お家賃のテナントです。事務所等にいかがでしょうか。トイレは洋式でエアコン2基付です。

間取図

間取図

<
その他の画像
>
    • お問い合わせ
    交通

    伊予鉄道環状線 清水町駅 徒歩3分

    その他の交通

    伊予鉄道環状線 高砂町駅 徒歩6分

    伊予鉄道本町線 本町四丁目駅 徒歩7分

    所在地 愛媛県松山市清水町1丁目
    物件種目 貸店舗・事務所
    賃料 6.05万円 管理費等 なし
    敷金 / 保証金 2ヶ月 / なし 礼金 2ヶ月
    敷引 坪単価 0.6043万円
    保証金償却 権利金
    造作譲渡 その他一時金
    維持費等 保険等
    使用部分面積 33.10m² 坪数 10.01坪
    築年月 1994年7月(築31年10ヶ月) 階建 / 階 5階建 / 1階
    駐車場 バイク置き場
    駐輪場 土地面積
    接道状況 用途地域 近隣商業
    間取り 建物構造 RC
    アピールポイント 1階お手頃お家賃のテナントです。事務所等にいかがでしょうか。トイレは洋式でエアコン2基付です。
    建物名・部屋番号 ドゥマンクレール 1階
    リフォーム履歴
    リノベーション履歴
    特記事項 飲食店不可、1フロア1テナント、角部屋
    備考
    賃貸保証等:加入要(保証会社加入必要:(初回)賃料の100%・更新料:有り)
    管理形態/管理員の勤務形態:-/-
    ・トイレ洋式 1つ
    ・エアコン2基付き
    ・ミニキッチン有り
    ・靴箱有り
    エネルギー消費性能
    断熱性能
    目安光熱費
    バス・トイレ 専有部分にトイレあり
    キッチン
    設備・サービス エアコン2台以上
    その他
    契約期間 2年 条件等
    引渡可能時期 相談 現況
    仲介手数料 1ヶ月    
    更新料 物件番号 6988689785
    情報公開日 2025年12月8日 次回更新予定日 2026年4月16日
    ケータイ用バーコード

    QRコード

    スマートフォンでこの物件を見る
    スマートフォンからもこの物件をご覧になれます。
    ※「-」と表示されている項目については、情報提供会社にご確認ください。

    この物件の周辺情報

    周辺施設 スーパー日東高砂店
    距離 517m
    周辺施設 マルナカ若草店
    距離 612m
    周辺施設 フジ本町店
    距離 746m
    周辺施設 セブンイレブン松山清水町1丁目店
    距離 138m
    周辺施設 ファミリーマート松山平和通五丁目店
    距離 236m
    周辺施設 ほっともっと松山清水町店
    距離 700m
    周辺施設 コメダ珈琲店松山道後店
    距離 1114m
    周辺施設 くすりのレデイ平和通り店
    距離 213m

    クイックお問い合わせ

    ここから簡単にお問い合わせをすることができます。
    (SSLでの暗号化での送信を希望されるお客さまは こちら よりお問い合わせください)

    お問い合わせ内容(必須)
    物件のお問い合わせ理由(必須)
    お名前・ご担当者様名(必須) 姓  名 
    メールアドレス(必須)
    ※携帯電話のメールアドレスをご入力される方はこちらをご確認ください
    電話番号(必須)
    - -
    備考欄 希望条件、物件案内希望日、質問などがございましたらご記入ください。
    お問い合わせを行う前に「個人情報の取り扱いについて」を必ずお読みください。
    「個人情報の取り扱いについて」に同意いただいた場合は「上記にご同意の上 確認画面へ進む」のボタンをクリックしてください。

    個人情報の取り扱いについて

    皆さまが送付された個人情報はアットホーム(株)のサーバを経由し、お問い合わせ先の不動産会社にメールまたはFAXにて転送されるためアットホーム(株)にも保管されます。アットホーム(株)で保管された個人情報の取り扱いについては、【こちら】をご覧ください。
    また、本画面でご記入いただいた個人情報は、お問い合わせ先の不動産会社でも保管します。 お問い合わせ先の不動産会社が保管する個人情報の取り扱いについては、不動産会社に直接お問い合わせください。

    情報提供会社

    情報提供会社

    (株)ハウスメイトショップ 松山東店

    国土交通大臣免許(4)第7558号

    交通:
    伊予鉄道横河原線/いよ立花駅
    愛媛県松山市束本1丁目5-3 
    TEL:
    089-904-9114
    FAX:
    089-998-7760
    所属団体:
    (公社)愛媛県宅地建物取引業協会会員
    不動産公正取引協議会加盟

    取引態様:仲介

    • 会社情報
    • 50015736
    スマートフォンで
    この不動産会社を見る
    QRコード
    • お問い合わせ
    • 提携サイト等より掲載されている物件情報につきましては、不動産会社詳細情報にリンクされていないものがあります。
    • 物件に関するお問合せは、物件詳細ページの「情報提供会社」に表示されている不動産会社へ直接お願いいたします。
    • 間取図は、現況を優先させていただきます。
    • 映像は物件の一部を撮影したものです。物件の契約にあたっての最終判断はご自身の判断に基づいて行ってください。
    • 仲介手数料について仲介手数料

    アットホームは物件情報の適正化に努めております。 内容に誤りがある場合にはこちらへご連絡ください。


    物件画像: