賃貸や不動産はアットホーム-賃貸マンション・賃貸物件・不動産なら アットホーム

大阪府大阪市中央区大手通3丁目(堺筋本町駅)の貸店舗:物件詳細

  • 物件詳細
  • 情報の見方
  • 印刷用画面
交通
所在地
駅徒歩 賃料
管理費等
敷金/保証金
礼金
使用部分面積
坪数/坪単価
物件種目
築年月

地下鉄堺筋線/堺筋本町

大阪府大阪市中央区大手通3丁目

8分

7.7万円

18,700円

7万円 / なし

8.8万円

36.03m²

10.89坪/0.7065万円

貸店舗・事務所

1990年10月(築35年3ヶ月)

おすすめコメント

貸室内にミニキッチンがあり、マツエク対応可。来店型オフィスや各種サロン利用におススメ。リバーサイドで明るいです。

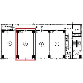
間取図

間取図

平面図

室内

室内

内装

<
その他の画像
  • 室内
  • 共有部分
  • 共有部分
  • 共有部分
  • 共有部分
  • 室内
  • 室内
  • 室内
  • 室内
  • 室内
  • 室内
  • 室内
  • 室内
  • 室内
  • ショッピング施設
  • コンビニ
  • コンビニ
  • 飲食店
  • 郵便局
  • 役所
>
    • お問い合わせ
    交通

    地下鉄堺筋線 堺筋本町駅 徒歩8分

    その他の交通

    地下鉄堺筋線 北浜駅 徒歩8分

    地下鉄谷町線 天満橋駅 徒歩9分

    所在地 大阪府大阪市中央区大手通3丁目
    物件種目 貸店舗・事務所
    賃料 7.7万円 管理費等 18,700円
    敷金 / 保証金 7万円 / なし 礼金 8.8万円
    敷引 坪単価 0.7065万円
    保証金償却 権利金
    造作譲渡 その他一時金
    維持費等 警備料:2,200円/月、空調保守料:2,200円/月 保険等 要 2年 25,000円 火災
    使用部分面積 36.03m² 坪数 10.89坪
    築年月 1990年10月(築35年3ヶ月) 階建 / 階 地上6階地下1階建 / 4階
    駐車場 バイク置き場
    駐輪場 土地面積
    接道状況 用途地域
    間取り 建物構造 RC
    アピールポイント 賃貸保証加入義務なしで初期費用を抑えられます。
    建物名・部屋番号  
    リフォーム履歴 ■共用部の大規模修繕工事:2010年1月
    共有部
    ※実施年月は最も古い履歴を表示
    リノベーション履歴
    特記事項 24時間利用可、土曜日利用可、土日・祝日利用可、天井高2.5M以上
    備考
    管理形態/管理員の勤務形態:-/-
    個人契約から法人契約への名義変更無料
    エネルギー消費性能
    断熱性能
    目安光熱費
    バス・トイレ トイレ2ヶ所、共用部分に男女別トイレあり、多機能トイレ
    キッチン
    設備・サービス 看板取付スペースあり、空調機あり
    個別空調、ビルトインエアコン、エアコン、暖房、冷房、インターネット対応、光ファイバー
    その他 エレベーター
    契約期間 1年 条件等
    引渡可能時期 即時 現況
    更新料 物件番号 6988684691
    情報公開日 2025年12月8日 次回更新予定日 2025年12月29日
    ケータイ用バーコード

    QRコード

    スマートフォンでこの物件を見る
    スマートフォンからもこの物件をご覧になれます。
    ※「-」と表示されている項目については、情報提供会社にご確認ください。

    この物件の周辺情報

    周辺施設 ライフ天神橋店
    距離 506m
    周辺施設 セブンイレブン大阪大手橋前店
    距離 109m
    周辺施設 ファミリーマート本町橋店
    距離 187m
    周辺施設 まいどおおきに食堂内平野町食堂
    距離 264m
    周辺施設 ドトールコーヒーショップ備後町1丁目店
    距離 449m
    周辺施設 大阪高麗橋郵便局
    距離 373m
    周辺施設 関西アーバン銀行堺筋本町支店
    距離 366m
    周辺施設 大阪市中央区役所
    距離 615m

    クイックお問い合わせ

    ここから簡単にお問い合わせをすることができます。
    (SSLでの暗号化での送信を希望されるお客さまは こちら よりお問い合わせください)

    お問い合わせ内容(必須)
    物件のお問い合わせ理由(必須)
    お名前・ご担当者様名(必須) 姓  名 
    メールアドレス(必須)
    ※携帯電話のメールアドレスをご入力される方はこちらをご確認ください
    電話番号(必須)
    - -
    備考欄 希望条件、物件案内希望日、質問などがございましたらご記入ください。
    お問い合わせを行う前に「個人情報の取り扱いについて」を必ずお読みください。
    「個人情報の取り扱いについて」に同意いただいた場合は「上記にご同意の上 確認画面へ進む」のボタンをクリックしてください。

    個人情報の取り扱いについて

    皆さまが送付された個人情報はアットホーム(株)のサーバを経由し、お問い合わせ先の不動産会社にメールまたはFAXにて転送されるためアットホーム(株)にも保管されます。アットホーム(株)で保管された個人情報の取り扱いについては、【こちら】をご覧ください。
    また、本画面でご記入いただいた個人情報は、お問い合わせ先の不動産会社でも保管します。 お問い合わせ先の不動産会社が保管する個人情報の取り扱いについては、不動産会社に直接お問い合わせください。

    情報提供会社

    情報提供会社

    オルタナティブ不動産 (株)オルタナコーポレーション

    大阪府知事免許(2)第59201号

    交通:
    地下鉄御堂筋線/心斎橋駅 徒歩5分
    大阪府大阪市中央区南船場3丁目1-10 日宝南船場ビル3B
    TEL:
    06-4708-4288
    FAX:
    06-4708-4290
    所属団体:
    (公社)全日本不動産協会会員
    (公社)近畿地区不動産公正取引協議会加盟

    取引態様:仲介

    • 会社情報
    • 50101335
    スマートフォンで
    この不動産会社を見る
    QRコード
    • お問い合わせ
    • 提携サイト等より掲載されている物件情報につきましては、不動産会社詳細情報にリンクされていないものがあります。
    • 物件に関するお問合せは、物件詳細ページの「情報提供会社」に表示されている不動産会社へ直接お願いいたします。
    • 間取図は、現況を優先させていただきます。
    • 映像は物件の一部を撮影したものです。物件の契約にあたっての最終判断はご自身の判断に基づいて行ってください。
    • 仲介手数料について仲介手数料

    アットホームは物件情報の適正化に努めております。 内容に誤りがある場合にはこちらへご連絡ください。


    物件画像: