賃貸や不動産はアットホーム-賃貸マンション・賃貸物件・不動産なら アットホーム

茨城県筑西市関本上(川島駅)の貸店舗:物件詳細

  • 物件詳細
  • 情報の見方
  • 印刷用画面
交通
所在地
駅徒歩 賃料
管理費等
敷金/保証金
礼金
使用部分面積
坪数/坪単価
物件種目
築年月

JR水戸線/川島

茨城県筑西市関本上

70分

10万円

2ヶ月 / 1ヶ月

1ヶ月

113.35m²

34.28坪/0.2917万円

貸店舗

1985年2月(築40年11ヶ月)

おすすめコメント  スタッフ: 小川 則夫

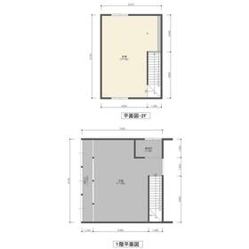
1階店舗27帖、事務所3帖の重度の高い間取りとなります。2階は、25.5帖の空間となります。

間取図

間取図

外観

外観

<
その他の画像
  • ショッピング施設
  • 小学校
  • 銀行
  • 銀行
  • ショッピング施設
  • 郵便局
  • 幼稚園、保育園
>
    • お問い合わせ
    交通

    JR水戸線 川島駅 徒歩70分

    所在地 茨城県筑西市関本上
    物件種目 貸店舗
    賃料 10万円 管理費等
    敷金 / 保証金 2ヶ月 / 1ヶ月 礼金 1ヶ月
    敷引 坪単価 0.2917万円
    保証金償却 権利金
    造作譲渡 その他一時金
    維持費等 保険等
    使用部分面積 113.35m² 坪数 34.28坪
    築年月 1985年2月(築40年11ヶ月) 階建 / 階 2階建 / 1階
    駐車場 有 無料(空き5台) バイク置き場
    駐輪場 土地面積
    接道状況 南 9.0m 公道 接面24.0m ・ 北 9.0m 公道 接面10.0m ・ 二方道路 用途地域
    間取り 2(洋 30・25.5) 建物構造 木造
    アピールポイント TAURAYA関本店の南側に有り、目立つ立地となります。
    建物名・部屋番号 森田テナント
    リフォーム履歴
    リノベーション履歴
    特記事項 駐車場3台分以上
    備考
    管理形態/管理員の勤務形態:-/-
    賃貸条件など、ご不明な点はお問合せください。
    エネルギー消費性能
    断熱性能
    目安光熱費
    バス・トイレ
    キッチン
    設備・サービス 看板取付スペースあり、シャッター付き、天井高2.7m、建物間口8.1m
    その他
    契約期間 2年 条件等
    引渡可能時期 相談 現況
    更新料 旧賃料 1ヶ月 物件番号 6988663009
    情報公開日 2025年12月6日 次回更新予定日 2025年12月21日
    ケータイ用バーコード

    QRコード

    スマートフォンでこの物件を見る
    スマートフォンからもこの物件をご覧になれます。
    ※「-」と表示されている項目については、情報提供会社にご確認ください。

    この物件の周辺情報

    周辺施設 TAIRAYA関本店
    距離 30m
    周辺施設 関城西小学校
    距離 140m
    周辺施設 結城信用金庫関城支店
    距離 70m
    周辺施設 けんしん関城支店
    距離 180m
    周辺施設 ツルハドラッグ関城店
    距離 500m
    周辺施設 関城郵便局
    距離 750m
    周辺施設 暁保育園
    距離 1100m

    クイックお問い合わせ

    ここから簡単にお問い合わせをすることができます。
    (SSLでの暗号化での送信を希望されるお客さまは こちら よりお問い合わせください)

    お問い合わせ内容(必須)
    物件のお問い合わせ理由(必須)
    お名前・ご担当者様名(必須) 姓  名 
    メールアドレス(必須)
    ※携帯電話のメールアドレスをご入力される方はこちらをご確認ください
    電話番号(必須)
    - -
    備考欄 希望条件、物件案内希望日、質問などがございましたらご記入ください。
    お問い合わせを行う前に「個人情報の取り扱いについて」を必ずお読みください。
    「個人情報の取り扱いについて」に同意いただいた場合は「上記にご同意の上 確認画面へ進む」のボタンをクリックしてください。

    個人情報の取り扱いについて

    皆さまが送付された個人情報はアットホーム(株)のサーバを経由し、お問い合わせ先の不動産会社にメールまたはFAXにて転送されるためアットホーム(株)にも保管されます。アットホーム(株)で保管された個人情報の取り扱いについては、【こちら】をご覧ください。
    また、本画面でご記入いただいた個人情報は、お問い合わせ先の不動産会社でも保管します。 お問い合わせ先の不動産会社が保管する個人情報の取り扱いについては、不動産会社に直接お問い合わせください。

    情報提供会社

    情報提供会社

    (株)小川ハウジング(イシンホーム住宅研究会)

    茨城県知事免許(9)第4152号

    交通:
    JR水戸線/川島駅
    茨城県筑西市関本下48-2 
    TEL:
    0296-37-4560
    FAX:
    0296-37-4565
    所属団体:
    (公社)茨城県宅地建物取引業協会会員
    (公社)首都圏不動産公正取引協議会加盟

    取引態様:仲介

    • 会社情報
    • 00105192
    スマートフォンで
    この不動産会社を見る
    QRコード
    • お問い合わせ
    • 提携サイト等より掲載されている物件情報につきましては、不動産会社詳細情報にリンクされていないものがあります。
    • 物件に関するお問合せは、物件詳細ページの「情報提供会社」に表示されている不動産会社へ直接お願いいたします。
    • 間取図は、現況を優先させていただきます。
    • 映像は物件の一部を撮影したものです。物件の契約にあたっての最終判断はご自身の判断に基づいて行ってください。
    • 仲介手数料について仲介手数料

    アットホームは物件情報の適正化に努めております。 内容に誤りがある場合にはこちらへご連絡ください。


    物件画像: