賃貸や不動産はアットホーム-賃貸マンション・賃貸物件・不動産なら アットホーム

神奈川県川崎市麻生区上麻生1丁目(新百合ヶ丘駅)の貸店舗:物件詳細

  • 物件詳細
  • 情報の見方
  • 印刷用画面
交通
所在地
駅徒歩 賃料
管理費等
敷金/保証金
礼金
使用部分面積
坪数/坪単価
物件種目
築年月

小田急小田原線/新百合ヶ丘

神奈川県川崎市麻生区上麻生1丁目

4分

21.4万円

30,700円

354万円 / なし

なし

29.28m²

8.85坪/2.4162万円

貸店舗

1992年3月(築33年10ヶ月)

おすすめコメント

(居抜き物件)新百合ヶ丘駅より平坦な道を真っすぐ徒歩4分。個性的な専門店が40集まる「新百合ヶ丘マプレ専門店街」の1区画です。先に広がる住宅地の玄関口に立地するため、昼夜を問わず常に人通りがあります。

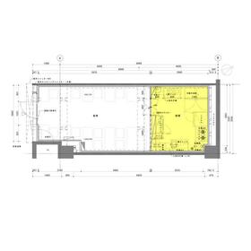
間取図

間取図

外観

外観

新百合ヶ丘駅南口から平坦な道を真っすぐ徒歩4分の立地です。

その他の画像
  • 外観
  • 外観
    • お問い合わせ
    交通

    小田急小田原線 新百合ヶ丘駅 徒歩4分

    所在地 神奈川県川崎市麻生区上麻生1丁目
    物件種目 貸店舗
    賃料 21.4万円 管理費等 30,700円
    敷金 / 保証金 354万円 / なし 礼金 なし
    敷引 坪単価 2.4162万円
    保証金償却 権利金
    造作譲渡 造作譲渡無償 その他一時金
    維持費等 保険等
    使用部分面積 29.28m² 坪数 8.85坪
    築年月 1992年3月(築33年10ヶ月) 階建 / 階 地上2階地下1階建 / 地下1階
    駐車場 バイク置き場
    駐輪場 土地面積
    接道状況 用途地域
    間取り 建物構造 RC
    アピールポイント 新百合ヶ丘駅より平坦な道を真っすぐ徒歩4分。個性的な専門店が40集まる「新百合ヶ丘マプレ専門店街」の1区画です。先に広がる住宅地の玄関口に立地するため、昼夜を問わず常に人通りがあります。くら寿司様側のロードサイドの区画です。2023年に前テナントが内装工事済み。居抜き物件のため、オシャレできれいな内装・設備・テーブル等を無償で引き継ぐことができます。前テナントはローストビーフカフェ=洋食レストランですが、厨房排気能力が弱いため煙が大量に発生する飲食店には不向きです。他店との重複業種は不可となります。詳しくはお問合せください。
    建物名・部屋番号 新百合ヶ丘マプレ専門店街 G-10B
    リフォーム履歴
    リノベーション履歴
    特記事項 居抜き、飲食店可、駐車場3台分以上、天井高2.5M以上
    備考
    管理形態/管理員の勤務形態:-/-
    主要採光面:南西向き
    5年間の定期借家契約ですが再契約できる場合があります。美容室は不可となります。他店との重複業種は不可となります。
    エネルギー消費性能
    断熱性能
    目安光熱費
    バス・トイレ
    キッチン
    設備・サービス 看板取付スペースあり、シャッター付き、天井高2.6m、建物間口2.8m、空調機あり、換気口あり、厨房防水あり、排水設備あり 、水道メーター口径20mm、電気容量(電灯)40KVA、電気容量(動力)100KW、防音処理あり
    シャッター雨戸
    その他
    契約期間 5年 条件等
    引渡可能時期 即時 現況
    更新料 物件番号 6988656647
    情報公開日 2025年12月5日 次回更新予定日 2025年12月20日
    ケータイ用バーコード

    QRコード

    スマートフォンでこの物件を見る
    スマートフォンからもこの物件をご覧になれます。
    ※「-」と表示されている項目については、情報提供会社にご確認ください。

    クイックお問い合わせ

    ここから簡単にお問い合わせをすることができます。
    (SSLでの暗号化での送信を希望されるお客さまは こちら よりお問い合わせください)

    お問い合わせ内容(必須)
    物件のお問い合わせ理由(必須)
    お名前・ご担当者様名(必須) 姓  名 
    メールアドレス(必須)
    ※携帯電話のメールアドレスをご入力される方はこちらをご確認ください
    電話番号(必須)
    - -
    備考欄 希望条件、物件案内希望日、質問などがございましたらご記入ください。
    お問い合わせを行う前に「個人情報の取り扱いについて」を必ずお読みください。
    「個人情報の取り扱いについて」に同意いただいた場合は「上記にご同意の上 確認画面へ進む」のボタンをクリックしてください。

    個人情報の取り扱いについて

    皆さまが送付された個人情報はアットホーム(株)のサーバを経由し、お問い合わせ先の不動産会社にメールまたはFAXにて転送されるためアットホーム(株)にも保管されます。アットホーム(株)で保管された個人情報の取り扱いについては、【こちら】をご覧ください。
    また、本画面でご記入いただいた個人情報は、お問い合わせ先の不動産会社でも保管します。 お問い合わせ先の不動産会社が保管する個人情報の取り扱いについては、不動産会社に直接お問い合わせください。

    情報提供会社

    芥不動産管理(株)

    神奈川県知事免許(2)第29658号

    交通:
    小田急小田原線/新百合ヶ丘駅 徒歩6分
    神奈川県川崎市麻生区上麻生2丁目19-4 
    TEL:
    044-712-7406
    FAX:
    044-712-7410
    所属団体:
    (公社)神奈川県宅地建物取引業協会会員
    (公社)首都圏不動産公正取引協議会加盟

    取引態様:仲介

    • 00265082
    • お問い合わせ
    • 提携サイト等より掲載されている物件情報につきましては、不動産会社詳細情報にリンクされていないものがあります。
    • 物件に関するお問合せは、物件詳細ページの「情報提供会社」に表示されている不動産会社へ直接お願いいたします。
    • 間取図は、現況を優先させていただきます。
    • 映像は物件の一部を撮影したものです。物件の契約にあたっての最終判断はご自身の判断に基づいて行ってください。
    • 仲介手数料について仲介手数料

    アットホームは物件情報の適正化に努めております。 内容に誤りがある場合にはこちらへご連絡ください。


    物件画像: