賃貸や不動産はアットホーム-賃貸マンション・賃貸物件・不動産なら アットホーム

京都府京都市中京区西ノ京職司町(二条駅)の貸店舗:物件詳細

  • 物件詳細
  • 情報の見方
  • 印刷用画面
交通
所在地
駅徒歩 賃料
管理費等
敷金/保証金
礼金
使用部分面積
坪数/坪単価
物件種目
築年月

JR山陰本線/二条

京都府京都市中京区西ノ京職司町

4分

17万円

なし

1ヶ月 / なし

1ヶ月

67.82m²

20.51坪/0.8287万円

貸店舗(建物一括)

1900年1月(築126年)

おすすめコメント

JR・地下鉄二条駅から徒歩4分。約20坪の広さは、事務所やサロンスペース、ゲストハウス、カフェや飲食店など幅広いジャンルにもおすすめ!

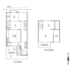
間取図

間取図

外観

外観

<
その他の画像
  • 外観
  • 室内
  • 室内
  • 室内
  • 室内
  • 室内
  • 室内
  • 庭
  • 室内
  • 室内
  • 室内
  • 眺望
>
    • お問い合わせ
    交通

    JR山陰本線 二条駅 徒歩4分

    その他の交通

    地下鉄東西線 二条駅 徒歩5分

    地下鉄東西線 二条城前駅 徒歩9分

    所在地 京都府京都市中京区西ノ京職司町
    物件種目 貸店舗(建物一括)
    賃料 17万円 管理費等 なし
    敷金 / 保証金 1ヶ月 / なし 礼金 1ヶ月
    敷引 坪単価 0.8287万円
    保証金償却 権利金
    造作譲渡 その他一時金 なし
    維持費等 保険等
    使用部分面積 67.82m² 坪数 20.51坪
    築年月 1900年1月(築126年) 階建 / 階 2階建
    駐車場 バイク置き場
    駐輪場 土地面積
    接道状況 用途地域
    間取り 建物構造 木造
    アピールポイント 御池通から少し北に入った場所に位置する本件は、築90年以上の町家。代々住み手によって暮らしやすい形に改装をされており、水廻りのタイルや装飾は昭和レトロな雰囲気でどこか懐かしい空気を醸し出す。間取りもシンプルで、あえて仕切りをなくしすっきりとした空間にしても気持ちよさそう。壁や床、天井をはじめ、そのまま使える素材も多く残っており、上手に工夫をしながら改装費も抑えられそうなところも嬉しいポイント。夏の日差しで眩しく輝く緑の木々。ゆらゆらと揺れる木漏れ日。お招きする方々にも心落ち着くひとときを演出できそうだ。

    JR・地下鉄二条駅から徒歩圏内でアクセスも良好。約20坪の広さは、事務所やサロンスペース、ゲストハウス、カフェや飲食店など幅広いジャンルにもおすすめ。1階は店舗、2階は住居スペースと住みながらお店を構えたいという方にもぴったりの一軒だ。ご興味のある方は是非一度ご内覧を。
    建物名・部屋番号  
    リフォーム履歴
    リノベーション履歴
    特記事項 飲食店可
    備考
    賃貸保証等:加入要(初回保証料:賃料1ヶ月分( 審査有 )以後1年毎に更新保証料( 1ヶ月分 )が必要です。)
    管理形態/管理員の勤務形態:-/-
    主要採光面:南向き
    ・京町家プロフィール取得済み
    ・事務所利用可能
    ・軽飲食店相談可( 重飲食店不可 )
    ・既存設備は残置物とします
    ・外観の改装可
    エネルギー消費性能
    断熱性能
    目安光熱費
    バス・トイレ バス・トイレ別
    キッチン
    設備・サービス 給湯、都市ガス
    その他
    契約期間 10年 条件等 定期借家定期借家
    引渡可能時期 即時 現況
    仲介手数料 1ヶ月    
    更新料 物件番号 6988640477
    情報公開日 2025年12月4日 次回更新予定日 2025年12月18日
    ケータイ用バーコード

    QRコード

    スマートフォンでこの物件を見る
    スマートフォンからもこの物件をご覧になれます。
    ※「-」と表示されている項目については、情報提供会社にご確認ください。

    この物件の周辺情報

    周辺施設 ライフ二条駅前店
    距離 395m
    周辺施設 BiVi二条
    距離 551m
    周辺施設 セブンイレブンハートインJR二条駅東口店
    距離 267m
    周辺施設 医療法人毛利病院
    距離 811m
    周辺施設 京都西ノ京職司郵便局
    距離 169m
    周辺施設 京都銀行二条駅前支店
    距離 236m
    周辺施設 京都市中京区役所
    距離 797m
    周辺施設 中京消防署
    距離 725m

    クイックお問い合わせ

    ここから簡単にお問い合わせをすることができます。
    (SSLでの暗号化での送信を希望されるお客さまは こちら よりお問い合わせください)

    お問い合わせ内容(必須)
    物件のお問い合わせ理由(必須)
    お名前・ご担当者様名(必須) 姓  名 
    メールアドレス(必須)
    ※携帯電話のメールアドレスをご入力される方はこちらをご確認ください
    電話番号(必須)
    - -
    備考欄 希望条件、物件案内希望日、質問などがございましたらご記入ください。
    お問い合わせを行う前に「個人情報の取り扱いについて」を必ずお読みください。
    「個人情報の取り扱いについて」に同意いただいた場合は「上記にご同意の上 確認画面へ進む」のボタンをクリックしてください。

    個人情報の取り扱いについて

    皆さまが送付された個人情報はアットホーム(株)のサーバを経由し、お問い合わせ先の不動産会社にメールまたはFAXにて転送されるためアットホーム(株)にも保管されます。アットホーム(株)で保管された個人情報の取り扱いについては、【こちら】をご覧ください。
    また、本画面でご記入いただいた個人情報は、お問い合わせ先の不動産会社でも保管します。 お問い合わせ先の不動産会社が保管する個人情報の取り扱いについては、不動産会社に直接お問い合わせください。

    情報提供会社

    情報提供会社

    (株)いえ屋

    京都府知事免許(2)第13765号

    交通:
    阪急京都線/京都河原町駅 徒歩9分
    京都府京都市下京区麩屋町通五条上る下鱗形町535-1 
    TEL:
    075-365-0188
    FAX:
    075-365-0181
    所属団体:
    (公社)京都府宅地建物取引業協会会員
    (公社)近畿地区不動産公正取引協議会加盟

    取引態様:仲介

    • 会社情報
    • 50102713
    スマートフォンで
    この不動産会社を見る
    QRコード
    • お問い合わせ
    • 提携サイト等より掲載されている物件情報につきましては、不動産会社詳細情報にリンクされていないものがあります。
    • 物件に関するお問合せは、物件詳細ページの「情報提供会社」に表示されている不動産会社へ直接お願いいたします。
    • 間取図は、現況を優先させていただきます。
    • 映像は物件の一部を撮影したものです。物件の契約にあたっての最終判断はご自身の判断に基づいて行ってください。
    • 仲介手数料について仲介手数料

    アットホームは物件情報の適正化に努めております。 内容に誤りがある場合にはこちらへご連絡ください。


    物件画像: