賃貸や不動産はアットホーム-賃貸マンション・賃貸物件・不動産なら アットホーム

埼玉県草加市谷塚上町(谷塚駅)の貸店舗:物件詳細

  • 物件詳細
  • 情報の見方
  • 印刷用画面
交通
所在地
駅徒歩 賃料
管理費等
敷金/保証金
礼金
使用部分面積
坪数/坪単価
物件種目
築年月

東武伊勢崎線/谷塚 新着

埼玉県草加市谷塚上町

22分

13.75万円

3ヶ月 / なし

なし

59.62m²

18.03坪/0.7625万円

貸店舗・事務所

2016年11月(築9年2ヶ月)

おすすめコメント  スタッフ: 事務スタッフ

ワンフロアでレイアウト自由。駐車スペース・駐輪スペースもあり、多用途の店舗・事務所に最適な使いやすい物件です。

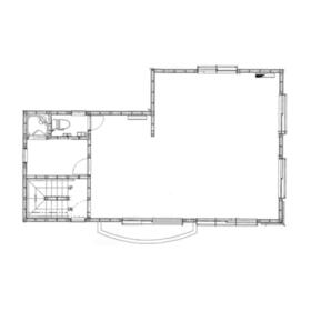
間取図

間取図

その他の画像
  • 室内
  • 設備
  • 外観
    • お問い合わせ
    交通

    東武伊勢崎線 谷塚駅 徒歩22分

    その他の交通

    日暮里舎人ライナー 見沼代親水公園駅 徒歩24分

    所在地 埼玉県草加市谷塚上町
    物件種目 貸店舗・事務所
    賃料 13.75万円 管理費等
    敷金 / 保証金 3ヶ月 / なし 礼金 なし
    敷引 坪単価 0.7625万円
    保証金償却 権利金
    造作譲渡 その他一時金
    維持費等 保険等
    使用部分面積 59.62m² 坪数 18.03坪
    築年月 2016年11月(築9年2ヶ月) 階建 / 階 2階建 / 2階
    駐車場 バイク置き場
    駐輪場 土地面積
    接道状況 用途地域
    間取り 建物構造 木造
    アピールポイント 「開業・事業拡大を成功に導く、最適な店舗物件をご提案!」

    当社は事業用物件に特化した不動産会社です。初めての開業や事業拡大をお考えの方に向け、豊富な経験を持つスタッフが理想の立地・物件選びから、スムーズな出店計画までをワンストップでサポートいたします。

    各エリアの特性を把握した担当者が、出店・退店の市場動向や競合状況など、多角的なデータをもとに、お客様に最適な物件をご提案。内見のご希望やエリアのご相談も、お気軽にお問い合わせください。

    お客様のビジネスを「みたす」物件選びを、全力でお手伝いします!
    建物名・部屋番号  
    リフォーム履歴
    リノベーション履歴
    特記事項 土曜日利用可、土日・祝日利用可、最上階、IT重説対応物件
    備考
    賃貸保証等:加入要(ニッポンインシュア 事務所・店舗 初回100% 更新1年毎10%)
    管理形態/管理員の勤務形態:-/-
    IT重説対応物件
    ・駐車場1台有り(金額相談)
    ・駐輪場有り
    ・管理費は賃料に含む
    ・法人契約可能
    ・1階テナント:接骨院
    ・電気水道は1階と共有
    ・屋上利用相談可能
    ・室内荷物撤去予定
    ・事務所・店舗相談可能
    エネルギー消費性能
    断熱性能
    目安光熱費
    バス・トイレ 専有部分にトイレあり
    キッチン
    設備・サービス エアコン
    その他
    契約期間 2年 条件等
    引渡可能時期 相談 現況
    更新料 新賃料 1ヶ月 物件番号 6988633703
    情報公開日 2025年12月13日 次回更新予定日 2025年12月27日
    ケータイ用バーコード

    QRコード

    スマートフォンでこの物件を見る
    スマートフォンからもこの物件をご覧になれます。
    ※「-」と表示されている項目については、情報提供会社にご確認ください。

    この物件の周辺情報

    周辺施設 とんから亭草加柳島店
    距離 166m
    周辺施設 スーパーオザム草加両新田店
    距離 260m
    周辺施設 ロイヤルプロ草加谷塚
    距離 314m
    周辺施設 ファミリーマート草加谷塚店
    距離 255m
    周辺施設 セブンイレブン草加柳島南店
    距離 334m
    周辺施設 草加柳島郵便局
    距離 364m
    周辺施設 ドラッグストアセキ新里町店
    距離 483m
    周辺施設 エネオス草加柳島SS
    距離 495m

    クイックお問い合わせ

    ここから簡単にお問い合わせをすることができます。
    (SSLでの暗号化での送信を希望されるお客さまは こちら よりお問い合わせください)

    お問い合わせ内容(必須)
    物件のお問い合わせ理由(必須)
    お名前・ご担当者様名(必須) 姓  名 
    メールアドレス(必須)
    ※携帯電話のメールアドレスをご入力される方はこちらをご確認ください
    電話番号(必須)
    - -
    備考欄 希望条件、物件案内希望日、質問などがございましたらご記入ください。
    お問い合わせを行う前に「個人情報の取り扱いについて」を必ずお読みください。
    「個人情報の取り扱いについて」に同意いただいた場合は「上記にご同意の上 確認画面へ進む」のボタンをクリックしてください。

    個人情報の取り扱いについて

    皆さまが送付された個人情報はアットホーム(株)のサーバを経由し、お問い合わせ先の不動産会社にメールまたはFAXにて転送されるためアットホーム(株)にも保管されます。アットホーム(株)で保管された個人情報の取り扱いについては、【こちら】をご覧ください。
    また、本画面でご記入いただいた個人情報は、お問い合わせ先の不動産会社でも保管します。 お問い合わせ先の不動産会社が保管する個人情報の取り扱いについては、不動産会社に直接お問い合わせください。

    情報提供会社

    情報提供会社

    みたす不動産 (株)ミタスプロパティ

    埼玉県知事免許(1)第24396号

    交通:
    JR東北本線/土呂駅 徒歩8分
    埼玉県さいたま市北区土呂町1丁目63-18 
    TEL:
    050-5810-2422
    FAX:
    048-714-2007
    所属団体:
    (公社)埼玉県宅地建物取引業協会会員
    (公社)首都圏不動産公正取引協議会加盟

    取引態様:仲介

    • 会社情報
    • 00271877
    スマートフォンで
    この不動産会社を見る
    QRコード
    • お問い合わせ
    • 提携サイト等より掲載されている物件情報につきましては、不動産会社詳細情報にリンクされていないものがあります。
    • 物件に関するお問合せは、物件詳細ページの「情報提供会社」に表示されている不動産会社へ直接お願いいたします。
    • 間取図は、現況を優先させていただきます。
    • 映像は物件の一部を撮影したものです。物件の契約にあたっての最終判断はご自身の判断に基づいて行ってください。
    • 仲介手数料について仲介手数料

    アットホームは物件情報の適正化に努めております。 内容に誤りがある場合にはこちらへご連絡ください。


    物件画像: