賃貸や不動産はアットホーム-賃貸マンション・賃貸物件・不動産なら アットホーム

群馬県前橋市表町2丁目(前橋駅)の貸店舗:物件詳細

  • 物件詳細
  • 情報の見方
  • 印刷用画面
交通
所在地
駅徒歩 賃料
管理費等
敷金/保証金
礼金
使用部分面積
坪数/坪単価
物件種目
築年月

JR両毛線/前橋 新着

群馬県前橋市表町2丁目

4分

138.105万円

10ヶ月 / なし

1ヶ月

304.36m²

92.06坪/1.5001万円

貸店舗

1987年3月(築38年10ヶ月)

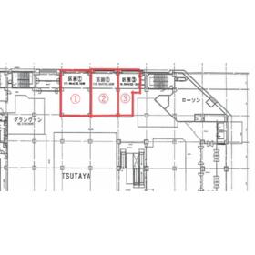
間取図

間取図

その他の画像
    • お問い合わせ
    交通

    JR両毛線 前橋駅 徒歩4分

    その他の交通

    上毛電鉄 中央前橋駅 徒歩14分

    湘南新宿ライン(前橋〜小田原) 前橋駅 徒歩4分

    所在地 群馬県前橋市表町2丁目
    物件種目 貸店舗
    賃料 138.105万円 管理費等
    敷金 / 保証金 10ヶ月 / なし 礼金 1ヶ月
    敷引 坪単価 1.5001万円
    保証金償却 権利金
    造作譲渡 その他一時金
    維持費等 保険等
    使用部分面積 304.36m² 坪数 92.06坪
    築年月 1987年3月(築38年10ヶ月) 階建 / 階 地上7階地下1階建 / 1階
    駐車場 有 18,600円/月(空き500台)
    お客様用施設共有駐車場500台(最初の2時間は無料。以降60分 200円、24時間最大料金 600円)※スタッフ要は応相談
    バイク置き場
    駐輪場 土地面積
    接道状況 用途地域 商業地域
    間取り 建物構造 RC
    建物名・部屋番号  
    リフォーム履歴
    リノベーション履歴
    特記事項 土日・祝日利用可、飲食店可、駐車場3台分以上
    備考
    賃貸保証等:加入要(月額賃料総額の100% 以後1年毎に継続保証料あり)
    管理形態/管理員の勤務形態:-/-
    ①~③区画分割での利用も相談可。共同トイレ有。
    営業時間10時~22時の間で相談可。従業員用駐車場相談可。
    契約期間相談可。
    エネルギー消費性能
    断熱性能
    目安光熱費
    バス・トイレ 男女別トイレ
    キッチン
    設備・サービス
    その他
    契約期間 5年 条件等
    引渡可能時期 相談 現況 居住中
    更新料 物件番号 6988612922
    情報公開日 2025年12月13日 次回更新予定日 2025年12月27日
    ケータイ用バーコード

    QRコード

    スマートフォンでこの物件を見る
    スマートフォンからもこの物件をご覧になれます。
    ※「-」と表示されている項目については、情報提供会社にご確認ください。

    クイックお問い合わせ

    ここから簡単にお問い合わせをすることができます。
    (SSLでの暗号化での送信を希望されるお客さまは こちら よりお問い合わせください)

    お問い合わせ内容(必須)
    物件のお問い合わせ理由(必須)
    お名前・ご担当者様名(必須) 姓  名 
    メールアドレス(必須)
    ※携帯電話のメールアドレスをご入力される方はこちらをご確認ください
    電話番号(必須)
    - -
    備考欄 希望条件、物件案内希望日、質問などがございましたらご記入ください。
    お問い合わせを行う前に「個人情報の取り扱いについて」を必ずお読みください。
    「個人情報の取り扱いについて」に同意いただいた場合は「上記にご同意の上 確認画面へ進む」のボタンをクリックしてください。

    個人情報の取り扱いについて

    皆さまが送付された個人情報はアットホーム(株)のサーバを経由し、お問い合わせ先の不動産会社にメールまたはFAXにて転送されるためアットホーム(株)にも保管されます。アットホーム(株)で保管された個人情報の取り扱いについては、【こちら】をご覧ください。
    また、本画面でご記入いただいた個人情報は、お問い合わせ先の不動産会社でも保管します。 お問い合わせ先の不動産会社が保管する個人情報の取り扱いについては、不動産会社に直接お問い合わせください。

    情報提供会社

    情報提供会社

    ピタットハウス前橋店 (株)ワンライフ

    群馬県知事免許(3)第7097号

    交通:
    JR両毛線/前橋駅 徒歩3分
    群馬県前橋市表町2丁目23-12 
    TEL:
    027-226-6555
    FAX:
    027-226-6554
    所属団体:
    (一社)群馬県宅地建物取引業協会会員
    (公社)首都圏不動産公正取引協議会加盟

    取引態様:仲介

    • 会社情報
    • 00105184
    スマートフォンで
    この不動産会社を見る
    QRコード
    • お問い合わせ
    • 提携サイト等より掲載されている物件情報につきましては、不動産会社詳細情報にリンクされていないものがあります。
    • 物件に関するお問合せは、物件詳細ページの「情報提供会社」に表示されている不動産会社へ直接お願いいたします。
    • 間取図は、現況を優先させていただきます。
    • 映像は物件の一部を撮影したものです。物件の契約にあたっての最終判断はご自身の判断に基づいて行ってください。
    • 仲介手数料について仲介手数料

    アットホームは物件情報の適正化に努めております。 内容に誤りがある場合にはこちらへご連絡ください。


    物件画像: