賃貸や不動産はアットホーム-賃貸マンション・賃貸物件・不動産なら アットホーム

愛知県豊田市岩滝町萩洞の貸店舗:物件詳細

  • 物件詳細
  • 情報の見方
  • 印刷用画面
交通
所在地
駅徒歩 賃料
管理費等
敷金/保証金
礼金
使用部分面積
坪数/坪単価
物件種目
築年月

【バス】名鉄バス『岩滝』停 停歩2分

愛知県豊田市岩滝町萩洞


15万円

なし / 2ヶ月

なし

200.19m²

60.55坪/0.2477万円

貸店舗・事務所(一括)

1988年12月(築37年1ヶ月)

おすすめコメント  スタッフ: テナント専門 不動産会社

【SMILE不動産】豊田市岩滝町 カラオケ喫茶の居抜き物件!造作設備ご使用できます!敷地内駐車場6台有り!2階は居住できます!ご内覧できます!業種・使用用途・条件等のご相談お待ちしております!

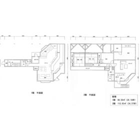
間取図

間取図

外観

外観

<
その他の画像
>
    • お問い合わせ
    交通

    【バス】 名鉄バス『岩滝』停 停歩2分

    所在地 愛知県豊田市岩滝町萩洞
    物件種目 貸店舗・事務所(一括)
    賃料 15万円 管理費等
    敷金 / 保証金 なし / 2ヶ月 礼金 なし
    敷引 坪単価 0.2477万円
    保証金償却 解約時50% 1年未満解約の場合50%償却、1年以上経過後は償却無し 権利金
    造作譲渡 その他一時金
    維持費等 保険等 要 火災
    使用部分面積 200.19m² 坪数 60.55坪
    築年月 1988年12月(築37年1ヶ月) 階建 / 階 2階建
    駐車場 有 無料(空き6台)
    敷地内6台程駐車スペースあり
    バイク置き場
    駐輪場 土地面積
    接道状況 用途地域
    間取り 建物構造 木造
    アピールポイント 【SMILE不動産】豊田市岩滝町 カラオケ喫茶の居抜き物件!造作設備ご使用できます!

    敷地内駐車場6台有り!2階は居住もできます!市街化調整区域となります!

    ご内覧できます!お気軽にお問い合わせください!業種・使用用途・条件等のご相談お待ちしております!

    テナント専門不動産会社【 SMILE不動産 】にお任せください!!
    店舗・事務所・倉庫・工場・土地 等の事業用物件を専門に取扱っております!!

    初めての店舗探しで不安だな... 
    何を聞いたらいいか分からない...
    移転先がなかなか見つからない...  
    事業拡大したいが良い物件がない... etc.

    なんでもお気軽にご相談ください!!専門業者ならではの知識や経験で物件をご紹介いたします!!

    ご希望いただいた方には「物件動画」をお送りいたしますのでお気軽にお申し付けください!
    忙しくてなかなかスケジュールが合わない... 遠方ですぐには行けない...
    そんな方は物件動画で是非ご検討ください☆

    すぐに内覧可能な物件も多数ございます!!
    お問合せお待ちしております☆
    建物名・部屋番号 豊田市岩滝町住居付店舗 一棟
    リフォーム履歴
    リノベーション履歴
    特記事項 居抜き、土曜日利用可、土日・祝日利用可、飲食店可、駐車場3台分以上、IT重説対応物件
    備考
    賃貸保証等:加入要(保証会社初回保証料:月額総賃料の100%)
    管理形態/管理員の勤務形態:-/-
    IT重説対応物件
    ■ 2025年12月2日 撮影

    ■「物件動画」もございます☆ご希望の方はお申し付けください!!

    ■ 豊田市岩滝町 カラオケ喫茶の居抜き物件!造作設備ご使用できます!

    ■ 敷地内駐車場6台有り!2階は居住もできます!

    ■ 市街化調整区域となります!

    ■ ご内覧できます!お気軽にお問い合わせください!

    ■ 業種・使用用途・条件等のご相談お待ちしております!
    エネルギー消費性能
    断熱性能
    目安光熱費
    バス・トイレ 専有部分にトイレあり
    キッチン
    設備・サービス プロパンガス
    その他
    契約期間 3年 条件等
    引渡可能時期 即時 現況
    仲介手数料 1ヶ月    
    更新料 物件番号 6988612848
    情報公開日 2025年12月2日 次回更新予定日 2025年12月19日
    ケータイ用バーコード

    QRコード

    スマートフォンでこの物件を見る
    スマートフォンからもこの物件をご覧になれます。
    ※「-」と表示されている項目については、情報提供会社にご確認ください。

    この物件の周辺情報

    周辺施設 エネオス岩滝SC SS
    距離 170m
    周辺施設 豊田市中消防署東分署
    距離 672m
    周辺施設 ファミリーマート豊田百々町九丁目店
    距離 801m
    周辺施設 メグリアミニ市木店
    距離 927m
    周辺施設 豊田市立美和こども園
    距離 918m
    周辺施設 豊田カントリー倶楽部
    距離 1425m
    周辺施設 スターバックスコーヒー豊田鞍ケ池公園店
    距離 1060m
    周辺施設 鞍ヶ池
    距離 1057m

    クイックお問い合わせ

    ここから簡単にお問い合わせをすることができます。
    (SSLでの暗号化での送信を希望されるお客さまは こちら よりお問い合わせください)

    お問い合わせ内容(必須)
    物件のお問い合わせ理由(必須)
    お名前・ご担当者様名(必須) 姓  名 
    メールアドレス(必須)
    ※携帯電話のメールアドレスをご入力される方はこちらをご確認ください
    電話番号(必須)
    - -
    備考欄 希望条件、物件案内希望日、質問などがございましたらご記入ください。
    お問い合わせを行う前に「個人情報の取り扱いについて」を必ずお読みください。
    「個人情報の取り扱いについて」に同意いただいた場合は「上記にご同意の上 確認画面へ進む」のボタンをクリックしてください。

    個人情報の取り扱いについて

    皆さまが送付された個人情報はアットホーム(株)のサーバを経由し、お問い合わせ先の不動産会社にメールまたはFAXにて転送されるためアットホーム(株)にも保管されます。アットホーム(株)で保管された個人情報の取り扱いについては、【こちら】をご覧ください。
    また、本画面でご記入いただいた個人情報は、お問い合わせ先の不動産会社でも保管します。 お問い合わせ先の不動産会社が保管する個人情報の取り扱いについては、不動産会社に直接お問い合わせください。

    情報提供会社

    情報提供会社

    (株)SMILE不動産

    愛知県知事免許(1)第25327号

    交通:
    名鉄豊田線/豊田市駅
    愛知県豊田市衣ケ原3丁目12番地 
    TEL:
    0565-37-1270
    FAX:
    0565-37-1271
    所属団体:
    (公社)全日本不動産協会会員
    東海不動産公正取引協議会加盟

    取引態様:仲介

    • 会社情報
    • 40410547
    スマートフォンで
    この不動産会社を見る
    QRコード
    • お問い合わせ
    • 提携サイト等より掲載されている物件情報につきましては、不動産会社詳細情報にリンクされていないものがあります。
    • 物件に関するお問合せは、物件詳細ページの「情報提供会社」に表示されている不動産会社へ直接お願いいたします。
    • 間取図は、現況を優先させていただきます。
    • 映像は物件の一部を撮影したものです。物件の契約にあたっての最終判断はご自身の判断に基づいて行ってください。
    • 仲介手数料について仲介手数料

    アットホームは物件情報の適正化に努めております。 内容に誤りがある場合にはこちらへご連絡ください。


    物件画像: