賃貸や不動産はアットホーム-賃貸マンション・賃貸物件・不動産なら アットホーム

石川県金沢市田上本町4丁目の貸店舗:物件詳細

  • 物件詳細
  • 情報の見方
  • 印刷用画面
交通
所在地
駅徒歩 賃料
管理費等
敷金/保証金
礼金
使用部分面積
坪数/坪単価
物件種目
築年月

【バス】下田上 停歩1分

石川県金沢市田上本町4丁目


22万円

11,000円

なし / 240万円

44万円

41.41m²

12.52坪/1.7563万円

貸店舗

2008年1月(築18年)

おすすめコメント

★学生エリア★カウンター席★

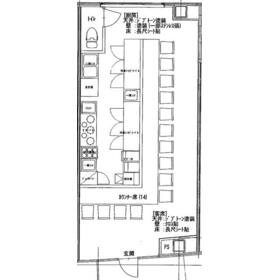
間取図

間取図

  • お問い合わせ
交通

【バス】 下田上 停歩1分

所在地 石川県金沢市田上本町4丁目
物件種目 貸店舗
賃料 22万円 管理費等 11,000円
敷金 / 保証金 なし / 240万円 礼金 44万円
敷引 坪単価 1.7563万円
保証金償却 権利金
造作譲渡 その他一時金
維持費等 保険等 要 火災
使用部分面積 41.41m² 坪数 12.52坪
築年月 2008年1月(築18年) 階建 / 階 4階建 / 1階
駐車場 有 無料
駐車場が多数必要な場合は別途協議必要
バイク置き場
駐輪場 土地面積
接道状況 用途地域
間取り 建物構造 鉄骨造
アピールポイント ★学生エリア★カウンター席★
建物名・部屋番号 TAGAMI3号館 1階
リフォーム履歴
リノベーション履歴
特記事項 居抜き、土日・祝日利用可、飲食店可
備考
賃貸保証等:加入要(日本セーフティー株式会社 初回保証料:総賃料の100%、月額保証料:総賃料の0.8%/月)
管理形態/管理員の勤務形態:-/-
居抜き物件★駐車料金については賃料込み。(多数の場合は別途協議)
エネルギー消費性能
断熱性能
目安光熱費
バス・トイレ トイレ
キッチン
設備・サービス 看板取付スペースあり
その他
契約期間 5年 条件等
引渡可能時期 指定有り2026年1月6日 現況 使用中
更新料 物件番号 6988601975
情報公開日 2025年12月2日 次回更新予定日 2025年12月16日
ケータイ用バーコード

QRコード

スマートフォンでこの物件を見る
スマートフォンからもこの物件をご覧になれます。
※「-」と表示されている項目については、情報提供会社にご確認ください。

この物件の周辺情報

周辺施設 albis田上店
距離 933m
周辺施設 ローソン金沢田上店
距離 202m
周辺施設 ファミリーマート金沢朝霧台店
距離 938m
周辺施設 マクドナルド金沢田上店
距離 84m
周辺施設 カルビ大将田上店
距離 255m

クイックお問い合わせ

ここから簡単にお問い合わせをすることができます。
(SSLでの暗号化での送信を希望されるお客さまは こちら よりお問い合わせください)

お問い合わせ内容(必須)
物件のお問い合わせ理由(必須)
お名前・ご担当者様名(必須) 姓  名 
メールアドレス(必須)
※携帯電話のメールアドレスをご入力される方はこちらをご確認ください
電話番号(必須)
- -
備考欄 希望条件、物件案内希望日、質問などがございましたらご記入ください。
お問い合わせを行う前に「個人情報の取り扱いについて」を必ずお読みください。
「個人情報の取り扱いについて」に同意いただいた場合は「上記にご同意の上 確認画面へ進む」のボタンをクリックしてください。

個人情報の取り扱いについて

皆さまが送付された個人情報はアットホーム(株)のサーバを経由し、お問い合わせ先の不動産会社にメールまたはFAXにて転送されるためアットホーム(株)にも保管されます。アットホーム(株)で保管された個人情報の取り扱いについては、【こちら】をご覧ください。
また、本画面でご記入いただいた個人情報は、お問い合わせ先の不動産会社でも保管します。 お問い合わせ先の不動産会社が保管する個人情報の取り扱いについては、不動産会社に直接お問い合わせください。

情報提供会社

情報提供会社

(株)よつばホーム

石川県知事免許(2)第4252号

交通:
IRいしかわ鉄道/野々市駅 徒歩3分
石川県野々市市御経塚1丁目300 
TEL:
076-259-0880
FAX:
076-259-0881
所属団体:
(公社)全日本不動産協会会員
北陸不動産公正取引協議会加盟

取引態様:仲介

  • 会社情報
  • 40407524
スマートフォンで
この不動産会社を見る
QRコード
  • お問い合わせ
  • 提携サイト等より掲載されている物件情報につきましては、不動産会社詳細情報にリンクされていないものがあります。
  • 物件に関するお問合せは、物件詳細ページの「情報提供会社」に表示されている不動産会社へ直接お願いいたします。
  • 間取図は、現況を優先させていただきます。
  • 映像は物件の一部を撮影したものです。物件の契約にあたっての最終判断はご自身の判断に基づいて行ってください。
  • 仲介手数料について仲介手数料

アットホームは物件情報の適正化に努めております。 内容に誤りがある場合にはこちらへご連絡ください。


物件画像: