賃貸や不動産はアットホーム-賃貸マンション・賃貸物件・不動産なら アットホーム

岩手県盛岡市内丸の貸店舗:物件詳細

  • 物件詳細
  • 情報の見方
  • 印刷用画面
交通
所在地
駅徒歩 賃料
管理費等
敷金/保証金
礼金
使用部分面積
坪数/坪単価
物件種目
築年月

【バス】県庁・市役所前 停歩3分

岩手県盛岡市内丸


14.3万円

3ヶ月 / なし

なし

68.15m²

20.61坪/0.6937万円

貸店舗(建物一括)

1945年10月(築80年3ヶ月)

おすすめコメント

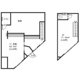
岩手県庁・盛岡市役所から徒歩圏内!盛岡内丸桜山界隈の飲食店舗です。1階約15坪、2階約5坪、2階は小宴会等で個室としてもご利用可能な空間となっております。

間取図

間取図

外観

外観

<
その他の画像
  • トイレ
>
    • お問い合わせ
    交通

    【バス】 県庁・市役所前 停歩3分

    所在地 岩手県盛岡市内丸
    物件種目 貸店舗(建物一括)
    賃料 14.3万円 管理費等
    敷金 / 保証金 3ヶ月 / なし 礼金 なし
    敷引 坪単価 0.6937万円
    保証金償却 権利金
    造作譲渡 その他一時金
    維持費等 保険等 要 借家人賠償責任
    使用部分面積 68.15m² 坪数 20.61坪
    築年月 1945年10月(築80年3ヶ月) 階建 / 階 2階建
    駐車場 バイク置き場
    駐輪場 土地面積
    接道状況 用途地域
    間取り 建物構造 木造
    アピールポイント 昭和のノスタルジーを感じる盛岡内丸桜山界隈の飲食店舗です。2階窓からは岩手県の有形指定文化財の時鐘が望めます♪
    建物名・部屋番号  
    リフォーム履歴
    リノベーション履歴
    特記事項
    備考
    賃貸保証等:加入要(保証委託料(初回)月額賃料等の100%、年額保証料月額賃料等の10%、インサイト決済サービス料月額330円別途要(他プランもあり。保証料はプランにより異なります。詳細はお問合せ下さい))
    管理形態/管理員の勤務形態:-/-
    ・現状現況貸しです。
    ・業種は事前にお知らせ下さい。
    ・建物一部築年:1960年(昭和35)11月
    エネルギー消費性能
    断熱性能
    目安光熱費
    バス・トイレ トイレ
    キッチン
    設備・サービス プロパンガス
    その他
    契約期間 2年 条件等
    引渡可能時期 即時 現況
    仲介手数料 1ヶ月    
    更新料 11,000円 物件番号 6988565106
    情報公開日 2025年11月29日 次回更新予定日 2025年12月27日
    ケータイ用バーコード

    QRコード

    スマートフォンでこの物件を見る
    スマートフォンからもこの物件をご覧になれます。
    ※「-」と表示されている項目については、情報提供会社にご確認ください。

    この物件の周辺情報

    周辺施設 ローソン盛岡内丸店
    距離 221m
    周辺施設 白龍本店
    距離 51m
    周辺施設 盛岡内丸郵便局
    距離 267m
    周辺施設 岩手県庁
    距離 222m
    周辺施設 盛岡市役所
    距離 226m
    周辺施設 桜山神社
    距離 120m
    周辺施設 岩手公園
    距離 239m
    周辺施設 岩手公園地下駐車場
    距離 222m

    クイックお問い合わせ

    ここから簡単にお問い合わせをすることができます。
    (SSLでの暗号化での送信を希望されるお客さまは こちら よりお問い合わせください)

    お問い合わせ内容(必須)
    物件のお問い合わせ理由(必須)
    お名前・ご担当者様名(必須) 姓  名 
    メールアドレス(必須)
    ※携帯電話のメールアドレスをご入力される方はこちらをご確認ください
    電話番号(必須)
    - -
    備考欄 希望条件、物件案内希望日、質問などがございましたらご記入ください。
    お問い合わせを行う前に「個人情報の取り扱いについて」を必ずお読みください。
    「個人情報の取り扱いについて」に同意いただいた場合は「上記にご同意の上 確認画面へ進む」のボタンをクリックしてください。

    個人情報の取り扱いについて

    皆さまが送付された個人情報はアットホーム(株)のサーバを経由し、お問い合わせ先の不動産会社にメールまたはFAXにて転送されるためアットホーム(株)にも保管されます。アットホーム(株)で保管された個人情報の取り扱いについては、【こちら】をご覧ください。
    また、本画面でご記入いただいた個人情報は、お問い合わせ先の不動産会社でも保管します。 お問い合わせ先の不動産会社が保管する個人情報の取り扱いについては、不動産会社に直接お問い合わせください。

    情報提供会社

    情報提供会社

    (有)中央不動産

    岩手県知事免許(7)第1875号

    交通:
    JR東北本線/盛岡駅 徒歩17分
    岩手県盛岡市内丸6-5 
    TEL:
    019-652-2839
    FAX:
    019-652-2847
    所属団体:
    (一社)岩手県宅地建物取引業協会会員
    東北地区不動産公正取引協議会加盟

    取引態様:仲介

    • 会社情報
    • 20002487
    スマートフォンで
    この不動産会社を見る
    QRコード
    • お問い合わせ
    • 提携サイト等より掲載されている物件情報につきましては、不動産会社詳細情報にリンクされていないものがあります。
    • 物件に関するお問合せは、物件詳細ページの「情報提供会社」に表示されている不動産会社へ直接お願いいたします。
    • 間取図は、現況を優先させていただきます。
    • 映像は物件の一部を撮影したものです。物件の契約にあたっての最終判断はご自身の判断に基づいて行ってください。
    • 仲介手数料について仲介手数料

    アットホームは物件情報の適正化に努めております。 内容に誤りがある場合にはこちらへご連絡ください。


    物件画像: