賃貸や不動産はアットホーム-賃貸マンション・賃貸物件・不動産なら アットホーム

愛知県名古屋市東区泉1丁目(久屋大通駅)の貸店舗:物件詳細

  • 物件詳細
  • 情報の見方
  • 印刷用画面
交通
所在地
駅徒歩 賃料
管理費等
敷金/保証金
礼金
使用部分面積
坪数/坪単価
物件種目
築年月

名古屋市名城線/久屋大通

愛知県名古屋市東区泉1丁目

5分

22万円

なし / 3ヶ月

なし

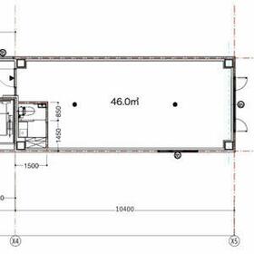
46.00m²

13.91坪/1.5811万円

貸店舗・事務所

2026年3月(新築)

おすすめコメント

久屋大通徒歩5分!オシャレな外観の新築物件です(*^^*)新規開業や移転にもおススメ。お気軽にお問い合わせ下さい☆

間取図

間取図

室内

室内

建築中写真

<
その他の画像
  • 室内
  • 設備
  • 設備
  • 外観
  • 室内
  • 外観
  • 間取図
  • コンビニ
  • 警察署、交番
  • コンビニ
  • 郵便局
  • ショッピング施設
  • 病院
  • 銀行
  • 役所
>
    • お問い合わせ
    交通

    名古屋市名城線 久屋大通駅 徒歩5分

    その他の交通

    名古屋市桜通線 高岳駅 徒歩6分

    名鉄瀬戸線 栄町駅 徒歩10分

    所在地 愛知県名古屋市東区泉1丁目
    物件種目 貸店舗・事務所
    賃料 22万円 管理費等
    敷金 / 保証金 なし / 3ヶ月 礼金 なし
    敷引 坪単価 1.5811万円
    保証金償却 解約時100% 権利金
    造作譲渡 その他一時金
    維持費等 保険等
    使用部分面積 46.00m² 坪数 13.91坪
    築年月 2026年3月(新築) 階建 / 階 7階建 / 2階
    駐車場 バイク置き場
    駐輪場 土地面積
    接道状況 用途地域
    間取り 建物構造 鉄骨造
    アピールポイント 株式会社おうち広場と申します。
    弊社は事業用賃貸を初め、リフォーム・解体・売買等幅広く取り扱いをしております。
    是非リフォーム・解体のご相談も承りますのでお気軽にご相談くださいませ。

    TEL052-228-4673 FAX052-228-4674 
    公式lineもございます!お気軽にお問合せくださいませ。
    公式line ID:@543xokiv(@も含んで検索)
    建物名・部屋番号 S2
    リフォーム履歴
    リノベーション履歴
    特記事項 土曜日利用可、土日・祝日利用可、飲食店可、角部屋、保証人不要
    備考
    賃貸保証等:加入要(原則加入必須)
    管理形態/管理員の勤務形態:-/-
    エネルギー消費性能
    断熱性能
    目安光熱費
    バス・トイレ 共用部分にトイレあり
    キッチン
    設備・サービス 個別空調、エアコン、暖房、冷房、インターネット対応、光ファイバー
    その他 エレベーター
    契約期間 2年 条件等
    引渡可能時期 2026年3月上旬予定 現況 未完成
    適格請求書発行
    更新料 33,000円 物件番号 6988539410
    情報公開日 2025年11月27日 次回更新予定日 2026年2月28日
    ケータイ用バーコード

    QRコード

    スマートフォンでこの物件を見る
    スマートフォンからもこの物件をご覧になれます。
    ※「-」と表示されている項目については、情報提供会社にご確認ください。

    この物件の周辺情報

    周辺施設 セブンイレブン名古屋桜通泉1丁目店
    距離 121m
    周辺施設 東消防署富士塚出張所
    距離 174m
    周辺施設 ローソン東区高岳店
    距離 229m
    周辺施設 名古屋東桜郵便局
    距離 393m
    周辺施設 成城石井栄セントラルパーク店
    距離 572m
    周辺施設 医療法人すみれ会中央病院
    距離 578m
    周辺施設 三井住友銀行栄セントラルパーク店
    距離 695m
    周辺施設 名古屋市中区役所
    距離 833m

    クイックお問い合わせ

    ここから簡単にお問い合わせをすることができます。
    (SSLでの暗号化での送信を希望されるお客さまは こちら よりお問い合わせください)

    お問い合わせ内容(必須)
    物件のお問い合わせ理由(必須)
    お名前・ご担当者様名(必須) 姓  名 
    メールアドレス(必須)
    ※携帯電話のメールアドレスをご入力される方はこちらをご確認ください
    電話番号(必須)
    - -
    備考欄 希望条件、物件案内希望日、質問などがございましたらご記入ください。
    お問い合わせを行う前に「個人情報の取り扱いについて」を必ずお読みください。
    「個人情報の取り扱いについて」に同意いただいた場合は「上記にご同意の上 確認画面へ進む」のボタンをクリックしてください。

    個人情報の取り扱いについて

    皆さまが送付された個人情報はアットホーム(株)のサーバを経由し、お問い合わせ先の不動産会社にメールまたはFAXにて転送されるためアットホーム(株)にも保管されます。アットホーム(株)で保管された個人情報の取り扱いについては、【こちら】をご覧ください。
    また、本画面でご記入いただいた個人情報は、お問い合わせ先の不動産会社でも保管します。 お問い合わせ先の不動産会社が保管する個人情報の取り扱いについては、不動産会社に直接お問い合わせください。

    情報提供会社

    情報提供会社

    (株)おうち広場 オフィス広場

    愛知県知事免許(2)第24143号

    交通:
    名古屋市鶴舞線/丸の内駅 徒歩2分
    愛知県名古屋市中区丸の内2丁目10-30 インテリジェント林ビル602
    TEL:
    052-228-4673
    FAX:
    052-228-4674
    所属団体:
    (公社)全日本不動産協会会員
    東海不動産公正取引協議会加盟

    取引態様:仲介

    • 会社情報
    • 40410593
    スマートフォンで
    この不動産会社を見る
    QRコード
    • お問い合わせ
    • 提携サイト等より掲載されている物件情報につきましては、不動産会社詳細情報にリンクされていないものがあります。
    • 物件に関するお問合せは、物件詳細ページの「情報提供会社」に表示されている不動産会社へ直接お願いいたします。
    • 間取図は、現況を優先させていただきます。
    • 映像は物件の一部を撮影したものです。物件の契約にあたっての最終判断はご自身の判断に基づいて行ってください。
    • 仲介手数料について仲介手数料

    アットホームは物件情報の適正化に努めております。 内容に誤りがある場合にはこちらへご連絡ください。


    物件画像: