賃貸や不動産はアットホーム-賃貸マンション・賃貸物件・不動産なら アットホーム

京都府京都市中京区大宮通三条下る三条大宮町(大宮駅)の貸店舗:物件詳細

  • 物件詳細
  • 情報の見方
  • 印刷用画面
交通
所在地
駅徒歩 賃料
管理費等
敷金/保証金
礼金
使用部分面積
坪数/坪単価
物件種目
築年月

阪急京都線/大宮

京都府京都市中京区大宮通三条下る三条大宮町

7分

33万円

16,500円

なし / 100万円

なし

83.86m²

25.36坪/1.3009万円

貸店舗

1995年12月(築30年1ヶ月)

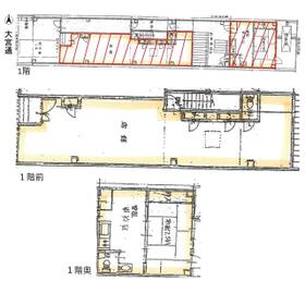
間取図

間取図

その他の画像
    • お問い合わせ
    交通

    阪急京都線 大宮駅 徒歩7分

    その他の交通

    地下鉄東西線 二条城前駅 徒歩8分

    京福電鉄嵐山本線 四条大宮駅 徒歩7分

    所在地 京都府京都市中京区大宮通三条下る三条大宮町
    物件種目 貸店舗
    賃料 33万円 管理費等 16,500円
    敷金 / 保証金 なし / 100万円 礼金 なし
    敷引 坪単価 1.3009万円
    保証金償却 権利金
    造作譲渡 その他一時金
    維持費等 保険等
    使用部分面積 83.86m² 坪数 25.36坪
    築年月 1995年12月(築30年1ヶ月) 階建 / 階 4階建 / 1階
    駐車場 バイク置き場
    駐輪場 土地面積
    接道状況 用途地域 近隣商業
    間取り 建物構造 鉄骨造
    建物名・部屋番号 コーポグラン・ブルー 1階
    リフォーム履歴
    リノベーション履歴
    特記事項
    備考
    賃貸保証等:加入要(賃貸保証会社加入要(フォーシーズ/初回月額100%・更新料10,000円~))
    管理形態/管理員の勤務形態:-/-
    ◆大宮駅周辺、大宮通面す
    ◆面積 店舗:55.78㎡(16.87坪) 奥住居跡:28.08㎡(8.49坪)
    ◆近隣:京都三条会商店街、三条大宮公園、他多数物販店
    ◆物件前スペース、駐車場等としての利用可能
    ◆飲食店舗協議可能
    ◆事務所利用として、16坪程度の賃貸に分割可能
    ◆設備:トイレ・エアコン

    ◆保証金返還率
     ●規定返還率に基づく

    ◆奥住居跡※老朽化有り
    ◆1階店舗天井高 前2396㎜ 階段353㎜ 奥2405㎜
    ◆入口前スペース梁下2004㎜
    エネルギー消費性能
    断熱性能
    目安光熱費
    バス・トイレ
    キッチン
    設備・サービス
    その他
    契約期間 10年 条件等 定期借家定期借家
    引渡可能時期 相談 現況
    仲介手数料 1ヶ月    
    更新料 物件番号 6988523286
    情報公開日 2025年11月26日 次回更新予定日 2025年12月24日
    ケータイ用バーコード

    QRコード

    スマートフォンでこの物件を見る
    スマートフォンからもこの物件をご覧になれます。
    ※「-」と表示されている項目については、情報提供会社にご確認ください。

    この物件の周辺情報

    周辺施設 西友三条店
    距離 243m
    周辺施設 ファミリーマート三条大宮店
    距離 241m
    周辺施設 そば処更科
    距離 259m
    周辺施設 Seria西友三条店
    距離 249m
    周辺施設 京都大宮六角郵便局
    距離 82m
    周辺施設 りそな銀行四条大宮支店
    距離 491m
    周辺施設 京都市中京区役所
    距離 567m
    周辺施設 京都府中京警察署
    距離 517m

    クイックお問い合わせ

    ここから簡単にお問い合わせをすることができます。
    (SSLでの暗号化での送信を希望されるお客さまは こちら よりお問い合わせください)

    お問い合わせ内容(必須)
    物件のお問い合わせ理由(必須)
    お名前・ご担当者様名(必須) 姓  名 
    メールアドレス(必須)
    ※携帯電話のメールアドレスをご入力される方はこちらをご確認ください
    電話番号(必須)
    - -
    備考欄 希望条件、物件案内希望日、質問などがございましたらご記入ください。
    お問い合わせを行う前に「個人情報の取り扱いについて」を必ずお読みください。
    「個人情報の取り扱いについて」に同意いただいた場合は「上記にご同意の上 確認画面へ進む」のボタンをクリックしてください。

    個人情報の取り扱いについて

    皆さまが送付された個人情報はアットホーム(株)のサーバを経由し、お問い合わせ先の不動産会社にメールまたはFAXにて転送されるためアットホーム(株)にも保管されます。アットホーム(株)で保管された個人情報の取り扱いについては、【こちら】をご覧ください。
    また、本画面でご記入いただいた個人情報は、お問い合わせ先の不動産会社でも保管します。 お問い合わせ先の不動産会社が保管する個人情報の取り扱いについては、不動産会社に直接お問い合わせください。

    情報提供会社

    情報提供会社

    (株)大陽リアルティ

    京都府知事免許(3)第13426号

    交通:
    地下鉄烏丸線/四条駅 徒歩5分
    京都府京都市中京区蛸薬師通高倉西入泉正寺町334 日昇ビル4F
    TEL:
    075-256-6161
    FAX:
    075-256-6162
    所属団体:
    (公社)京都府宅地建物取引業協会会員
    (公社)近畿地区不動産公正取引協議会加盟

    取引態様:仲介

    • 会社情報
    • 50103805
    スマートフォンで
    この不動産会社を見る
    QRコード
    • お問い合わせ
    • 提携サイト等より掲載されている物件情報につきましては、不動産会社詳細情報にリンクされていないものがあります。
    • 物件に関するお問合せは、物件詳細ページの「情報提供会社」に表示されている不動産会社へ直接お願いいたします。
    • 間取図は、現況を優先させていただきます。
    • 映像は物件の一部を撮影したものです。物件の契約にあたっての最終判断はご自身の判断に基づいて行ってください。
    • 仲介手数料について仲介手数料

    アットホームは物件情報の適正化に努めております。 内容に誤りがある場合にはこちらへご連絡ください。


    物件画像: