賃貸や不動産はアットホーム-賃貸マンション・賃貸物件・不動産なら アットホーム

大阪府池田市室町(池田駅)の貸店舗:物件詳細

  • 物件詳細
  • 情報の見方
  • 印刷用画面
交通
所在地
駅徒歩 賃料
管理費等
敷金/保証金
礼金
使用部分面積
坪数/坪単価
物件種目
築年月

阪急宝塚線/池田

大阪府池田市室町

3分

23万円

なし / なし

46万円

106.00m²

32.06坪/0.7173万円

貸店舗・事務所

1991年1月(築35年)

おすすめコメント  スタッフ: 揚野 雅史

1階店舗事務所です♪事務所、学習塾、整体院などにオススメです♪業種ご相談ください☆彡事業用専門にしておりますので、その他ご利用用途等、まずはお気軽にお問合せください。

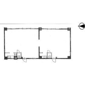
間取図

間取図

外観

外観

その他の画像
  • 室内
  • 室内
  • 室内
  • トイレ
  • 周辺環境
  • 周辺環境
    • お問い合わせ
    交通

    阪急宝塚線 池田駅 徒歩3分

    その他の交通

    能勢電鉄妙見線 川西能勢口駅 徒歩19分

    阪急宝塚線 川西能勢口駅 徒歩21分

    所在地 大阪府池田市室町
    物件種目 貸店舗・事務所
    賃料 23万円 管理費等
    敷金 / 保証金 なし / なし 礼金 46万円
    敷引 坪単価 0.7173万円
    保証金償却 権利金
    造作譲渡 その他一時金
    維持費等 保険等 要 火災
    使用部分面積 106.00m² 坪数 32.06坪
    築年月 1991年1月(築35年) 階建 / 階 4階建 / 1階
    駐車場 有 無料 バイク置き場
    駐輪場 土地面積
    接道状況 用途地域
    間取り 建物構造 RC
    建物名・部屋番号 池田市室町 店舗・事務所
    リフォーム履歴
    リノベーション履歴
    特記事項
    備考
    賃貸保証等:加入要(詳細はお問い合わせくださいませ。)
    管理形態/管理員の勤務形態:-/-
    ※飲食業不可
    ※現状有姿(室内造作あり)
    エネルギー消費性能
    断熱性能
    目安光熱費
    バス・トイレ
    キッチン
    設備・サービス
    その他
    契約期間 2年 条件等
    引渡可能時期 相談 現況
    更新料 物件番号 6988514038
    情報公開日 2025年11月25日 次回更新予定日 2025年12月18日
    ケータイ用バーコード

    QRコード

    スマートフォンでこの物件を見る
    スマートフォンからもこの物件をご覧になれます。
    ※「-」と表示されている項目については、情報提供会社にご確認ください。

    この物件の周辺情報

    周辺施設 阪急オアシス池田店
    距離 223m
    周辺施設 サンシティ池田
    距離 223m
    周辺施設 ローソンHA阪急池田店
    距離 256m
    周辺施設 ローソンストア100池田栄本町店
    距離 377m
    周辺施設 マクドナルド阪急池田駅店
    距離 230m
    周辺施設 カフェ・ド・クリエイケディア池田店
    距離 226m
    周辺施設 池田栄本町郵便局
    距離 482m
    周辺施設 みずほ銀行池田支店
    距離 138m

    クイックお問い合わせ

    ここから簡単にお問い合わせをすることができます。
    (SSLでの暗号化での送信を希望されるお客さまは こちら よりお問い合わせください)

    お問い合わせ内容(必須)
    物件のお問い合わせ理由(必須)
    お名前・ご担当者様名(必須) 姓  名 
    メールアドレス(必須)
    ※携帯電話のメールアドレスをご入力される方はこちらをご確認ください
    電話番号(必須)
    - -
    備考欄 希望条件、物件案内希望日、質問などがございましたらご記入ください。
    お問い合わせを行う前に「個人情報の取り扱いについて」を必ずお読みください。
    「個人情報の取り扱いについて」に同意いただいた場合は「上記にご同意の上 確認画面へ進む」のボタンをクリックしてください。

    個人情報の取り扱いについて

    皆さまが送付された個人情報はアットホーム(株)のサーバを経由し、お問い合わせ先の不動産会社にメールまたはFAXにて転送されるためアットホーム(株)にも保管されます。アットホーム(株)で保管された個人情報の取り扱いについては、【こちら】をご覧ください。
    また、本画面でご記入いただいた個人情報は、お問い合わせ先の不動産会社でも保管します。 お問い合わせ先の不動産会社が保管する個人情報の取り扱いについては、不動産会社に直接お問い合わせください。

    情報提供会社

    情報提供会社

    店舗事務所工場紹介センター

    国土交通大臣免許(2)第9391号

    交通:
    京阪本線/古川橋駅 徒歩10分
    大阪府門真市深田町1-6-103 
    TEL:
    06-7163-5160
    FAX:
    06-7177-2569
    所属団体:
    (公社)全日本不動産協会会員
    (公社)近畿地区不動産公正取引協議会加盟

    取引態様:仲介

    • 会社情報
    • 50026158
    スマートフォンで
    この不動産会社を見る
    QRコード
    • お問い合わせ
    • 提携サイト等より掲載されている物件情報につきましては、不動産会社詳細情報にリンクされていないものがあります。
    • 物件に関するお問合せは、物件詳細ページの「情報提供会社」に表示されている不動産会社へ直接お願いいたします。
    • 間取図は、現況を優先させていただきます。
    • 映像は物件の一部を撮影したものです。物件の契約にあたっての最終判断はご自身の判断に基づいて行ってください。
    • 仲介手数料について仲介手数料

    アットホームは物件情報の適正化に努めております。 内容に誤りがある場合にはこちらへご連絡ください。


    物件画像: